魏玉莲 王海海 李华清 乔学宁 胡冲
南京市公共工程建设中心 中交二公局第二工程有限公司
摘 要: 南京长江第五大桥主桥上部结构钢混组合主梁采用桥面吊机悬臂吊装,鉴于南京长江第五大桥自身设计特点及工程实际情况,桥面吊机采用地面拼装+整体吊装的形式进行安装,本文依重点介绍桥面吊机地面拼装、整体吊装过程中的关键技术,及针对中央双索面过索式桥面吊机进行了抗风安全性分析。
关键词: 斜拉桥;过索式;桥面吊机;安装;抗风安全性;
1 概况
1.1 工程概况
南京长江第五大桥主桥采用纵向钻石型索塔中央双索面三塔组合梁斜拉桥,桥跨布置为80+218+600+600+218+80=1796m,主跨2×600m,索塔采用钢壳-混凝土组合索塔,主梁采用粗骨料活性粉末混凝土桥面板钢混组合梁,斜拉索采用钢绞线斜拉索。南京长江第五大桥跨江主桥是世界上首座采用粗骨料活性粉末桥面板结构的组合梁斜拉桥,也是跨径最大的钢混组合索塔斜拉桥。
主梁两侧路肩区为底部开放的悬臂结构,主梁标准宽度35.6m,梁高3.6m(组合梁中心线处)。全桥主梁共15种类型(A~F),123个梁段,其中南塔上部结构组合梁的安装,共41块,标准梁段(C梁段)单个梁段吊重407.4t。最重梁段为重约486.5t。其中32块组合梁需要桥面吊机悬臂吊装。
1.2 桥面吊机概况
桥面吊机主要由主桁架、液压提升机调位系统、行走系统、前支撑系统、后锚固系统、液压泵站及控制系统、吊具系统、爬梯及工作平台等组成。首节段整体模型如图1所示。
标准梁段长度14.6m,最大起吊重量约424.7t,采用桥面吊机悬臂拼装施工。单个标准梁段由一台桥面吊机起吊,桥面吊机采用两片主桁,间距3.4m,两片主桁间用平联杆件连接固定,保持吊机横向稳定。
液压提升系统由2台提升能力294t的DL-S294钢绞线千斤顶及相关配套设备组成。主提升系统采用DL-P40中央控制系统,由一台中心操控计算机管理所有任务。具有力、位移同步控制功能,同步控制精度高,可靠性好,实时性强,安全监测功能全面。同时具有液压泵站面板就地控制和DL-M手动控制箱等控制方式。

图1 桥面吊机首节段整体模型 *载下**原图
桥面吊机技术参数如表1。
表1 桥面吊机主要技术参数 *载下**原图

2 桥面吊机桥位安装技术
2.1 施工工艺概述
桥面吊机运到现场后需要利用汽车吊在扩展平台和码头上进行拼装,采用25t汽车吊配合90t履带吊进行拼装。将桥面吊机轨道、主桁架、主横梁、千斤顶提升系统及吊具整体拼装好,拼装完成后利用500t浮吊将桥面吊机整体吊装至桥面,中跨侧桥面吊机横江向进行吊装,边跨侧桥面吊机顺江向进行吊装。
2.2 设备选型及布置
考虑到桥面吊机吊重要求,为确保安全起见,桥面吊机配件厂内完成预拼装后,将配件运到现场,利用25t汽车吊和90t履带吊进行拼装,组装成整体后采用500t浮吊起重船吊装索塔区0号块梁段上,根据现场实际条件,确定浮吊起重船停泊方向。
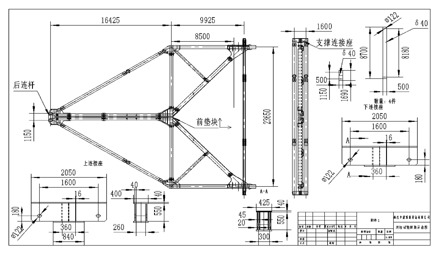
2.3 厂内背靠背试验
通过对拉加载试验,检查桥面吊主桁架的上弦杆、下弦杆、后拉杆、立柱、前压杆及附件等部件的加工及安装质量,验证桥面吊各主要受力构件安全性及上弦杆悬臂结构受力是否符合设计要求。
参照《公路桥梁荷载试验规程》JTGT J 21-01-2015及《起重机试验规范和程序》GB/T 5905-2011进行试验,分为标准节段试验和首节段试验两个部分。首节段采用整体结构对拉,标准节段采用单台桥面吊机两片主桁架对拉。在本项目中,桥面吊机在悬臂9.925m处起吊的梁段最大重量为500t。标准节段的试验工况为单片主桁架在悬臂9.925m处加载最大为625t(125%工作负荷)的试验荷载。根据试验工况,在构件的指定位置依次施加相当于25%、50%、100%、110%、125%工作负荷的试验荷载然后卸载至110%、100%、50%、25%、0%工作荷载,在加载位置设置千分表,并将测得的位移数据和对应荷载下应力数据填写到记录表中。
(1)标准节段试验(图2):主桁架后锚固采用拉板销轴连接,前支点用钢板顶紧。利用千斤顶的顶升,通过拉杆传递,把试验载荷力同时传递到两片主桁架上,实现桥面吊吊装工况的模拟。

图2 标准节段桥面吊机厂内实验布置 *载下**原图
(2)首节段试验(图3):首节段桥面吊机后锚固采用拉板销轴连接,前支点用钢板顶紧。利用千斤顶张拉钢绞线,把试验载荷力同时传递到桥面吊机指定位置上,实现桥面吊吊装工况的模拟。
通过厂内“背靠背”对拉试验,对试验中位移和应力数据进行分析,得出如下结论:
标准节段加载试验采用单侧加载试验,桥面吊机的工作状态与正常进行循环施工时的工作状态有一定的差别,但试验大致模拟了桥面吊机的受力状态。试验结果如下:
(1)挠度(变形)校验系数=0.59<1,应变校验系数0.4~0.7<1;
(2)构件处于弹性工作状况,呈线性关系;
(3)主要控制测点残余变形=5%<20%。

图3 首节段桥面吊机厂内实验布置 *载下**原图
(4)试验中未发现桁架及焊缝开裂。
因此,标准节段承载力满足设计要求。
首节段加载试验采用4只千斤顶双端张拉,桥面吊机的工作状态与正常进行循环施工时的工作状态比较贴合,试验与桥面吊机工作受力状态相近,检验了桥面吊机主体结构,试验结果如下:
(1)挠度(变形)校验系数=0.58<1,应变校验系数0.3~0.4<1;
(2)构件处于弹性工作状况,呈线性关系;
(3)主要控制测点残余变形=4%<20%。
(4)试验中未发现桁架及焊缝开裂。
因此,首节段承载力满足设计要求。
2.4 桥面吊机散件拼装
2.4.1 拼装场地
根据施工现场场地大小,南主墩两台桥面吊机分别在扩展平台和码头上拼装。考虑到桥面吊机各构件重量要求,为确保安全起见,桥面吊机配件厂内完成预拼装后,将配件运到现场,利用25t汽车吊和90t履带吊进行拼装,桥面吊机散件拼装场地如图4所示。

图4 桥面吊机拼装场地布置 *载下**原图
2.4.2 拼装流程
(表2)
2.4.3 主桁架拼装
为提高吊机适应性,减小总体重量,吊机主桁采用了菱形框架,两片主桁间用平联杆件连接固定,增强横向刚度,保持吊机横向稳定。主桁间距3.4m。
为了实现首节段F梁段吊装施工,后纵梁和后拉杆设置横联桁架,吊机前部主桁架间距3.4m,后部间距6.8m,以避开塔柱。总体结构如图5所示。

图5 首节段主桁架总成 *载下**原图
主桁架后拉杆采用销轴连接,其余各杆件之间采用高强螺栓副进行连接。安装高强度螺栓前将摩擦面上的浮锈用钢丝刷清理干净。在安装过程中,不得使用螺纹损伤及沾染脏物的高强螺栓连接副,不得用高强螺栓兼做临时螺栓。高强螺栓预紧力和拧紧力矩及其它施工要求按照《钢结构高强度螺栓连接技术规程》(JGJ82-2011)的要求进行。
表2 拼装流程 *载下**原图

2.4.4 液压提升及调位系统安装
液压提升及调位系统由主横梁、千斤顶横移系统(上滑移架)、导向组件、S294千斤连续提升系统、钢绞线导向架、钢绞线主动卷线盘以及纵移油缸、横移油缸等组成。千斤顶提升系统采用S294千斤顶提升系统,包括配套的钢绞线主动卷线盘、钢绞线导向架等。

图6 液压提升及调位系统总成 *载下**原图
主提升千斤顶额定吊重294t时采用19根Φ18mm模拔钢绞线,钢绞线长度根据项目的最大吊装高度+富余20m来确定。采用在桥位平台上进行安装。
(1)当钢绞线收放器(未缠绕钢绞线)先安装至吊机主桁架上时,钢绞线通过自下至上的方式穿过提升千斤顶,整齐地盘绕在收放装置上;
(2)先将所有钢绞线在地面上盘绕在钢绞线收放装置上,然后再整体吊装钢绞线收放器至主桁架上的安装位置固定,最后将钢绞线自上而下穿过千斤顶。
钢绞线收放装置主要是为容纳储存提升钢绞线,以及快速下放吊具。容纳钢绞线能力为19根×250m。钢绞线盘绕在收放装置上的安装方法如下:
选择钢绞线下料场地,要求平整干净,长度根据提升钢绞线的下料长度来定。钢绞线放线架下好钢绞线后,对钢绞线进行编号,整齐排列摆放在场地上,在钢绞线端部制备锥度为1:4且不超过5mm长的端头,穿入收放装置锚固端进行锚固,然后用液压泵站驱动液压马达带动钢绞线,通过固定在地面上的摆动架将钢绞线盘绕整齐。
2.4.5 扁担梁吊具安装
扁担梁吊具设置了内滑式扁担梁纵坡调整系统。安装时先将调坡滑块由扁担梁开口侧装入,然后将安装封板用螺栓进行连接,最后安装调坡油缸及锁止精轧螺纹钢筋。注意调坡油缸泵站安装于吊机前进方向,避免泵站尺寸过大影响斜拉索的安装。
2.5 桥面吊机整体吊装
2.5.1 吊装设备
索塔区0号块梁段安装好、第1对斜拉索安装前进行桥面吊机的整体起吊安装。桥面吊机桁架拼装成整体后用船舶运输至桥位,采用500t浮吊起重船进行整体安装,其它零星构件利用桥面上25t汽车吊进行组拼。

图7 扁担梁吊具 *载下**原图
起重船船舶参数及起吊性能参数详见表3。
表3 500t起重船技术参数表 *载下**原图

2.5.2 整体吊装
中跨、边跨桥面吊机吊装时,浮吊起重船根据现场条件确定停泊方向。
2.5.3 桥面吊机吊装计算
根据建模计算查得桥面吊机整体吊装时,重心位置在立柱偏前部约1.5m处,重心位置距底部7.3m处。因此吊点根据重心位置对称分布,分别在上弦杆和下弦杆设置吊点。上弦杆吊点设置在距立柱约5.6m处,下弦杆吊点设置在距立柱约12.2m处。
桥面吊机起吊首节段,整机组装好后重量约158t,利用起重船将桥面吊机整机吊装至南主墩首节段吊装工位。
在整体起吊前,桥面做好放线布置,确定轨道中心线及后锚点的安装位置。桥面吊机所有活动部件,均要求绑扎固定,确保桥面吊机整体起吊过程中不会有零部件坠落。现场吊装的起重船也要位于指定位置,利用专门的索具及吊具将桥面吊机整机直接吊装至桥面位置,保证轨道梁中心与事先的放线位置中心线重合,并安装后锚点,起重船松钩完成整体吊装作业。
2.5.4 各机构调试
在首个悬臂吊装梁段到达桥位后,由于桥面吊具后安装,所用先将桥面吊机吊具与梁顶吊耳连接,随后将桥面吊机钢绞线下放与吊具连接。满足要求后进行桥面吊机桥位试验。
3 桥面吊机抗风安全性分析
3.1 研究目的
为确保南京长江第五大桥桥面吊机的正常安全使用,对桥面吊机进行主梁吊装期间抗风安全性分析研究。通过对起吊梁段-桥面吊机-主桥系统进行动力响应分析,评估桥面吊机的安全性以及使用过程中的工作性能。
一方面,对桥面吊机在正常六级风速和吊机偏载作用下起吊过程进行安全性验算,严格控制起吊梁段的侧向位移和转角,确保正常起吊过程的安全性;另一方面,对起吊过程中突遇九级大风的危险情况下进行计算,确定起吊梁段的位移和转角,做好准备措施。
3.2 研究思路
首先,根据施工图纸建立系统的有限元分析模型,分析系统的动力特性。其次,根据系统场地特征和进行风速场和风荷载模拟。然后,将第二步得到的风荷载时程输入有限元分析模型,进行结构风致响应分析。最后,汇总分析结果,综合评价桥面吊机抗风安全性。
3.3 荷载工况
根据桥面吊机6级风、9级风、12级风的作用下以及横桥向起吊偏心荷载的作用,将此次研究分为以下几个工况:
(1)运输船定位偏差所致的吊机水平力10t,横桥向;
(2)梁段起吊过程,吊机偏载,取5%×梁段重,标准梁段重407.4t,算得两根吊索偏载不平衡力为20.4t;
(3)梁段起吊过程,六级强风,风速13.8m/s(高度10m),横桥向水平来流;
(4)梁段起吊过程,六级强风,风速13.8m/s(高度10m),横桥向倾斜来流;
(5)梁段起吊过程,九级烈风,风速24.4m/s(高度10m),横桥向水平来流;
(6)梁段起吊过程,九级烈风,风速24.4m/s(高度10m),横桥向倾斜来流;
(7)梁段起吊过程,十二级暴风,风速32.6m/s(高度10m),横桥向倾斜来流。
3.4 计算结果分析
本研究通过精细的数值仿真计算对桥面吊机和起吊梁段进行了抗风安全性分析方法,研究的主要结论包括:
(1)安全性评价:桥面吊机和起吊梁段在施工期工作风速(6级风,13.8m/s)下是安全的;
(2)安全性评价:在桥面吊机工作状态中,突发9级风(24.4m/s)时,起吊梁段不会发生倾覆,桥面吊机不会发生倒塌,建议及时检修;
(3)安全性评价:在桥面吊机工作状态中,突发12级风(32.6m/s)时,起吊梁段会发生倾覆,桥面吊机会发生倒塌;
(4)舒适度评价:施工期工作风速为13.8m/s时,加速度峰值小于人有感范围,可正常工作。
4 结语
(1)为适应南京长江第五大桥中央双索面的特殊结构,创新研发了宽度仅为3.4m的过索式桥面吊机。
(2)桥面吊机采用地面拼装+整体吊装的施工工艺,节约了桥面吊机安装工期。
在南京长江第五大桥桥面吊机安装过程中,综合运用了多种手段和方法,对工程技术难题进行全面研究;安装前在厂内通过“背靠背”试验检验桥面吊机结构是否达到设计要求;在桥面吊机散件拼装过程中,分析每个构件安装前后桥面吊机的整体稳定性。对桥面吊机整体抗风安全性进行分析;通过一系列认真细致的工作,确保了南京长江第五大桥新型桥面吊机的吊装施工安全、高效。
参考文献
[1] JTG/T F50-2011,公路桥涵施工技术规范.
[2] 汪正荣,朱国梁.简明施工计算手册(第三版).北京:中国建筑工业出版社,2005.
[3] 张星.桥面吊机在斜拉桥中的施工与应用.城市建设理论研究,2019.
[4] 刘红,张竹平.桥面吊机的安装工艺与技术.绿色科技,2018.
[5] 谢毅.桥面吊机设计与施工解析.科学技术创新,2019.

声明: 我们尊重原创,也注重分享。有部分内容来自互联网,版权归原作者所有,仅供学习参考之用,禁止用于商业用途,如无意中侵犯了哪个媒体、公司、企业或个人等的知识产权,请联系删除,另本头条号推送内容仅代表作者观点,与头条号运营方无关,内容真伪请读者自行鉴别,本头条号不承担任何责任。