
“埏埴以为器,当其无,有器之用。凿户牖为室,当其无,有室之用。故有之为利,无之为用。”
——老子
01
项目概况
beiyang design group
本项目位于青岛市城阳区夏庄街道源水路以北、华安路以东地块,新建一所18班小学——三台新校区。项目周边为马家台、彭家台、杏杭社区,故称“三台”,同在华安路上,自基地向北700米为三台小学老校区,新校区建成后,将容纳老校区部分级部的学生使用。

项目区位图↑
基地现状为市民的健身活动场地,有300M跑道,足球场和篮球场等健体设施。我们在设计过程中,不仅要满足基本教学要求,还需要考虑共享运动场对居民开放,缓解放学高峰期交通压力等社会问题。

规划分析图↑
02
规划定位及理念
beiyang design group
本案根据由开放到安静的原则,划分了三个分区:
◎城市开放区,保留原始出入口与沿街石墙面,将原来东西向300M运动场整合为一个南北向200M运动场和两个篮球场,最大限度满足学生和社会的活动需求;
◎教学区,在满足日照及建筑退线的要求下,满足教学活动需要;
◎生活后勤区,为避免东南风对教学主楼产生影响,将餐厅布置在最东侧,同时设置后勤出入口并形成院落,与教学主入口分隔。

项目总平面图↑

夜景鸟瞰图↑

主入口透视图↑
03
教育之窗
beiyang design group
项目地理位置位于周边居住区的中心地段,面向城市,建筑在形体上做了呼应,三层西侧是室内主要的公共活动空间,我们设计了一个“城市取景器”,将社区的点点滴滴引入室内,学生能在取景器内俯瞰整个社区。

西南角半鸟瞰图↑
同时,对周边居民也能看到温馨、向上的校园生活。它既是教学成果对公众的展示平台,又是城市空间与学生活动的精神背景。

操场透视图↑

三层活动空间效果图↑
04
地下接送系统
beiyang design group
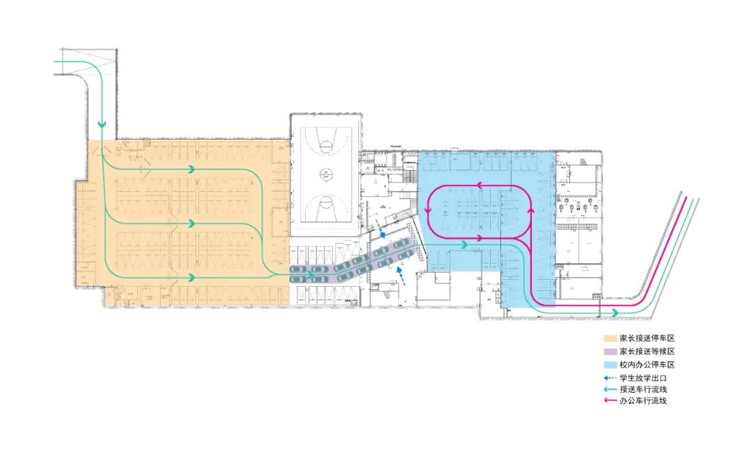
由于用地紧张,又处在高密度社区中,高峰期交通问题难以在场地周边解决,于是我们设计了地下接送系统,在地下停车场部分,我们将社会临时停车区、教师停车区、学生活动区完全分区管理,保证师生安全。

地下接送系统示意图↑
在接送高峰期,由教师带领学生到达等候区,社会车辆通过道闸系统由西侧入口进入,在指定区域接送学生,并即停即走,由东侧出口进入市政道路。这样的设计有效减缓了城市交通压力,也更加保证了学生的出行安全。

家长等候区↑
05
景观设计
beiyang design group
根据建筑设计理念和校方要求的校园文化,景观设计以“书山文海”和“排球特色”为基调进行设计,将排球纹理元素抽象化,演绎为铺装及林间小路,同时根据不同的功能空间,将室外场地演化为六个景观花园,打造移步异景的景观特色。






06
室内设计
beiyang design group
新兴时代语境下,学校在保留传统必要的功能分区之余,理应能承载起更多的空间价值。本案在设计之初,便将“乐彩童年”的主题注入其中,透过鲜明的色彩、纯粹的材质、多元的布局,创造一个充满生机与活力的五彩校园。

室内空间设计部分,主旨遵循“学习,沟通,开放”的核心理念,融合了学校建筑外观的简洁大方的手法,突出建筑本身几何结构的魅力,并采用空间色调的改变来展现功能之间的转换。同时增加的各区域交流空间,为孩子学习增添个更多活动空间,消除教育,学习和娱乐的界限。






结语
三台新校区方案设计,将城市、建筑、人完整的联系起来,推动形成可持续发展的社区活动关系,提供了更好的社区居民的活动空间,也解决了集约高密度城市中校园周边的交通问题,它是介于城市与孩子之前的桥梁,更是教育空间研究的先锋实践。

项目名称:夏庄街道三台新校区新建项目
项目地址:中国,山东,青岛
项目规模:19479㎡
设计团队名单:
建筑综合五部
项目负责人:彭林
建筑专业负责人:彭林
主要设计人:陈海宁 王海宁 孙云泰 薛源 董少鹏 陈萍
结构专业负责人:聂治盟
主要设计人:聂治盟 刘茂康
给排水专业负责人:马江坤
主要设计人:马江坤 巴淑娴 孙玮彬
暖通专业负责人:刘满增
主要设计人:刘满增 强嘉雯
电气专业负责人:马洪莉
主要设计人:马洪莉 郝泽明 魏中钘
幕墙专业负责人:徐立强
主要设计人:韩冷
室内设计专业负责人:王静
主要设计人:吕清华 相娆 王嘉浩 刘君 张志勇
景观设计专业负责人:杜禅
主要设计人:钟若晴
人防设计专业负责人:霍星星
主要设计人:李嘉鹏 郭蕊 闫茂洋 崔萌 刘馨蔚