N.Team Design新作,项目位于乌克兰基辅,面积117㎡,业主经常出差到这个城市,所以决定在这里临时安置一个家。家就像一面镜子,反映出业主的品味,性格,喜好和爱好。
The apartment is masculine and austere, but not devoid of comfort and home warmth. There is a full-fledged kitchen-living room, with a biofireplace, and a seating area under the window to enjoy a beautiful view of the Dnipro river and the right bank of Kyiv.

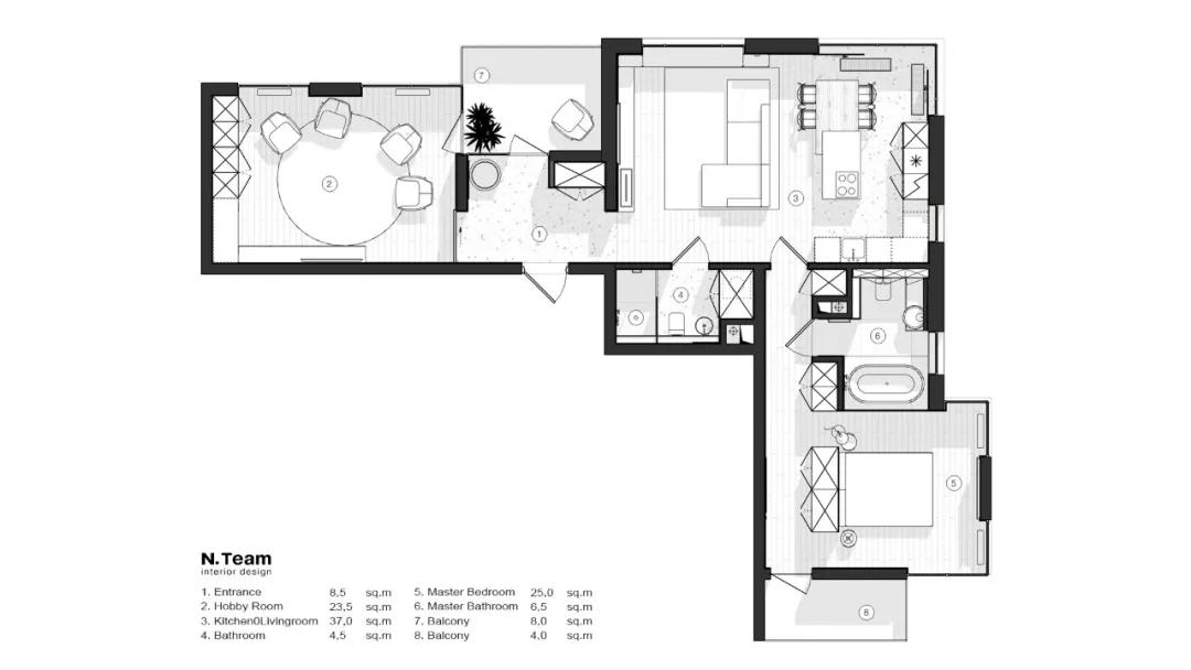
平面图
▽

这间公寓比较阳刚简朴,但并不缺乏舒适和家的温暖。起居室有一个设施齐全的厨房,一个生物壁炉,窗户下方设有一个休息区,可欣赏第聂伯河和基辅右岸的美丽景色。此外,在公寓里还设计了一个独立的主区域,设有一间卧室,一间私人浴室和一个衣柜。
Also, in the apartment, a separate master area is designed, with a bedroom, a private bathroom and a wardrobe.


客厅裸露的天花,温润的木地板,黑色的布艺沙发和电视背景墙,设计师将材料、色彩、灯光及元素进行简化,用简洁的视觉效果营造出独具设计感的空间。
In the guest bathroom, in the closet, there is a washing and drying machine. A special feature of this apartment is the room, which we and the customer named "hobby room", it is intended for reading, watching films or football matches with friends, as well as meeting with colleagues or partners to discuss business issues.





厨房和餐厅做了开放式的设计,岛台和餐桌一体,高低错开,不同的材质,视觉上更具有层次感。
In general, we have achieved the effect that the interior does not betray anything, that this temporary housing is a full-fledged house in which its owner feels comfortable and in an atmosphere that fully corresponds to his character and the idea of home relaxation.




这间房间比较有特色,设计师和业主将其称为“爱好室”,可和与朋友一起阅读,观看电影或足球比赛,并与同事或合伙人开会讨论业务问题。



卫生间干湿分离,实现功能与美感的结合,简约的线条,将实用与美观做到了极致。



卧室以浅灰色演绎,黑色和原木色的完美交织,透过大大的落地窗引景入室,通透明亮,一种时尚而又充满韵味感的现代生活写照由此而生。



主卫,合理地简化梳洗空间,从简单舒适中体现生活的精致。




