

往西走,是霓虹晃眼的九眼桥;向东去,是老成都味浓厚的莲桂路和海椒市。宏济街区,这片自带old school气息的街区闹中取静。这里有许多等待尝鲜的人,也有各种“新奇事物”,比如THE TASTING ROOM。这是个很有趣的空间,随性的酒吧,考究的工作室,两种截然相反的属性在这里融合,碰撞出了新的火花。

工作室x酒吧
Workshop x Bar
如果你漫步在成都的宏济街区
或许会看到这么一家酒吧:
纯黑色的门头上
“THE TASTING ROOM”字样闪闪发光
Logo是个吐出舌头的俏皮笑脸
童趣十足

摄影:小枝©ICYWORKS
外墙上的木质招牌上写着
“CREDDIE WORKSHOP(14:00-20:00)”
透过敞开的镜面推拉门
店里的“风景”尽收眼底
水泥灰的墙面搭配柔色灯光
干净、整洁略带一丝神秘

摄影:ICY©ICYWORKS
环顾四周
简洁的工作台上
五花八门的工具被整齐排列
后边置物架上放着许多瓶瓶罐罐
装着各种材料
线条流畅的吧台椅和餐桌
都无比契合“WORKSHOP”的气质
专业、高效甚至略带一丝考究

摄影:小枝©ICYWORKS
但,我们在讨论的不是酒吧吗?
别急,再往里走
侧旁的走廊一直向里走
直到被一扇太空舱门拦住去路
拉门上的圆形孔洞隐隐透出光亮
酒吧部分的空间就在门后
如同惊喜盒子一般,等着客人发现、打开

摄影:ICY©ICYWORKS
前厅是工作室,主体部分则是以酒吧的形式示人,兼具了实用性和灵感的闪光,让人觉得十分新奇。
菜单上的特调都是调酒师的“研究成果”,除了能品尝酒的本味,还可以体验各种有趣的材料或风味交融、碰撞。
在这里,或许你能体会到成都的“无限可能”。

Eddie和卉芝这对小情侣,是THE TASTING ROOM的当家掌柜。
卉芝从事新媒体行业,负责对外的宣传和推广;Eddie则是店里的王牌调酒师,负责THE TASTING ROOM的日常经营。
两人的组合很有趣,在各自熟悉的领域各自分工,将一切打理得井井有条。

对Eddie的印象就是“嫩”,看着有一股奶气,清秀得很。
但站到吧台后的Eddie,浑身散发着自信的魅力,行云流水的调酒动作令人赏心悦目,加上梳得“巴巴适适”的头发,帅气“Eddie老师”上线了。
工作台上摆放的各种书籍里,还能看到Eddie粘贴的笔记便笺,卉芝夸Eddie好学,后者还认真地解释说:
“没那么夸张,我只标了英文版的,中文的我都没标。”

Eddie16岁就开始学习鸡尾酒,曾是百加得比赛史上最年轻的区域冠军,今年是Eddie从事这个行业的第六个年头。
获得冠军那年,Eddie才20岁,随荣誉而来的是深深的迷茫,突然失去了目标,作为一名调酒师,最终极的追求应该是什么?

离开了工作多年的吧台,花了一年在各个国家间游历学习。
马来西亚有家bar coley,Eddie在这里工作学习了一个月,认识各种各样的人,听到了许多有趣的故事。
Eddie发现,自己最想做的事,依然是为不同的客人调不同的酒,乐此不疲。

摄影:ICY©ICYWORKS
制作鸡尾酒就像料理,Eddie最开始,只想做一个鸡尾酒研发工作室,想探索各种食材风味之间的搭配,如何运用在酒里。
后来想着,既然都已经做了研发,不如在工作室背后再搭一个吧台,白天研发材料,晚上把这些材料做成鸡尾酒,给这座城市爱喝酒的人,更多的味觉体验。
THE TASTING ROOM就这样被提上了“日程”。

今年4月底,卉芝发了一条“求租商铺”的朋友圈,到如今THE TASTING ROOM试营业,只花了半年的时间。
看起来似乎一切都很顺利,但其中的酸甜苦辣,只有Eddie和卉芝知道。

摄影:小枝©ICYWORKS
设计师佳佳说:“两位主理人非常清晰地知道自己想要的效果,所以沟通起来非常顺畅。”
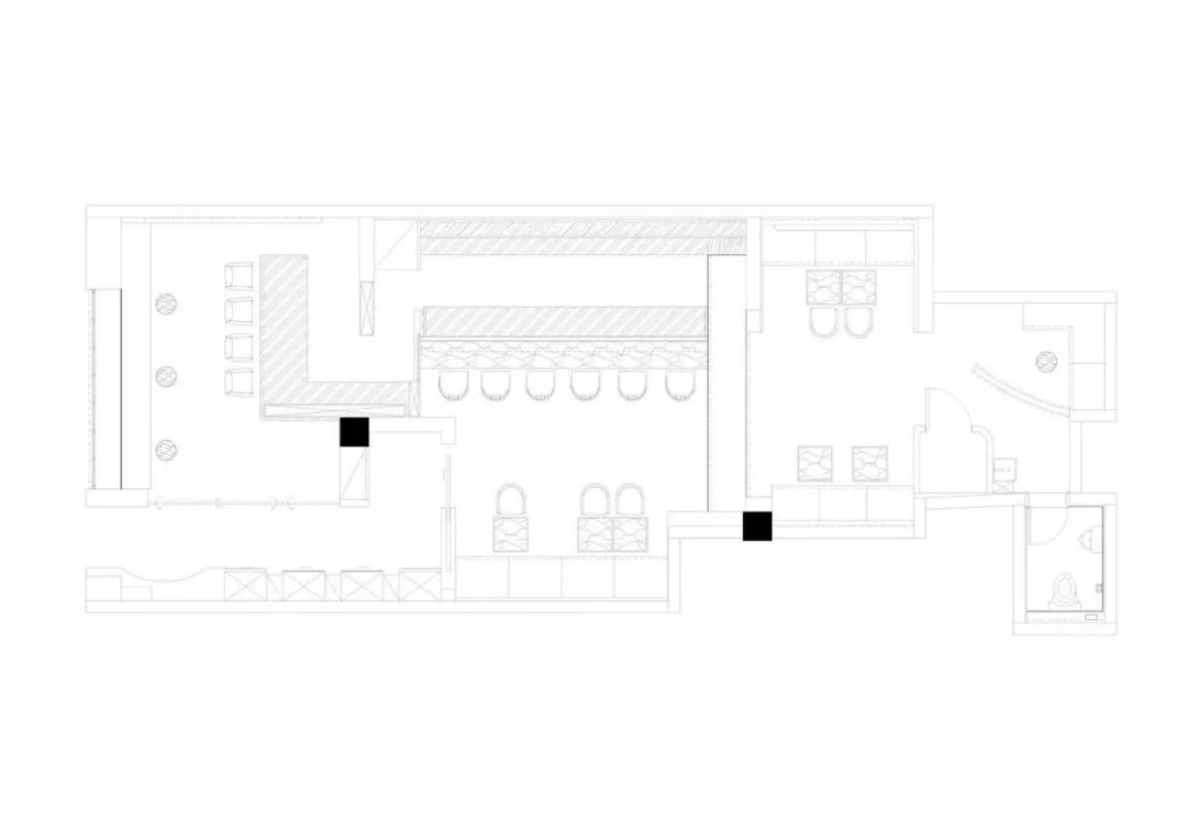
110㎡的狭长空间,就设计而言,存在着一定的限制。

THE TASTING ROOM平面图,图片由季意设计提供
首先采光就不够理想,之后的灯光设计需要下一番功夫;其次空间里有许多的承重墙和梁柱,改造难度略大,非常考验手艺。
Eddie原本的计划之中有宽敞的包间,由于空间大小限制,最后不得不放弃。如何让进店的客人不会感到压抑逼仄,这也是亟需解决的一个难题。

图片由季意设计提供
从空间的分区图也能够清晰的了解到,工作室与酒吧两块不同属性空间的功能划分。
两人在和佳佳交流过程中,碰撞出许多灵感,这些最后都成了THE TASTING ROOM空间里的亮点和惊喜。
为了解决场地大小的限制,前厅采用了半开放式的设计,让整个空间看起来更开阔。

摄影:panpaddy晴天
和户外的联系是双向的,内里的人能感受到店外的人群流动,店外的人则容易被这样的店吸引,攀升出一股“探索欲”。
THE TASTING ROOM室内禁止吸烟,但得益于半开放式设计较好的空气流动性,夜晚这里会成为吸烟区,为客人省去不少麻烦。
包厢改成了半开放式,带有弧度的墙面成了空间感的缓冲带,隐私性和趣味性兼而有之,更重要的是不会让客人觉得狭窄。

摄影:ICY©ICYWORKS
在施工期间,也能看到Eddie和卉芝忙碌的身影,虽然很累,但两人乐在其中,对于THE TASTING ROOM,他们也倾注了很多期待。
好在最后呈现的效果,对得起两人的辛苦。

每当夜幕降临,Eddie就会穿过工作台里的小门,转战酒吧吧台,为客人调配各种酒饮。
左侧工作室的大门也会关闭,而酒吧区域的大门将会开启,形成一条纯黑色的狭长通道,仿佛一场惊喜派对即将开场。

摄影:ICY©ICYWORKS
缓缓拉开通道尽头的那扇太空舱门,THE TASTING ROOM才算揭开面纱,展示了它的全貌。
没有昏暗的灯光,没有震耳欲聋的音乐,没有刻意营造的神秘气氛,酒吧区域一切都让人觉得舒服放松。

摄影:ICY©ICYWORKS
Eddie说, THE TASTING ROOM并不是一家传统的鸡尾酒吧,同时也是工作室,所以希望能为客人提供舒适的品尝空间。
暖色的灯光能令人感到愉悦和强烈的安全感,所以酒吧区域的灯光都设置了调光。

摄影:ICY©ICYWORKS
佳佳介绍道:
“整个空间使用的材料都比较冷,所以我们用了一些竹编的元素,一方面体现了成都元素的在地性,另一方面竹编过滤了光线后会产生非常奇特的效果。”

摄影:ICY©ICYWORKS
在这样的空间里,竹编确实起到了很好的效果,交织出了朦胧的光线,空间的限制感被无限淡化,人也跟着放松下来。
竹编孔洞形成的阴影,散漫在墙面、地板、人身上,还增添了几分趣味性。

摄影:小枝©ICYWORKS
大面积铺贴的木质地板,是酒吧区域里质感的一大来源,实木纹理和暖和灯管相呼应,强化了客人的安全感,有种“落到实处”的感觉。
同时,部分卡座区域的墙面采用了地板上墙的设计,让空间的包裹感变得更强。
这样的效果正是Eddie想要的。

摄影:ICY©ICYWORKS
此外,酒吧区域的座椅间隙也经过了精心的设计。

摄影:小枝©ICYWORKS
传统酒吧为了营造氛围,会刻意缩小座位之间的距离,即便是原本陌生的两桌客人也可以方便地交流。而THE TASTING ROOM强调的则是舒适感和私密感,所以“牺牲”了一部分区域的固定桌椅,以便客人更好地享受属于自己的那部分空间,品尝手中那一杯特调。

摄影:小枝©ICYWORKS
温馨舒适,专业高效,在THE TASTING ROOM里有着太多属于Eddie和卉芝的影子。或许对于那些爱酒却害怕嘈杂的客人来说,又多了一个值得“寄托”的去处。

在空间设计上有别于传统酒吧,菜单自然也不会例外,毕竟Eddie可是拥有着自己的“实验室”。
客人能得到的远远不止是一杯酒,Eddie会认真地介绍创造风味的材料,并且把材料单独给客人品尝。
附赠的“ID Card”上记录了特调的配方,使用的鸡尾酒杯款式,甚至是调酒师的手记。

客人们说:
“以前只能感受到好喝/不好喝,今天听完介绍,看到卡片,品尝了材料风味,发现自己开始能慢慢寻觅出酒里的各种味道了。”

摄影:ICY©ICYWORKS
“这里售卖的不仅仅只是一杯饮品,但最终实处的却又只是一杯饮品,听起来有点拗口,但体验过之后,你一定会有和我一样的感受。”
或许正因如此,Eddie和卉芝才能在小小的THE TASTING ROOM里藏满了惊喜,一次又一次地撩拨着客人们的好奇心。


“作为一家还在试营业的店,我只想能让大家每一次再回来,都能感觉好一点。”
从确定这个计划到敲定室内设计,再到之后的施工队进场施工,直到如今的THE TASTING ROOM功试营业,卉芝说一切才刚刚开始。
未来的事谁也不知道,但最好的状态就是“开始”,我期待着,Eddie和卉芝,这对“甜掉牙”的小情侣能带来更多惊喜。
感谢卉芝以及Eddie接受采访
感谢一筑一事(ID:zs_studio)的图文素材授权
摄影作者:小枝、ICY©ICYWORKS;
雨婷©一筑一事、panpaddy晴天
具体见图片下方标注,未标注均为本人提供
版权归原作者所有

[1] THE TASTING ROOM:宏济街区的“新物种”,酒吧并不能定义它


THE TASTING ROOM
城市:成都
类型:酒吧
位置:四川省成都市锦江区宏顺街47号
联系方式:13540883815(微信同号)