(1)代号
1)标准公差等级代号
标准公差等级代号用符号IT和数字组成,例如:IT7。当其与代表基本偏差的字母一起组成公差带时,省略IT字母,如h7。标准公差等级分IT01、ITO、IT1~IT18,共20级。
2)偏差代号
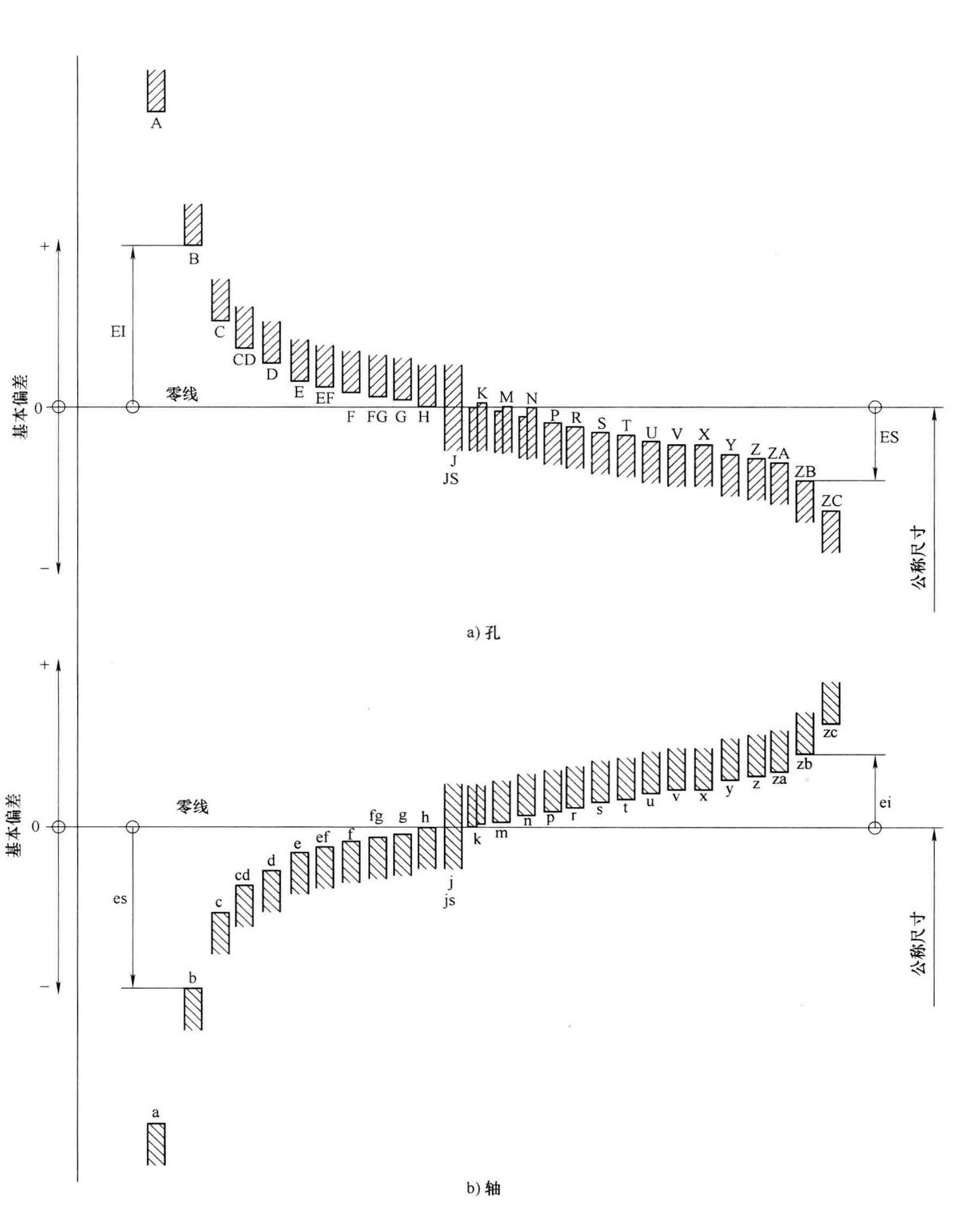
a)基本偏差代号基本偏差代号,对孔用大写字母A,…,ZC表示,对轴用小写字母a,…,zc表示(图2‑13),各28个。其中,基本偏差H代表基准孔,h代表基准轴。注:为避免混淆,不用下列字母:I,i;L,1;0,o;Q,q;W,w。

图 2‑13 基本偏差系列示意图
b)上极限偏差代号上极限偏差代号,对孔用大写字母“ES”表示,对轴用小写字母“es”表示。
c)下极限偏差代号下极限偏差代号,对孔用大写字母“EI”表示,对轴用小写字母“ei”表示。
(2)公差带的表示
公差带用基本偏差的字母和公差等级数字表示。例如:
H7为孔公差带;
h7为轴公差带。
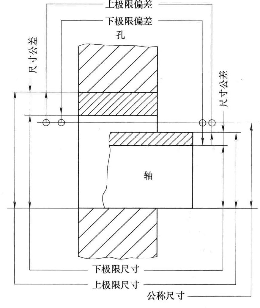
(3)注公差尺寸的表示
注公差的尺寸用公称尺寸后跟所要求的公差带或(和)对应的极限偏差值表示。32H7、80jsl5、100g6,
(4)配合的表示
配合用相同的公称尺寸后跟孔、轴公差带表示。孔、轴公差带写成分数形式,分子为孔公差带,分母为轴公差带。52H7/g6
(5)配合的分类
配合分基孔制配合和基轴制配合。在一般情况下,优先选用基孔制配合。如有特殊需要,允许将任一孔、轴公差带组成配合。
配合有间隙配合、过渡配合和过盈配合。属于哪一种配合取决于孔、轴公差带的相互关系。
基孔制(基轴制)配合中:
基本偏差a~h(A~H)用于间隙配合;基本偏差)~2。(J-ZC)用于过渡配合和过盈配合。图1-15用图解表示了本极限与配合制所确定的主要术语。实际上,可使用图1-16所示的示意图表示。通常工件的轴线始终位于图的下方(在图中不示出)。该图例中,孔的两个偏差均为正,轴的两个偏差均为负

图 2‑14术语图解

图 2‑15公差带示意图
公差与配合的选用
基准制的选用
选择基准制应从结构、工艺、经济性等几方面来考虑。一般情况优先采用基孔制,这样可以减少定值刀、量具的品种和数量。基轴制一般用在以下几种情况:
1)在农业机械行业中,采用冷拉钢作轴,不再进行机械加工。
2)同一公称尺寸的轴与不同配合的几个孔相配合,如活塞连杆中销轴需同时与连杆孔和活塞孔配合。若采用基孔制必须作成台阶轴,无论从装配还是加工来看均不合理。
3)孔与标准件的配合,如轴承座孔与滚动轴承外圈配合。
公差等级的选用
选用公差等级就是解决零件使用要求与制造经济性的矛盾。
1)选择公差首先要满足使用要求,各个等级的使用范围可参考表2‑1、表2‑2。
2)对于公称尺寸≤500mm的配合,公差≤IT8时推荐选择孔的公差等级比轴的低一级;对精度较低或公称尺寸>500mm的配合,推荐孔轴用同一公差等级。3)在满足设计要求的前提下,应尽量考虑工艺的可能性和经济性。公差等级与加工方法的关系可参考表2‑3,加工方法与加工成本的关系可参考图2‑16
4)尺寸公差与表面粗糙度是设计中同时提出的要求,二者之间既有密切的联系,又有不同的功能,在选择公差等级时,应考虑表面粗糙度的要求,表2‑4可供参考。

表 2‑1 公差等级的应用
表2‑2公差等级的选用
|
公差等级 |
应用条件说明 |
应用举例 |
|
IT01 |
用于特别精密的尺寸传递基准 |
特别精密的标准量块 |
|
ITO |
用于特别精密的尺寸传递基准及宇航*特中**别重要的极个别精密配合尺寸 |
特别精密的标准量块,个别特别重要的精密机械零件尺寸,校对检验IT6级轴用量规的校对量规 |
|
IT1 |
用于精密的尺寸传递基准、高精密测量工具、特别重要的极个别精密配合尺寸 |
高精密标准量规,校对检验IT7至IT9级轴用量规的校对量规,个别特别重要的精密机械零件尺寸 |
|
IT2 |
用于高精密的测量工具、特别重要的精密配合尺寸 |
检验IT6至1T7级工件用量规的尺寸制造公差,校对检验IT8至IT11级轴用量规的校对塞规,个别特别重要的精密机械零件的尺寸 |
|
IT3 |
用于精密测量工具、小尺寸零件的高精度的精密配合及与4级滚动轴承配合的轴径和外壳孔径 |
检验IT8至IT11级工件用量规和校对检验IT9至IT13级轴用量规的校对量规,与特别精密的4级滚动轴承内环孔(直径至100mm)相配的机床主轴、精密机械和高速机械的轴径,与4级向心球轴承外环外径相配合的外壳孔径,航空工业及航海工业中导航仪器上特殊精密的个别小尺寸零件的精密配合 |
|
IT4 |
用于精密测量工具、高精度的精密配合和4级.5级滚动轴承配合的轴径和外壳孔径 |
检验IT9至IT12级工件用量规和校对IT12至IT14级轴用量规的校对量规,与4级轴承孔(孔径大于100mm时)及与5级轴承孔相配的机床主轴,精密机械和高速机械的轴颈,与4级轴承相配的机床外壳孔,柴油机活塞销及活塞销座孔径,高精度(1级至4级)齿轮的基准孔或轴径,航空及航海工业用仪器*特中**殊精密的孔径 |
|
IT5 |
用于机床、发动机和仪表*特中**别重要的配合,在配合公差要求很小,形状精度要求很高的条件下,这类公差等级能使配合性质比较稳定,相当于旧国标中最高精度(1级精度轴),故它对加工要求较高,一般机械制造中较少应用 |
检验1T11至IT14级工件用量规和校对IT14至IT15级轴用量规的校对量规,与5级滚动轴承相配的机床箱体孔,与6级滚动轴承孔相配的机床主轴,精密机械及高速机械的轴颈,机床尾架套筒,高精度分度盘轴颈,分度头主轴,精密丝杠基准轴颈,高精度镜套的外径等,发动机中主轴的外径,活塞销外径与活塞的配合,精密仪器中轴与各种传动件轴承的配合,航空、航海工业中仪表中重要的精密孔的配合,5级精度齿轮的基准孔及5级、6级精度齿轮的基准轴 |
|
IT6 |
广泛用于机械制造中的重要配合,配合表面有较高均匀性的要求,能保证相当高的配合性质,使用可靠,相当于旧国标中2级精度轴和1级精度孔的公差 |
检验IT12至IT15级工件用量规和校对IT15至IT16级轴用量规的校对量规,与6级滚动轴承相配的外壳孔及与滚子轴承相配的机床主轴轴颈,机床制造中,装配式齿轮、蜗轮、联轴器、带轮、凸轮的孔径,机床丝杠支承轴颈,矩形花键的定心直径,摇臂钻床的立柱等,机床夹具的导向件的外径尺寸,精密仪器光学仪器,计量仪器中的精密轴,航空、航海仪器仪表中的精密轴,无线电工业、自动化仪表、电子仪器、邮电机械中的特别重要的轴,以及手表*特中**别重要的轴,导航仪器中主罗经的方位轴,微电动机轴、电子计算机外围设备中的重要尺寸,医疗器械中牙科直车头,中心齿轴及X线机齿轮箱的精密轴等,缝纫机中重要轴类尺寸,发动机中的汽缸套外径,曲轴主轴颈,活塞销,连杆衬套,连杆和轴瓦外径等.6级精度齿轮的基准孔和7级、8级精度齿轮的基准轴径,以及特别精密(1级2级精度)齿轮的顶圆直径 |
|
IT7 |
应用条件与IT6相类似,但它要求的精度可比IT6稍低一点,在一般机械制造业中应用相当普遍,相当于旧国标中3级精度轴或2级精度孔的公差 |
检验IT14至IT16级工件用量规和校对IT16级轴用量规的校对量规,机床制造中装配式青铜蜗轮轮缘孔径,联轴器、带轮、凸轮等的孔径、机床卡盘座孔、摇臂钻床的摇臂孔、车床丝杠的轴承孔等.机床夹头导向件的内孔(如固定钻套、可换钻套、衬套、键套等),发动机中的连杆孔、活塞孔、较制螺栓定位孔等,纺织机械中的重要零件,印染机械中要求较高的零件,精密仪器光学仪器中精密配合的内孔,手表中的离合杆压簧等,导航仪器中主罗经壳底座孔,方位支架孔,医疗器械中牙科直车头中心齿轮轴的轴承孔及X线机齿轮箱的转盘孔,电子计算机、电子仪器、仪表中的重要内孔,自动化仪表中的重要内孔,缝纫机中的重要轴内孔零件,邮电机械中的重要零件的内孔,7级、8级精度齿轮的基准孔和9级、10级精密齿轮的基准轴 |
|
IT8 |
用于机械制造中属中等精度,在仪器、仪表及钟表制造中,由于基本尺寸较小,所以属较高精度范畴,在配合确定性要求不太高时,可应用较多的一个等级,尤其是在农业机械、纺织机械、印染机械、自行车、缝纫机、医疗器械中应用最广 |
检验IT16级工件用量规,轴承座衬套沿宽度方向的尺寸配合,手表中跨齿轴,棘爪拨针轮等与夹板的配合,无线电仪表工业中的一般配合,电子仪器仪表中较重要的内孔,计算机中变数齿轮孔和轴的配合,医疗器械中牙科车头的钻头套的孔与车针柄部的配合,导航仪器中主罗经粗刻度盘孔月牙形支架与微电机汇电环孔等,电机制造中铁心与机座的配合,发动机活塞油环槽宽,连杆轴瓦内径,低精度(9至12级精度)齿轮的基准孔和11~12级精度齿轮和基准轴,6至8级精度齿轮的顶圆 |
|
IT9 |
应用条件与IT8相类似,但要求精度低于IT8时用,比旧国标4级精度公差值稍大 |
机床制造中轴套外径与孔,操纵件与轴、空转带轮与轴,操纵系统的轴与轴承等的配合,纺织机械、印染机械中的一般配合零件,发动机中机油泵体内孔,气门导管内孔,飞轮与飞轮套圈衬套,混合气预热阀轴,气缸盖孔径、活塞槽环的配合等,光学仪器、自动化仪表中的一般配合,手表中要求较高零件的未注公差尺寸的配合,单键连接中键宽配合尺寸,打字机中的运动件配合 |
|
IT10 |
应用条件与IT9相类似,但要求精度低于IT9时用,相当于旧国标的5级精度公差 |
电子仪器仪表中支架上的配合,导航仪器中绝缘衬套孔与汇电环衬套轴,打字机中钾合件的配合尺寸,闹钟机构中的中心管与前夹板,轴套与轴,手表中尺寸小于18mm时要求一般的未注公差尺寸及大于18mm要求较高的未注公差尺寸,发动机中油封挡圈孔与曲轴带轮毂 |
|
ITU |
用于配合精度要求较粗糙,装配后可能有较大的间隙,特别适用于要求间隙较大,且有显著变动而不会引起危险的场合,相当于旧国标的6级精度公差 |
机床上法兰盘止口与孔、滑块与滑移齿轮、凹槽等,农业机械、机车车箱部件及冲压加工的配合零件,钟表制造中不重要的零件,手表制造用的工具及设备中的未注公差尺寸,纺织机械中较粗糙的活动配合,印染机械中要求较低的配合,医疗器械中手术刀片的配合,磨床制造中的螺纹联接及粗糙的动联连,不作测量基准用的齿轮顶圆直径公差 |
|
IT12 |
配合精度要求很粗糙,装配后有很大的间隙,适用于基本上没有什么配合要求的场合,要求较高的未注公差尺寸的极限偏差,比旧国标的7级精度公差值稍小 |
非配合尺寸及工序间尺寸,发动机分离杆,手表制造中工艺装备的未注公差尺寸,计算机行业切削加工中未注公差尺寸的极限偏差,医疗器械中手术刀柄的配合,机床制造中扳手孔与扳手座的连接 |
|
IT13 |
应用条件与IT12相类似,但比旧国标7级精度公差值稍大 |
非配合尺寸及工序间尺寸,计算机、打字机中切削加工零件及圆片孔、二孔中心距的未注公差尺寸 |
|
IT14 |
用于非配合尺寸及不包括在尺寸链中的尺寸,相当于旧国标的8级精度公差 |
在机床、汽车、拖拉机、冶金矿山、石油化工、电机、电器、仪器、仪表、造船、航空、医疗器械、钟表、自行车、缝纫机、造纸与纺织机械等工业中对切削加工零件未注公差尺寸的极限偏差,广泛应用此等级 |
|
IT15 |
用于非配合尺寸及不包括在尺寸链中的尺寸,相当于旧国标的9级精度公差 |
冲压件、木模铸造零件、重型机床制造,当尺寸大于3150mm时的未注公差尺寸 |
|
IT16 |
用于非配合尺寸及不包括在尺寸链中的尺寸,相当于旧国标的1。级精度公差 |
打字机中浇铸件尺寸,无线电制造中箱体外形尺寸,手术器械中的一般外形尺寸公差,压弯延伸加工用尺寸,纺织机械中木件尺寸公差,塑料零件尺寸公差,木模制造和自由锻造时用 |
|
IT17 |
用于非配合尺寸及不包括在尺寸链中的尺寸,相当于旧国标的11级精度 |
塑料成形尺寸公差,手术器械中的一般外形尺寸公差 |
|
IT18 |
用于非配合尺寸及不包括在尺寸链中的尺寸,相当于旧国标的12级精度 |
冷作、焊接尺寸用公差 |

表 2‑2各种加工方法的加工精度

图 2‑16公差与成本的关系

表 2‑3公差等级与表面粗糙度的对应关系
配合的选用
(1)选择时要考虑配合件的工作情况
配合件间有无相对运动,若有相对运动,则只能选间隙配合;
配合件之间定心精度高低,要求高时需采用过渡配合;
配合件受力情况。单位压力大时,间隙要大些,或过盈要小些;
装配情况,如需经常装拆,则配合间隙要大些,或过盈量要小些;
工作温度。若工作温度与装配温度相差较大时,必须充分考虑装配的间隙在工作时发生的变化。
(2)考虑配合件的生产情况
当属于单件小批生产时,孔往往接近最小极限尺寸,轴往往接近最大极限尺寸,造成孔轴配合趋紧,此时间隙应放大些。
(3)应尽量选用优先配合
选择配合的方法有类比法、计算法、试验法三种。类比法即考虑所设计机器的使用要求,参照同类型机器中已有的配合进行修正的方法。目前生产中多用这一方法)可供参考。
(4)应用实例

表 2‑4优先配合选用说明
表2‑6间隙或过盈修正表
|
具体情况 |
过盈应 增或减 |
间隙应增或减 |
具体情况 |
过盈应 增或减 |
间隙应 增或减 |
|
材料许用应力小 |
减 |
旋转速度较高 |
增 |
增 |
|
|
经常拆卸 |
减 |
有轴向运动 |
增 |
||
|
有冲击负荷 |
增 |
减 |
润滑油粘度较大 |
增 |
|
|
工作时孔的温度高于轴的温度 |
增 |
减 |
表面粗糙度较高 |
增 |
减 |
|
工作时孔的温度低于轴的温度 |
减 |
增 |
装配精度较高 |
减 |
减 |
|
配合长度较大 |
减 |
增 |
孔的材料线膨胀系数大于轴的材料 |
增 |
减 |
|
零件形状误差较大 |
减 |
增 |
孔的材料线膨胀系数小于轴的材料 |
减 |
增 |
|
装配时可能歪斜 |
减 |
增 |
单件小批生产 |
减 |
增 |