上海2023年四批次已经拉开帷幕。
浦东此次一口气推出2个外环别墅项目,包括橫沔玖境瑞府、浦发虹湾。
另外,外环内瑞仕半岛璟庭的洋房产品预备入市。
浦东外环周边稀缺的别墅产品,无疑是千万级改善置业重点关注的项目,但这3盘彼此之间差异化较大。
我们先来看看这三盘别墅产品的基础数据:

第一,橫沔玖境·瑞府位于张江科学城南部,近康桥工业园+迪士尼旅游度假区,周边产业能级较高,本身是城市更新重点项目,是低密墅区,需要较长的时间才能兑现。
第二,浦发虹湾位于浦东唐镇,是浦发城市更新项目中的一环,主要依赖于自驾,这里的城市界面在逐渐变好,教育、商业等配套都有明显提升。
第三,瑞仕半岛璟庭位于浦东高行,*轨双**交汇+城市资源丰富,东沟的城市界面相对老旧,但居住氛围非常浓郁。
今天我们就来详细对比下这三个浦东千万级低密墅区!

地段PK
就地段价值而言, 橫沔玖境·瑞府规划能级颇高,浦发虹湾自驾通达张江、浦东市区 ,瑞仕半岛璟庭是外环内地铁盘。

橫沔玖境·瑞府位于浦东横沔古镇,近21号线(在建),步行仍有一定的距离;
浦发虹湾位于唐镇王港片区,与轨交相距略远,可以通过公交车接驳,凭借龙东高架可以直达张*核心江**、浦东市区;
瑞仕半岛璟庭位于外环内高行板块,周边6/21号线环绕,步行可达,6号线直达浦东市区。

轨交并不是改善客户主要的通勤工具,不少购房者更依赖自驾。
所以,项目到核心区的自驾距离和时间也非常关键!
具体来看:
通勤时间为15:00左右百度地图测量

浦发虹湾
浦发虹湾紧邻龙东高架路匝道口,开车上龙东高架非常迅速;项目周边还规划有南北向的华东高架;再算上外环高速,浦发虹湾旁有3条快速路。
“自驾通勤张江的便捷性”也被购房者广为点赞。
这条高架的通车,不仅让住在浦发虹湾,工作在张江的小伙伴通勤高度便捷。
更为浦发虹湾所在的片区注入了发展新动力,交通命脉打通,随之而来的就是资源、人才、配套等要素的流通。
非早晚高峰期,供参考,来源百度地图

横沔玖境
横沔玖境位于 张江科学城和国际旅游度假区 交汇处。
这里地处 张江科学城南部片区 , 又位于上 海国际旅游度假区西片区 ,更有 三轨交+三高架 环绕,多维立体交通网通达全城。

项目 毗邻 21号 线 (在建) 、 11号线 和机场联络线 (在建), 通达全城!
项目与21号线申江南路站 (在建) 直线距离约1公里 ,可以直达张江科学城、金桥、森兰、张家浜等浦东多个重要节点,更可以与8条既有线路实现换乘。
项目 周边三条高架环绕,包括 外环高速、度假区高架 、沪芦高速 , 与外环高速直线距离仅约1公里,畅达上海各大市区商圈。


瑞仕半岛璟庭
瑞仕半岛璟庭位于浦东高行板块, 从地理位置看,板块位于外高桥和金桥两大产业集群的中间,由6号线串联,基本盘很稳。
同时 凭借2条跨江隧道,去往杨浦、北外滩也非常方便。
瑞仕半岛璟庭距离黄浦江面较近,旁边低矮裙楼较多, 高区房源可能会有比较不错的瞰江视野。
瑞仕半岛璟庭步行可达6号线东靖路站,与成熟高尚住宅区很近,但一路之隔的城市界面差异较大。

板块配套成熟性
论板块配套的成熟性,三盘都是城市更新项目,本身规划就比较丰富。
浦发虹湾,唐镇板块其实配套已然醇熟,王港片区经过多年的发展,目前配套也可圈可点;
横沔玖境瑞府,作为约60万方城市更新项目,规划有多样化的城市资源,不过横沔古镇现有的配套仍有待完善;
瑞仕半岛璟庭,并非位于高行核心区,而是在城市界面相对老旧的东沟,高行核心的配套已可圈可点,印象城和嘉里金桥中心的开建提升了周边商业能级。

横沔玖境瑞府
横沔玖境是占地约60万方城市更新项目,涵盖建筑面积 约30万方住宅、约20万方商业 (规划) 。
横沔玖境保留了 横沔老建筑、水乡街巷尺度与历史肌理 ,形成 “一脉、两区、两轴、十三园” 的景观布局, 整体布局疏密有致。

这里汇聚九大生活体验的场景,包括:
智慧生态的 低密住区、星级酒店、特色客栈、以三港-四街-六桥为核心的水乡、历史建筑保护、汇集艺术人文的花园广场、奢品商店、特色餐饮和文创街巷。

项目周边沔青公园正在改造建设中, 用地面积约60.4公顷,相当于 80 多个标准足球场,预计 今年底竣工 ,是 上海7座环上公园之一 ,是示范江南园林典范。

项目北侧规划有建面约8625.37㎡幼儿园,现已开工建设; 规划建面约10906㎡社区公共服务设施 即将启动。


浦发虹湾
很多人会觉得浦发虹湾所在的王港片区,在唐镇的价值偏弱。
不过,随着浦发在这里大规模的城市更新,一切都在向好,城市界面在变好、业态更潮流。
同时得益龙 东 高架通车,越来越多的张江客 群选择居住于此,居住人群素质的改善,会影响很多方面,比如教育、配套业态的提升。

项目西侧就是 上海市金融信息服务产业基地 。
30余家大型金融机构、60余个金融机构的科技研发部门、创新实验室、软件中心、信息技术中心、区块链金融科技园……一路连缀。
据悉,金融及科技白领达约10万人,是上海乃至中国的金融产业服务高地,相当数量的金融科技人才,保证了唐镇的产业水平和人口基础。
浦发虹湾就 与高能级产业为邻。
商业上,步行范围内有恒生商业广场,稍远一些2号线唐镇站有阳光天地、恒生万鹂广场,或者可以开车到张江长泰广场。
另外,浦发虹湾又是一个大体量城市更新项目,体量大意味着住宅、学校、商铺都有规划,不出大社区就能解决生活所需。

瑞仕半岛璟庭
瑞仕半岛璟庭所在的东靖路地铁站以西又名东沟,整体的发展潜力相较其余两个片区还是有一定差距的。
项目周边有老公房、动迁房,但现场感受下来,整体城市界面并没有特别老旧的感觉。
整体的城市界面并没有想象中那么差。

如果希望入住即享比较成熟的氛围,又能慢慢改进,瑞仕半岛璟庭其实是有很多亮点的。
除了一些底商和邻里中心,最重要的2个规划:一个是东靖路站的印象城,建成了对板块内的商业氛围有极大的提升; 另一个就是嘉里金桥中心(在建)。
教育配套方面,从地块划分来看,瑞仕半岛璟 庭 大概率和高行现有的优质教育无缘,但在项目北侧其实有在建的小学和初中。


社区产品
3个项目都有别墅产品,产品上各有千秋,面积段相差很非常大,差异化非常明显。
总价上,相差并不算大,横沔玖境瑞府的别墅产品面积段很大,主力总价在1200-1500万之间;
浦发虹湾别墅产品面积段略小一些,主力总价在1000-1100万之间;
瑞仕半岛璟庭璟庭洋房产品面积段适中,主力总价在1100-1300万之间。

浦发虹湾
浦发虹湾二期容积率只有1.6,这批128套叠墅位 于二期地块 核心中轴景观位 ,拥有更好的采 光和视野。
全人车分流设计 ,在保证家里的老人和小孩安全的前提下,也减少了汽车尾气对小区里面的绿化造成污染。
项目主力户型为建面约131-135㎡叠墅,相对来讲叠墅在整个大张江区域是比较稀缺的,叠墅总价大概在1000万级价位。
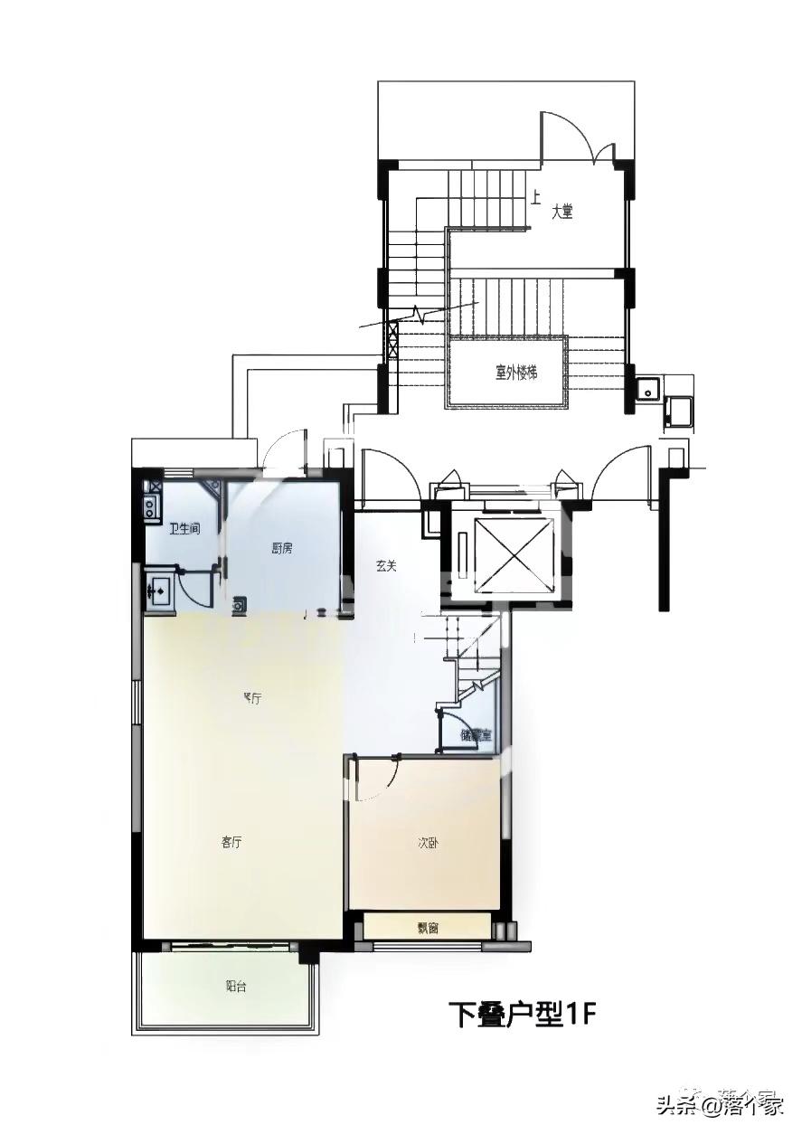
建面约134㎡下叠户型:

整体隔代分层设计,让老人与年轻人的生活作息互不干扰,又能同居一室,让和谐的家庭关系成为日常。
功能性上做到四卧布局,且每个房间都带有飘窗或阳台,采光通风视野都极好,可轻松承载三代同堂、二胎家庭的美好生活。
地下室层高达到约5.85米,健身房、会客区、架子鼓、瑜伽室、储藏室等都能轻松承载。
一层餐客厅一体大横厅设计,南向面宽达到约6.7米,待客大气尊崇。
下叠精髓自然是亲近自然的庭前绿地,延展出大家庭多种居住的可能性。
建面约135㎡中叠户型:

中叠很特别,首先入户前厅有约6.4米挑高,归家更有仪式感和尊崇感。
其次,餐客厅南向贯通式阳露台,满足业主一半自然、一半静谧的多样化生活情景。
另外主卧套房,配备衣帽间和独立卫浴。
值得一提,中叠也拥有地下室,这在叠墅市场中颇为少见,一个地下空间可以解决很多储物难题。
建面约131㎡上叠户型:

上叠采光更具优势,阳光慷慨得铺天盖地。且不会受楼上干扰,更安静,私密性更好。
上楼,就进入了更为私密的个人空间;下楼,则是进入了交流互动的家庭空间;两层不同的空间,让两种状态彼此分离。
二层贴心双卫生间的设计可以避免“用厕早高峰”。
顶层和二层北向的双露台面积达到近65㎡,超高的拓展空间。

横沔玖境瑞府
横沔玖境·瑞府是横沔玖境大城 住宅产品。
2022年, 横沔玖境项目荣获“2022智慧建造标杆项目”奖项 ,代表着行业内智慧建造的先进水平,依托项目数智建造应用系统,应用大数据、物联网等技术手段,精益建造、数字建造成为项目的品质标签。

横沔玖境·瑞府延续申迪、金茂高端品质基因,融合横沔历史文化风貌匠心定制,打造约30万方国际诗意住区,以 亲地洋房、少量叠拼 呈现一方城市理想生态栖居地。

项目整体色调沿用 新中式经典的灰白色调 ,标准段采用仿石涂料材质。
项目借鉴古镇肌理,营造出具有 对称秩序、府邸气质 的人居空间,用礼序的空间体验打造归家动线,重塑归家领域感。
归家路上,沿途是 对称的中轴景观 ,沿途 设有休闲绿化带、绿化休闲步道等 功能空间 。
住宅行列间设有尺度适宜的 邻里花园 ,设置有休闲空间,是业主们休憩、娱乐、社交、待客的好去处。

示意图
横沔玖境•瑞府叠墅双面临河,栋栋滨水,推窗可见波澜水景。
主力产品为建筑面积约176-192㎡臻稀叠墅,主力总价在1200-1500万之间。
建面约176 ㎡ 上叠户型图如下:

建面约176㎡星空上叠,4房2卫3卫设计,格局上非常奢阔、大气。
入户玄关设计,归家更有仪式感和尊崇感;
约7米大面宽横厅,双窗观景,采光和瞰景视野都非常好;
朝南双卧,约3.4米大面宽,主卧套房设计,让家人各自拥有专属空间。
建面约 187 ㎡ 中叠户型图如下:

建面约 187 ㎡宽境中叠,4房2卫3卫设计, 整体隔代分层设计,让老人与年轻人的生活作息互不干扰。
客餐厅楼层,约7米大横厅设计,餐厅南连阳台,中厨、西厨就在餐厅北侧,动线非常清晰。
卧室楼层,双朝南卧室,主卧套房设计,让家人各 自拥有专属空间。
建面约192 ㎡ 下叠户型图如下:

建面约192㎡下叠,4房2卫3卫设计。
一层餐客厅一体大横厅设计,南向面宽达到约7米,设置有老人房,避免老人上下楼不便 ,又关照了不同的居住习惯。
二楼两卧都朝南,主卧尺度感不错,起居室→衣帽间→卫浴间层层递进,让生活更有秩序。
约50㎡地下室,约5.3米奢阔层高,丰富拓展空间,盛放全家人的志趣时光。

瑞仕半岛璟庭
项目体量25万方,地块坐拥水岸围合,绿荫环绕的地利条件。产品为稀缺的洋房、大平层及高层的组合,构建一个动静皆宜的品质社区。
总体布置各具特色,洋房区静谧雅致,高层区坐拥中央花园,水岸江景。周边配置完善的社区配套以及沿街活力商业街区,提升了社区的品质、舒适。

项目打造 “超低能耗建筑”,被动式的全防护系统,让业主的家,安静节能四季如春。
保温与建筑的整体一体模板化系统,诠释了真正的安全、耐久、防水。
屋顶太阳能光伏系统、新风系统、车库CO检测等“黑科技”的运用,实现绿色的健康生活。
项目主推建面约141-160㎡洋房产品,主力总价在1100-1300万。
下叠户型1F

下叠户型2F

大平层户型

上叠户型1F

上叠户型2F

最后说下积分:
根据之前的开盘情况来看,横沔玖境瑞府和浦发虹湾大概率不触发积分或会低分。
瑞仕半岛璟庭前期的入围分可以参考,一期高层+洋房36.31分,二期高层55.28分,三期预计推出288套高层+210套洋房,供应量超过前两期,分数有望更低或不触发积分。