
美景美食,三两好友,言笑晏晏,喝一口热麦茶,往后的每一个天,我都愿意这样度过。提到日本,就会想到富士山,歌舞伎,动漫等具有日本风的东西。日本是个精致的国家,把简单的生活做到极致的美学,寿司即是日本美食里最有代表性的。追求自然协调和极致,从寿司本身再到空间,一是从视觉和味觉去做到极致,二是从文化和理念把空间做到极致。有这么一家“海之恋寿司”,即把寿司做到极致,又把空间做到最有味道。
▽空间改造前/Before the space transformation

▽空间改造后/After space transformation

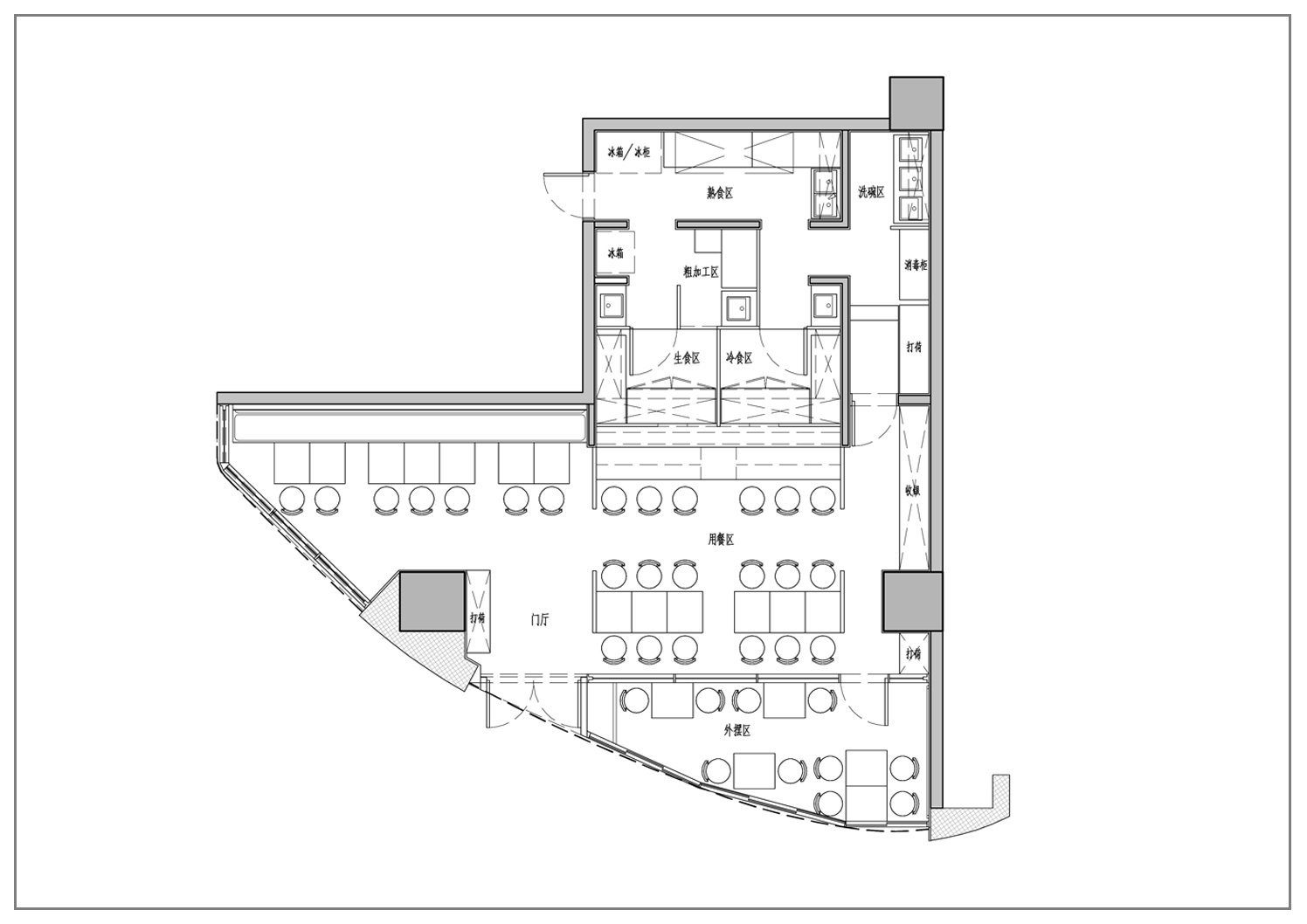
项目难点:餐饮的设计重视门面的展示,海之恋佛山天虹店原本的空间内有两大立柱,其中一个位于门面的展示区域,且上面装有消防栓等无法改变的限制,给门面的设计带来一定的难度。餐饮后厨的区域划分需做严格的隔断,且针对日料的备餐,要考虑整个后厨人员的操作流程动线需流畅,以提高备餐的效率。
▽施工过程/Construction process


门面因立柱上消防栓阻碍,导致无法呈现一整面的展示给到顾客,于是针对消防栓进行木饰面的包裹,为其做了一堵暗门,且巧妙的将品牌LOGO展示与其融合,从而将整个门面能够连贯起来。
▽门面设计/Facade design

门面选用原木等天然材料颜色,形成朴素的自然风格。日式风格讲究空间的流动与分割,海之恋门面呈半圆状,整个空间选用原木材料包围,右边挂满一墙大红灯笼,在朴素自然的风格中充满烟火热闹的生活味。文字是一个空间体现其文化的媒介,门楣采用日本木牌菜单进行错位的排列,每个木牌标注着店里的各种寿司的名称,增加层次感的同时给沿途的顾客带来直观的视觉体验。
▽用餐区/Dining area


入门便见一片云山背景墙,如有风迎面吹来,让人能放下疲惫,享受当下的美好。采菊东篱下,悠然见南山亦如此吧。结合透明亚克力光滑面的特异性,在其上用不同灰度的氟碳漆喷面,使其灰度凸显透明亚克力的晶莹剔透的材料特点,有行云流水顺风顺水的好意头。
▽用餐区/Dining area



整个用餐区天花用木格栅进行整齐的排列,并将其分为单独的体块,坐在用餐区处,以灯笼作为中央展开,屋檐与屋脊的倾斜交错,层次感丰富,整个餐厅的氛围热闹有序,红红火火。
▽开放厨房餐区/Open kitchen dining area


厨房采用了开放式的模式,透明玻璃,厨师精湛技艺的展示,使得食客与食物和烹饪者之间多了更多的互动。食客也多了一份期待。
▽外围用餐区/Peripheral dining area


外围用餐区最忌讳的就是冷清,故在墙上挂满了一排大红色的灯笼,红彤彤的影子倒影在内围玻璃上,灯火通明,犹如大院里过大年,小几桌也热热闹闹喜庆非凡。
▽细节/Detail




把简单的生活做到极致的美学,从寿司本身再到空间,一是从视觉和味觉去做到极致,二是从文化和理念把空间做到极致。细节是体现每个空间的文化内涵,只有把每个细节做到位,从视觉到体验,都需要反复的推敲,从一个杯子一双寿司筷子到椅子和空间,都是我们要去细细深究的,只有这样,才能把最好的用餐空间呈现给客人,只有设身处地的去思考和设计,才能做出最好的空间设计。
做空间的创造者,做梦想的改造家。——九陌空间设计
▽平面布局/Plane layout

项目名称 | 海之恋(佛山天虹店)
项目地点 | 广东省佛山市
项目风格 | 日式项目面积 | 90㎡
完工时间 | 2019年2月—2019年4月
设计公司 | JOM 九陌空间设计
设计主创 | 骆王华
参与设计 | 钟剑鸣 吴丹阳
施工负责 | 李军伟 李锐
摄影团队 | 云时摄影
