项目名称:深圳熙璟城7栋B户型
设计范围:硬装&软装设计
设计单位: 深圳市宇一室内设计有限公司
建设单位:君胜集团·深圳市华兴广实业有限公司
设计面积:145㎡
项目性质:样板房展示
项目位置:深圳·平湖·富安大道与平安大道交汇处
设计总负责: 罗中艺
硬装主设计师:周艺
软装设计师:朱莎、郑雅心




深圳熙璟城位于平湖中心区,富安大道与平湖大道交汇处,毗邻商贸大城——华南城。青平快速、丹平快速、水官高速可快速通往福田罗湖,地铁十号线十三号线十八号线规划建设已落成。项目到市区的距离也将进一步拉近。




品牌旗舰店、中心流行餐饮、精品超市、商业百货、娱乐中心皆汇聚于此,结合优质资源为平湖打造一站式都汇时尚生活体验,开启一站式体验都汇梦生活。






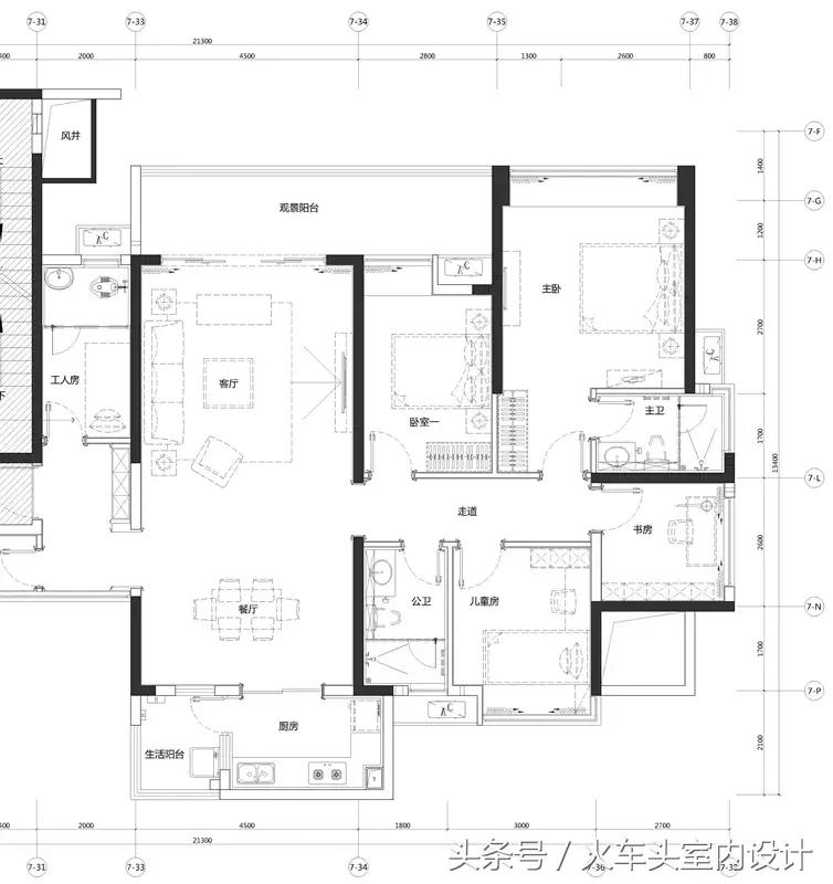
深圳熙璟城B户型样板间,动静分区明确,互不干扰。主卧和书房相连通可分可合随心所欲,工人房、私家入户花园等,尤其适合三代同堂、家族共居。






客厅作为家庭成员休息交流的中心,与餐厅相连。同时沙发和座椅选择轻松明快的式样,装饰挂画点缀,辅以挂画同色系地毯更显温馨。餐厅简约的圆形石材铁艺圆桌很好的融合了两种材质,与边上更高的白色小餐柜摆放错落有致,使得空间生动起来。



主卧空间,豪华大气,通透实用。融合了三个空间:更衣、睡眠、休息、看书、小坐。简约的欧式家具以硬朗的材质和明快的色调及雅致的配饰,赋予空间沉稳,典雅,轻松的神采。书房简单实用,但软装颇为丰富,各种象征主人爱好的陈设一应俱全,被翻卷边的古旧书籍、地标建筑摆设、一支古典的放大镜……即使是装饰品,这些东西也足以为书房的欧式风格加分。卫生间塑造了概念性的卫浴空间,顶部铝扣板吊顶与墙身艺术马赛、亚细亚世纪石相配,极具休闲风韵,镜面使不大的空间得到延伸也引入了光线。






本方案力求简约,自然,随意的笔触演绎简欧风格的温馨与和谐。