Nordeus贝尔格莱德总部占据着一幢6000平方米的全新大楼,并通过精心的室内设计,吸引全球和当地最优秀的业内设计师和技术创意人才,推动高效创新和生产力,宣扬他们开放透明的文化精神。
设计:Jump Studios、Antipod Studio
地址:塞尔维亚 贝尔格莱德
面积:6,000 平方米
时间:2019年
摄影:Relja Ivani?
Tags:游戏,总部、开放协作灵动多元、空间的可变性、共享的景观视野、多元餐厅咖啡厅、开敞明亮多彩、优雅木色、旋转楼梯

Nordeus是一家来自塞尔维亚首都贝尔格莱德的独立游戏工作室,创立于2010年,一直是手游市场最著名的足球题材模拟经营游戏之一。《Top Eleven》《Spellsouls(魔法战魂)》都出自于他们之手。本案是由Jump Studios与Antipod Studio两家设计团队携手为其打造的贝尔格莱德全新总部办公场地。







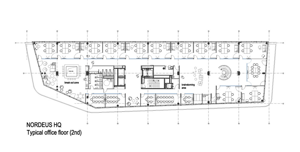
通过重新审慎访客和员工的行走动线,以及为满足170多名员工所需的多元化工作设施,Jump设计团队决定营造一个开放、灵动的全新协作环境。同时注重健康幸福感和工作/生活的相平衡,比如一流的员工设施(健身房、瑜伽室、音乐室和游戏室)、柔软的儿童游戏区、创客空间、激发创意的凌乱房间(鼓励传统艺术实践去激发数字游戏的发展进程)。














灵活性是本案成功的关键,如此才能契合Nordeus不断变化的工作模式。可移动隔屏可以让项目团队随着产品开发而扩展人员和区域,并随着项目的完成而逐步缩小。除了这些可改变大小的解决方案,还设有非正式的分组讨论区和车厢座形式的会议空间,所有这些设计都是为了促进灵活敏捷的团队工作。






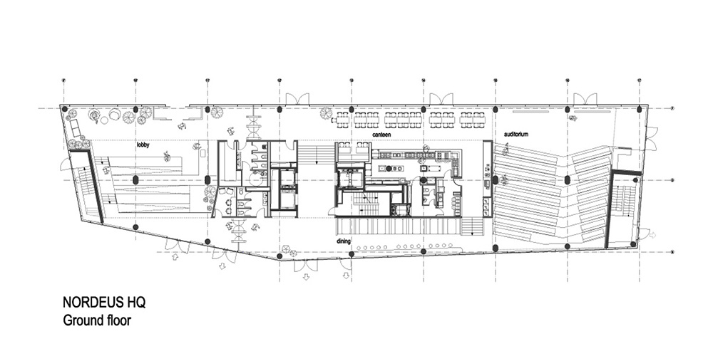
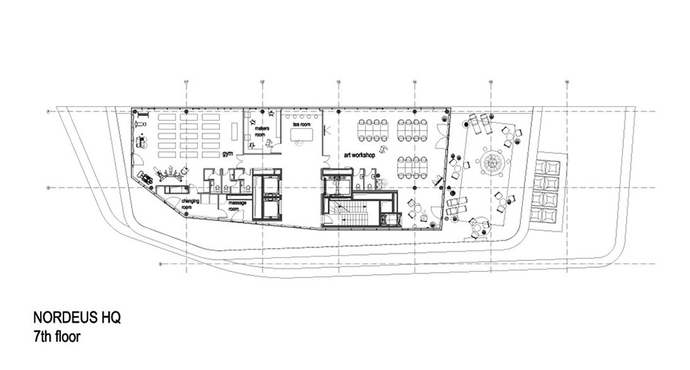
应客户要求,这处总部空间应尽可能开敞透明、没有等级感,因此管理层位于大楼的第三层,而不是顶层空间。拥有最佳城市景观视野的六楼和七楼让所有公司成员都能分享;并且每个楼层都拥有270度的景观阳台,让大家在繁忙之余环顾室外美景、或者在室外露天工作、举办各种活动、享受大自然的赐予。


















一楼设有一个可容纳200人的大型多功能会议厅,既可以召开内部全员大会、也可以举办游戏比赛等外部活动。会议厅近旁设有咖啡厅和餐厅,为Nordeus所有员工提供室内餐饮服务;同时这里也接待来到总部的访客,通过对这处空间的体验,感知Nordeus之所以如此成功其背后的创新性文化。














总部大部分家具和配饰都是在本地采购和定制的,这使得整个项目都在可控预算之内。因此公司能够有足够的资金投入到Nordeus Hub——一个专门为游戏行业创建的免费的共享办公空间,为个人、初创企业和学生提供各种项目和社区活动。







本案特色产品应用——
1、Stand Up,设计:Thorsten Franck,品牌:Wilkhahn,推出时间:2014年


2、Oslo 沙发,设计:Anderssen & Voll、Espen Voll,品牌:muuto,推出时间:2013年

3、Mademoiselle 休闲椅,设计:Ilmari Tapiovaara,品牌:artek,推出时间:1956年

4、Mademoiselle摇摇椅,设计:Ilmari Tapiovaara,品牌:artek,推出时间:1956年

5、Miura吧椅,设计:Konstantin Grcic Industrial Design,品牌:Plank,推出时间:2005年

PS:浏览大图请至官网~
猜您喜欢:更多游戏开发公司办公空间——
1、暗影魅彩 游戏商Zagrava Playrix乌克兰办公欣赏

2、摩登黑白灰 游戏开发工作室Square Enix伦敦办公设计欣赏

3、活力工业风 以色列游戏公司Playtika荷兹利亚办公设计欣赏

4、趣味工业风 游戏开发公司Hutch Games伦敦办公室扩张设计欣赏

5、缤纷时尚 移动游戏开发商Product Madness伦敦办公设计欣赏

6、趣味空间 休闲游戏Jelly Button特拉维夫总部设计欣赏

7、放飞创意 顶级游戏公司Wargaming英国吉尔福德办公设计欣赏

8、灵感之旅 游戏公司傲世堂上海办公设计欣赏

9、纸牌语境 在线*彩博**游戏Stars Group索非亚办公设计欣赏

延伸阅读:在时尚办公网,发现各行业更多时尚办公空间——
联合办公、总部、科技、设计、软件、游戏、广告、影音、金融投资、地产、教育、传统行业……
来源:时尚办公网popoffices,编译:Garnet,转载请注明,谢谢!