众所周知,宝中片区已经连续3年没有新房住宅集中供应了,而随着2021、2022年,区域内3块限价宅地(其中2块成功出让,1块流拍)的出现,再一次让深圳人看到了宝中置业的盼头。
节前,@搜狐焦点深圳粗略统计了宝安2023年潜在入市的住宅项目,发现宝中今年的新房住宅供应量最大,或有9盘。
节后,我们对这一数据重新梳理,并实地探访后发现,实际宝中今年可打新的优质住宅项目并没有那么多,理由是:
①已建成的 裕安领域轩 规划建筑功能为“单身宿舍”,并不是普通的住宅类别;
② 盛意家园 独栋小体量盘,但地段和项目品质不匹配。项目居住体验、配套设施在区域内来说都差点意思,但因挨着宝中边缘,所以吹风价也要10万/平左右;
③ 泰华梧桐聚落 (即泰华梧桐村)确定只租不售。项目去年商业办公已招租,今年1月份住宅转酒店式公寓出租,租金约165元/平*月(数据来源:泰华梧桐村微信公众号),每月租金约等于壹方中心玖誉的1.3倍、天健时尚空间的1.5倍;
④ 新锦安三期 根据网友爆料,还处于前期施工中,今年和去年的变化不大,按照工程进度,今年入市的可能性非常小。
因此,综上来看,想要打新宝中的朋友们,或只能寄希望于剩下的 越秀瑞樾府、鸿荣源胤璇、都市茗荟花园、泰华海逸世家(即泰华梧桐林居) ,这几个新盘了。
@搜狐焦点深圳开春探盘活动,第三站便来到了宝中片区,下面将获取到的一手住宅信息分享给大家。
01
鸿荣源胤璇
把宝中房价从10万+/平,拉回8万+/平的鸿荣源胤璇,可以说是近年来置业宝中的人最关注的新盘了。
项目原为宝中A004-0175宗地,于2021年11月底出让,最终被鸿荣源以30.94亿底价收入囊中,商品住宅毛坯限价8.55万/平。


工程图丨搜狐焦点深圳2月2日实拍
位于5号线宝华站A2出口的鸿荣源胤璇,不仅地段优质,还存在非常明显的价格倒挂,一路之隔的熙龙湾、周边的壹方中心,二手房参考价为10万/㎡,鸿荣源胤璇的价格,相当于打了指导价的85折,更不用说实际的成交价了。

效果图
价格、地段虽然很香,但可售的房源却很稀少。根据规划设计要求,项目总建筑面积约12.4万㎡,其中包括约5.2万㎡的办公,约4.7万㎡酒店,约0.5万㎡的商业,约2万㎡的住宅。

而这2万㎡的住宅,还要剔除2000㎡的出租型人才住房,也就是说住宅可售面积最多仅1.8万㎡。住宅量少,位置、价格又好,因而鸿荣源胤璇也可以说是宝中最不愁卖的住宅新房了。
据搜狐焦点深圳2月2日走访发现,去年6月开工的鸿荣源胤璇,目前还在挖基坑阶段,进度相对一般。



施工图丨搜狐焦点深圳2月2日实拍
配套方面:
交通配套:项目距离5号线宝华站A2出口约20米,距离1、5号线换乘站宝安中心站步行约900米,可快速抵达前海、福田及罗湖等核心区。
教育资源:片区内有宝安实验学校、海旺学校,以及建设中的宝安中学(集团)小学部等多所学校,具体入学以当年区教育划分为准。
商业配套:项目步行可至前海HOP天地、壹方城购物中心、欢乐港湾等商圈,享受宝安最繁华的商业配套。


前海HOP天地丨搜狐焦点深圳2月2日实拍
02
越秀瑞樾府
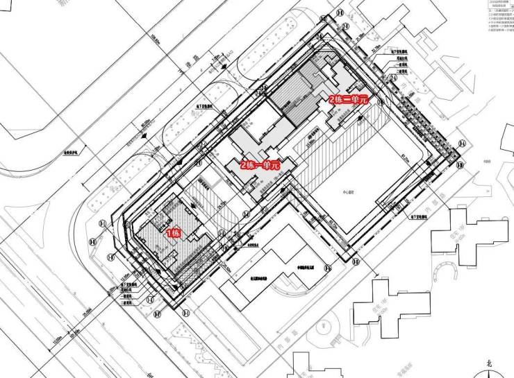
作为宝中的第二个限价盘,越秀瑞樾府目前也在紧锣密鼓的施工中。从现场施工来看,项目去年9月开工,目前还处于挖基坑状态。





施工图丨搜狐焦点深圳2月2日实拍
越秀瑞樾府原为宝中的A003-0434宗地,于2022年8月出让,当时地块竞地价、竞面积双双触顶,后被越秀地产摇号竞得,商品住宅毛坯限价8.86万/平。
根据规划要点,项目总用地面积接近1万㎡,建筑面积5.3万㎡,其中住宅是大头,占比94.25%,建面超5万㎡。

去年12月宝安管理局公布了“瑞樾府”的施工平面图和规划许可证,项目共2栋高层,房源数596套。
其中1栋规划为企业自持保障性租赁住房(224套),以及无偿移交政府的保障性租赁住房(56套);2栋分一单元、二单元,规划为普通商品住房,共306套。


位置虽然不及鸿荣源胤璇,但邻近宝体站的越秀瑞樾府,也是1站可达宝安中心区,同时北侧有新安中学(集团)第一实验学校、宝安妇幼保健院(三甲);南侧为宝安体育馆;周边还有深业新岸线、福中福·幸福海岸等住宅小区。

宝安妇幼保健院丨搜狐焦点深圳2月2日实拍

新安中学(集团)第一实验学校丨搜狐焦点深圳2月2日实拍

宝安区机关幼儿园幸福海岸分园丨搜狐焦点深圳2月2日实拍
配套方面:
交通配套:根据地图测距,项目距离1号线宝体站约600米,距离11号线宝安站步行约680米,属于双地铁盘,轨交出行便利性高。
教育资源:项目一路之隔有新安中学(集团)第一实验学校,西北侧有宝安小学,周边还有海韵学校等办公学校,具体入学以当年区教育划分为准。
商业配套:一站之隔有前海HOP天地、壹方城购物中心等商圈,能满足业主的购物需求。
03
泰华梧桐林居
宝中捂盘金刚之一的泰华梧桐林居(原名泰华海逸世家),从去年开始就加紧了建设脚步,就在大家都以为有望入市的时候,它果然没让人失望,又继续再捂了一年。
2023年了,它到底能不能卖呢?其实小编也不清楚,毕竟“渣男”的心思你别猜。但从工程进度看,对比2022年,目前楼体高了不少,预计有6-7层左右。

2022年4月施工图丨来源网络

施工图丨搜狐焦点深圳2月2日实拍

根据公开的信息显示,泰华梧桐林居用地面积约7.7万㎡,中建筑面积61.8万㎡,其中住宅有38.8万㎡(4482套)、商业3.43万㎡,另外还规划有一所社区幼儿园,建面接近3千㎡。项目容积率6.2,绿化40%,车位3081个。

项目共12栋楼体,其中1/2/3/4/5(一二三四单元)/6栋主要规划为住宅;另外5栋还有约1.2万㎡裙楼商业、7-11栋则是2-5层的商业体;12栋为幼儿园。

从规划来看,项目4482套的住宅体量在中心区实属罕见,据悉,项目共分两期开发,小道消息称,第一批先推出北区982套,网传户型有107㎡两房一卫、172㎡四房两卫,整体偏改善,但具体的以官宣为准。
位于新湖路一侧的泰华梧桐林居,周边有多个施工工地,其中西南侧为南方科技大学深圳医院扩建工程;西北侧是都市茗荟二期,但都市茗荟二期旁的商业用地,却迟迟没有动工。

医院扩建丨搜狐焦点深圳2月2日实拍

(图中绿网为泰华梧桐林居,封顶楼盘为都市茗荟二期)
配套方面:
交通配套:项目为1号线新安站地铁口物业,1站直达宝安中心;同时项目周边还有凯旋城、中商花园、新安地铁站等多个公交站台。


交通图丨搜狐焦点深圳2月2日实拍
教育资源:片区内有宝安实验学校,以及建设中的宝安中学(集团)小学部等多所学校,具体入学以当年区教育划分为准。
商业配套:项目步行可至欢乐港湾,同时距离前海HOP天地、壹方城购物中心等商圈也较近。
04
都市茗荟花园
都市茗荟花园二期位于新湖路与甲岸路交汇处西侧,与一期地块相隔新湖路,项目北侧是泰华梧桐聚落花园,西南侧是熙龙湾,东南侧为规划的商业地块,东侧则有新建小区云玺锦庭、都市茗荟一期。
都市茗荟花园二期共规划724户,共有5栋超高层住宅,分别为1栋A-E座,楼体建设地下3层,地上物理楼层约41-43层,住宅总建面约8.85万㎡。目前,网传都市茗荟花园二期的户型面积约87-150㎡3-5房,价格可参考1期毛坯备案价约10.9万/㎡。
@搜狐焦点深圳 实地踩盘发现,目前楼体已经封顶,开年后工地暂未复工,据工地保安大哥称,项目将在元宵节过后继续施工。看来都市茗荟花园二期也是一副不急不缓的姿态。


施工图丨搜狐焦点深圳2月2日实拍
虽然吹风“即将入市”多时,都市茗荟花园二期展示处并未开放,现场工作人员也对此表示不了解,看来上半年能否入市仍是问题。
都市茗荟花园二期对面的泰华梧桐村(原名泰华梧桐聚落)已于1月招租。

配套方面:
交通配套:项目地处宝中商圈,周边配套醇熟完善,临近地铁有1号线新安站、5号线宝安中心站,交通位置较为核心,通达度较高。
教育资源:周边有海旺学校、海乐实验及海天学校等,二期配建有幼儿园,根据宝安区2022年秋季义务教育公办学校招生计划及招生范围,项目所处的位置在属于海旺学校(九年制)和宝安中学集团小学(借址海乐实验学校)共享学区。具体入学以教育局当年划定为准。
商业配套:片区拥有壹方城、前海HOP天地、欢乐港湾、海雅缤纷城等超大型集中式商业。
来源:搜狐焦点深圳