2022年后半年冲刺时期
安阳基础城建开始蓄能
最新
安阳市自然资源与规划局,安阳县人民政府网站
共公布六宗批后公告
其中三块涉及体育场馆用地
一起看看是否在你家附近?

CBD附近区域
一直是安阳城建重点发展区域
本次规划涉及该区域
建设位置
朝霞路与岳飞街交叉口东北
建设规模: 5.73公顷
DN3-5-7-1、DN3-5-7-2等地块

具体规划: 其中深绿色部分为体育场馆规划(1.43公顷),浅绿色部分为公园绿地(0.86公顷),桔色部分为文化活动用地(1.16公顷),红色部分为公共管理与公共服务用地(0.88公顷)。
体育场馆设置规定: 60m-100m直跑道(环形跑道内侧应设置足球场、室外社区体育设施等开敞空间),具备大空间球类活动、乒乓球、体能训练和体质监测等用房。文化活动中心含青少年活动中心和老年活动中心。DN3-5-7-3地块规划卫生服务中心(门诊部)、派出所及街道办事处等。
(具体位置如下)
▼

体育场馆等设施的完善,便于周边居民休闲锻炼,有利于提高片区人居生活品质。从区位来看,该体育场馆与CBD公园相距不远,未来建成后对社区居民是一处利好。目前CBD属于蓄势待发阶段,城市功能逐步完善。区域在建在售楼盘有:建业君临大院、润安九府、安创海棠湖畔、安阳中深中心、合泰臻悦府、嘉洲纯墅美景、CBD安广铭著等。如有楼盘详情需要了解,可加好友ayxxwbdt0372,安阳买房包打听为你解答。
DN3-3-18-1、DN3-3-18-2地块
同样在CBD公园附近
也是一处体育场馆的批后公告
建设位置
德隆街与兴泰路交叉口西南
建设规模: 3.90公顷

具体规划: 其中深绿色部分为体育场馆规划(2.03公顷),浅绿色部分为公园绿地(0.73公顷)。在DN3-3-18-1内沿兴民路设置城市公厕。DN3-3-18-2建设社会公共停车场,规划泊位200个。
(具体位置如下)
▼

以上体育馆同样位于东区,区域在建楼盘有合泰泰和府;在售楼盘有碧桂园云顶、嘉洲纯墅枫景、泰宏阳光和苑、御湖宸院等。
DB7-10-15-1地块批后公告
建设位置
文明大道与盖津路交叉口东北
建设规模: 约1.82公顷

具体规划: 图中深绿色部分为体育场馆用地,规划面积为1.50公顷。
体育场馆设置: 60m-100m直跑道和环形跑道(环形跑道内侧应设置足球场、室外社区体育设施等开敞空间),具备大空间球类活动、乒乓球、体能训练和体质监测等用房。
(具体位置如下)
▼

该体育馆位于京港澳高速附近,区域新楼盘有正商海悦宽境;在建楼盘华珍东方都荟;在售楼盘元泰迎宾园、建业世和府、荣盛华府锦园等。
体育场馆的规划
是人民追求美好生活的愿景之一
家附近的体育馆、公园绿地、文化活动中心等
会是晨起锻炼、茶余饭后、周末休闲的好去处
另外
安阳县(示范区)
新公示一处商业用地规划
安阳县(示范区)WD1-17-4、WD1-17-5地块
建设位置
安阳县(示范区)梅东南路与新创东路交叉口西北
建设规模: 约3.13公顷

具体规划: 图中红色部分为商业用地(1.09公顷),绿色部分为公园绿地(1.41公顷)。
(具体位置如下)
▼

以下是两个住宅项目批后公告
有置业需求的小伙伴不妨关注一下
安阳秀水苑商住小区建设方案调整项目1-A号楼
该项目位于
文峰区中华路东侧、德隆街南侧、明福街北侧
建设规模: 30787.23平方米
建设单位
安阳新华富置业有限公司

识别进入可查看楼盘详情
▼

咨询电话:400-0369-069 转 66801
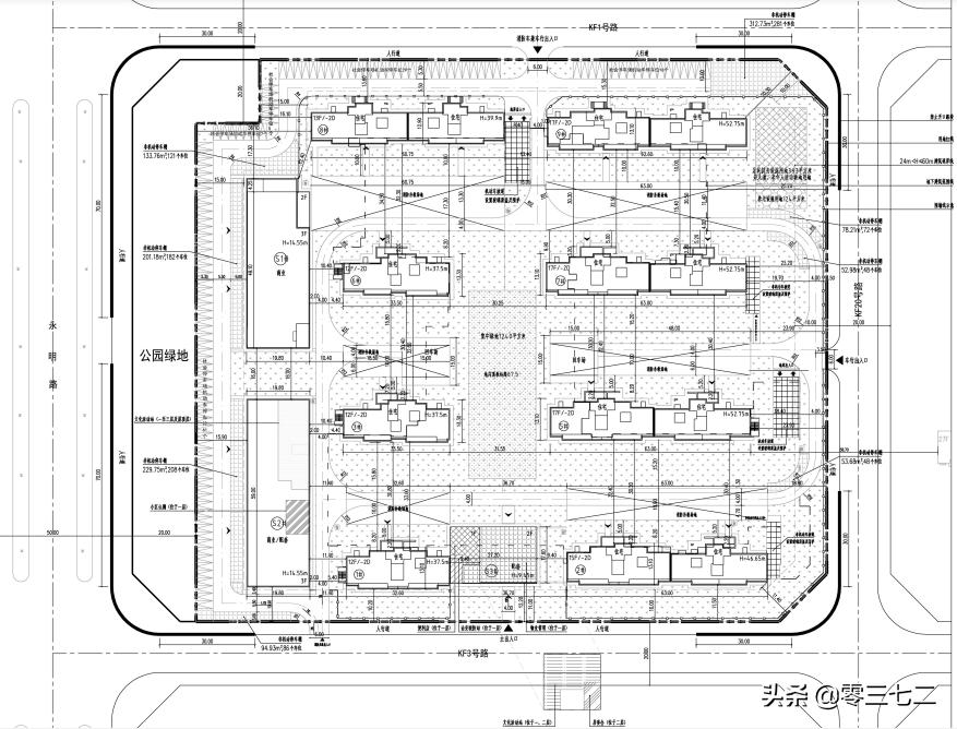
中深印象墅项目
1#-3#、5#-9#、S2#、S3#楼地下车库
该项目位于
文峰区永明路与KF1号路交叉口东南
建设规模
85730.21平方米
建设单位
安阳市中深房地产开发有限公司
(效果图)
▼

(详细规划图)
▼

具体规划: S1#、S2#商业配套,S3#楼配套楼;1#楼12层/负2层住宅,楼高37.5米;2#楼15层/负2层住宅,楼高46.65米;3#楼12层/负2层住宅,楼高37.5米;5#楼17层/负2层住宅,楼高52.75米;6#楼12层/负2层住宅,楼高37.5米;7#楼17层/负2层住宅,楼高52.75米;8#楼13层/负2层住宅,楼高39.9米;9#楼17层/负2层住宅,楼高52.75米。
小区东部设置居民健身设施用地383平方米兼儿童、老年人活动场地用地;养老设施用地124平方米。小区西北规划120个社会停车场机动车停车位。
识别进入可查看楼盘详情
▼

咨询电话:400-0369-069 转 65999
以上就是最新的规划公示
希望都能早日落地
2022已过半
后半年你家附近会有什么新变化
敬请期待吧......
来源:整理自安阳市自然资源和规划局、安阳县人民政府网站
安阳信息网房产频道,帮安阳人买到好房子