刚性美
“不是所有的建筑都必须是地标,但这个世界的历史进程告诉我们文化能在众多公共建筑中铸造地标”。
——弗兰克·盖里(Frank Gehry)

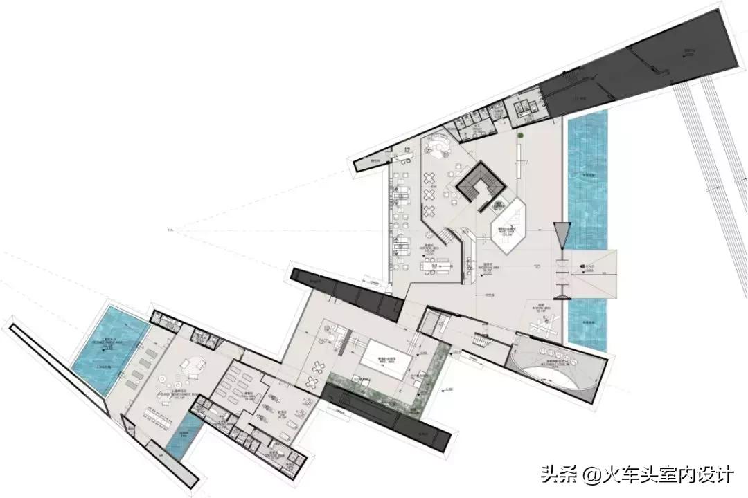
建业集团在郑州樱桃沟景区内的足球小镇是一座集自然、运动、休闲、人文于一体的运动美学小镇,为历经千年风沙冼炼的樱桃沟景区带来了一处全新的景观地标。足球小镇主入口处,一幢有棱有角的现代建筑,便是建业足球小镇的游客服务中心。它以充满历史感的古老夯土城墙作为底蕴结合玻璃幕墙,以一个超现代的新姿态稳稳地矗立在原始粗犷的自然地貌之中,作为未来整个足球小镇接待和展示的空间。

DIA丹健国际负责此次游客服务中心整体室内设计,以“内空间”设计视角,用不锈钢、螺纹钢、夯土、大理石打造出一个纯“刚性美”的室内空间。




游客中心的建筑外立面大胆尝试使用夯土外墙饰面,以表达对地域性和自然环境的尊重。选用当地的原色红土和原色黄土为原材料和上下基础色阶,以150mm作为一个夯土层,逐层施工,最终形成自上而下由赭石色过渡到土黄色的大体效果,这一手法被引用到室内,成为特殊的室内建材。

室内空间依据特殊地形朝人流的来向呈放射状,内部空间也因此由坚挺的直线来进行划分——这确定了本项目阳刚的基调。室内地面根据室外地形产生变化高低起伏,并由此与室外产生紧密的联系,让游玩体验更如行云流水般自然顺畅。

小镇两旁属“静”的古老城墙,与“动”的建业足球小镇游客接待中心交映衬托;“旧“的地形地貌,与”新“的建业足球小镇游客中心建筑相对比,趁上了结构主义震荡至今的余波,为建业足球小镇的存在赋予了异于传统的,别样的美。
设计元素与主题的完美契合
点线面交织呈现
指向了空间性格所在
挑空的大堂空间中,楼板、楼梯、沙盘等元素都被处理成坚硬的体块,如同大漠中的山石。在迎光一隅,一棵姿态挺拔昂扬的绿树中和了坚硬的石材与金属材质,在这一角幻化一份出尘的温柔。大厅中央的沙盘,是室内唯一的销售道具,倒映着天花上如星河般的灯光阵列。

天花在星河之下,具有韵律感的黑色灯柱直直垂下,为游客指引出了建业足球小镇的未来景象。由无数直线交织所组成的楼梯间,由线构成面继而围合成为一个通透的空间。他的存在彰显了对于线条极致的运用,错综复杂的线条也使节奏感得以淋漓尽致的展示。


营造“刚性”内建筑空间
体块的穿插与交叠
中原大地上的刚性美学
设计中,我们努力尝试解读来自中原大地的“美”的本质所在,将抽象意义上的“阳刚”通过对概念打碎、叠加、重组,得到一个具象的结果——鲜明的棱角、雄浑的体块、浑厚的材质及适度的温柔。




手工做旧的古铜色不锈钢板与夯土相呼应,在沉稳色彩的渲染下,令人想起广袤大地上健康的古铜色肌肤与虬结的肌肉。





休息区引入自然天光,临窗远眺千年古城,或在水吧台点上一杯喜欢的饮料,将自身与室内直白的韵律节奏融为一体,享受难得的悠闲时光。


转折处的趣味
心有猛虎 细嗅蔷薇
通过结构主义分离后散布在室内的各个转角的设计,既体现了对细节处一丝不苟的严谨性,也为以坚硬阳刚为主题的室内空间增添了一份活泼。




转角处的隔断墙整体使用灰色质感涂料,呈现出的是一种粗糙的质感,柔和的暖色灯直射隔断墙,透过墙下的缝隙映照在后方的金属材质上,灯光与金属材质的质感交相辉映,令这一转角处的光亮尤其跳脱,饶有趣味。





楼梯间内起伏转折的直线式灯光设计,在黑白之间,利用金属铜色点缀,演绎“纯质高雅,极致奢简”。扶手旁排列的手工打磨金属锈板也在灯光下泛着古铜色,在这转角的一隅,透露出了现代设计所推崇的理性,严谨地呈现出了属于运动的阳刚,和属于阳刚的洒脱。



不管是在哪个时代,人们永远都在怀旧与追寻未来之间行走。而建业足球小镇,为历经千年风沙的古城注入新的景观。令“旧”与“新”产生了完美的适应性,令“动”与“静”完美融合,是将建筑功能、自然风貌、地域文化和当代审美完美结合的一次实践,一曲对中原风貌的赞歌。
效果图
▽





项目名称:郑州 足球小镇游客服务中心
业主单位:建业足球小镇置业有限公司
项目净面积:约2000㎡
主创设计:薛峰
设计成员:谢新平、潘镇
软装设计:谈翼鹏、林理忠
项目时间:2019年04月
设计主材:灰色大理石、喷砂不锈钢、古铜不锈钢、黑色螺纹钢、陶瓷薄板、夯土
摄影师:金选民、胡义杰