“ 一生很长,但我只哭过两次。一次是出生时,一次是装修时。”
这可能是大部分正在装修的伙伴们的感受,而这些伙伴们身边准备装修的朋友也被吓得瑟瑟发抖。害怕装修,也害怕被骗,还害怕麻烦。
常规心态:我是真的害怕被套路,可我也是真的不想看密密麻麻的装修知识。不想在本来就稀缺的假期,还要起早贪黑四处奔波,只是为了找一个看起来良心的装修公司或者工作室。

游戏有游戏解说,足球有足球解说,那不如我们来做施工解说。
想把装修以更有趣的方式呈现给大家,每天一点点的小知识,“手把手教学”更清楚直观的分辨工地的好坏,认识施工的基础标准。

温馨提示:
最近频繁降雨,记得出行带上雨伞 。
雨量偏大而密,施工现场关紧门窗,避免影响工地进度。
对了,在成都有房已经不够了,好好工作存钱买艘船吧。
- 七月 | 第二周工地巡检 -



【一】
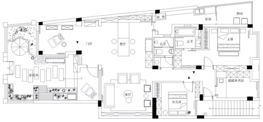
项目名称:首创娇子1号
面 积:76 ㎡
户 型:两室两厅一卫
施工阶段:中后期 --- 硬装收尾
Plane layout | 平面布置

Construction site | 施工现场


▲ 滚涂最后一遍墙面漆

▲ 专治强迫症

▲ 贴砖施工中
【二】
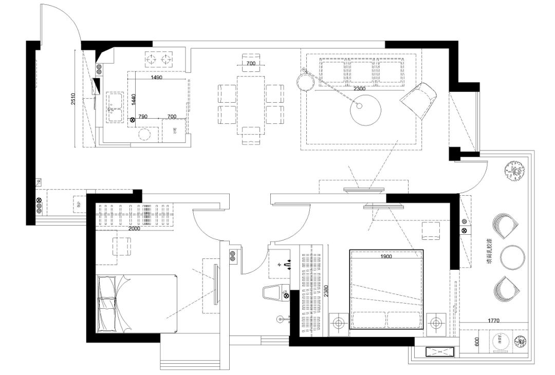
项目名称:万科魅力城
面 积:245 ㎡(加花园面积)
户 型:三室两厅两卫
施工阶段:前期 —— 新建墙体完毕 、楼板搭建、花园挖土
Plane layout | 平面布置

Construction site | 施工现场


▲由于门洞两侧墙体本身较厚,故这里做了三根过梁
科普:
当门窗宽度大于300mm时,则需要在门洞窗洞上端搭建过梁,起到支撑分摊上方砌体重量的作用。

图 | 来自于网络
▲ 图片红线内为过梁

▲ 现场搭建楼盘
搭建楼盘流程:以工字钢搭建钢架(防腐防锈) ——→ 模板安装固定 ——→ 绑扎钢筋 ——→ 浇筑混凝土 ——→ 混凝土养护 ——→ 拆除模板
( * 这种流程仅限于不做任何造型的楼板。)

▲ 现场花园挖土中
【三】
项目名称:国嘉华庭
面 积:92㎡
户 型:三室两厅两卫
施工阶段:中期 —— 铺贴瓷砖
Plane layout | 平面布置

Construction site | 施工现场

科普:
吊顶是由很多块板子拼接而成,拼接地方如果不做特殊处理,后期时间长了易开裂。
接缝处应先使用牛皮纸或者玻纤网张贴。然后再刮腻子层。


▲ 施工阿姨正在滚涂瓷砖背胶

▲ 将涂好的背胶的瓷砖置放在走廊处晾干

▲ 瓷砖背胶晾干后的效果,用手触摸仍然略带粘性
科普:
瓷砖使用前,需先用水浸泡。起到清洁瓷砖上的尘土以及让瓷砖吸水,方便粘贴的作用。
瓷砖背胶主要用于瓷砖湿贴工艺中,提高瓷砖和水泥沙教的粘合度。
【四】
项目名称:中铁双龙湾
面 积:88 ㎡
户 型:两室两厅一卫
施工阶段:前期 —— 水电改造
Plane layout | 平面布置

Construction site | 施工现场

石膏+水 搅拌
直播完毕

▲ 直播《石膏是怎样炼成的》主要道具——“搅拌器”
接下来
直播《墙体阴阳角护角条条是怎样炼成的》
科普:
墙体突出的地方称之为阳角,凹陷的地方称之为阴角。
阴阳角条的作用:一、加固墙的边角,以防墙角出现磕碰导致坑坑洼洼的情况出现。二、解决本身阴阳角不直的问题。

Step1:先将混合好的石膏涂抹在墙体阳角位置

Step2:将阴阳角护角条顶端斜剪

Step3:将护角条放在墙体阳角处,并用2m靠尺检查矫正平直度

Step4:再次涂抹石膏在护角条上,固定阳角护角条

致敬现场施工的所有师傅们
