
本案是一对年轻夫妻的新居。他们喜欢旅行中所见所得,也无法舍弃在家中亲手烹饪美食的乐趣。他们希望家中的空间得到释放,功能得到解放,通过设计可以让家的每部分得到合理的利用。设计师并没有将改造聚焦于“多”与“大”上,更看重细致的优化,空间与业主现在及未来生活轨迹的融合。让书房变开放,客餐厅空间得到多方向的通透。利用柜体摆放的位置规避原始户型问题,拆除或延长墙体。这个家黑白之间夹杂一些浓郁的颜色,是多姿的,也随时可以落定下来。
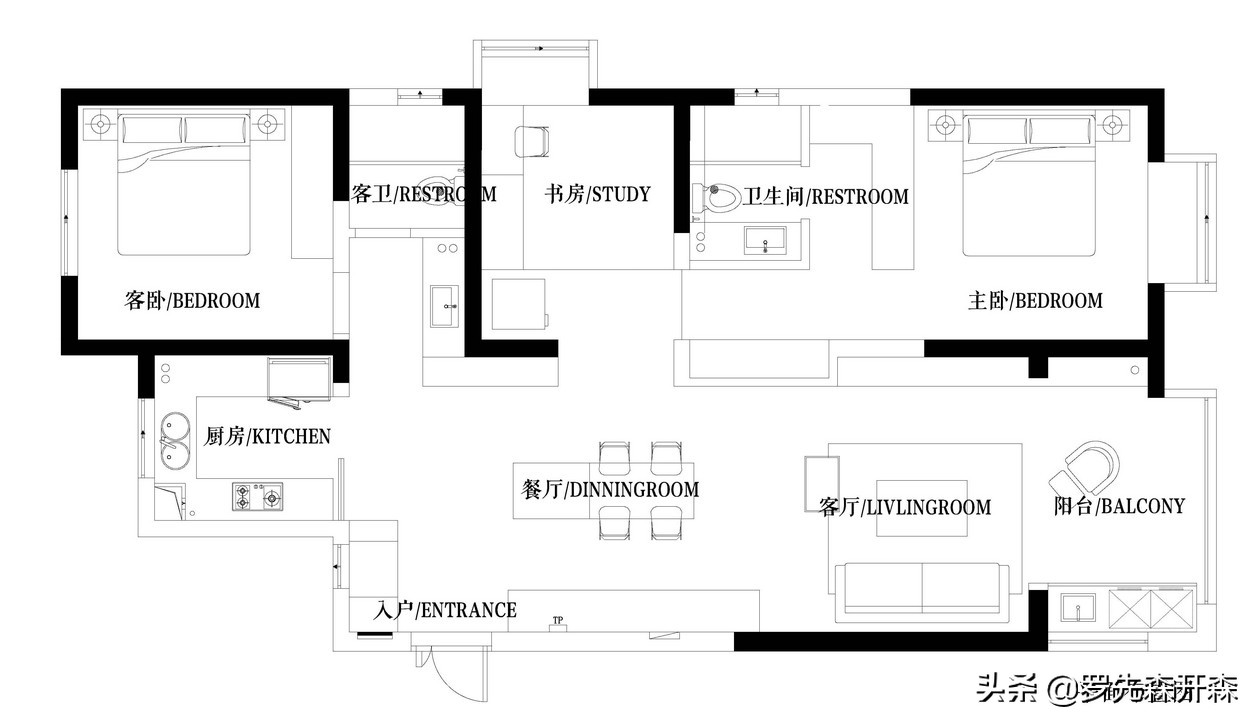
空间布局

▲原户型问题&居住需求:1.本案客厅与主卧之间墙体长度较窄,无论作为电视背景墙还是沙发背景墙都稍显局促。通往书房与主卧的厅部空间狭小,动线易产生阻碍。2.阳台宽敞,但与客厅之间以移门分隔,反而徒增空间内的压迫感。3.改变主卫门正对床的现状。4.整个家中收纳空间的规划。

▲解决方案:1.对主卧与书房的墙体重新规划。延长主卧与客厅间墙体长度,作为电视背景墙。厅部空间纳入主卧,增加主卧可利用空间。拆除书房部分墙体,采取开放式书房模式。改变书房进门位置,主卧与书房动线得到优化。2.拆除阳台与客厅间移门。3.主卫门前设置衣柜做遮挡,既增加收纳空间又避免主卫门正对床的尴尬。4.补全家中所需的收纳空间。 01 入户 / ENTRANCE

▲内外空间衔接之处,由于户型的原因在此没有明确的玄关区域。入户后左手边的收纳柜柜体,大小高低的设定可以涵盖进出时衣物鞋帽、随身物品的储存。柜体间部分留空,不遮挡此处窗户的同时增加矮榻功能,为生活的细微之处增添光与从容。
与入户门相对的展示柜,白边内裹夹反光灯带、黑色收纳空间,构成门后利落现代的视线落点,摆放其中的物品被醒目的衬托出来。
02 餐厅 / DINNINGROOM

▲餐厅与客厅共享同一个大空间,通透交互的形式让联络变得密切,密不可分的空间将居家生活充实起来。

▲充裕的空间,餐桌结合倒台摆放之后,大型综合性收纳仍然可以妥善的安置在墙边。哑光烤漆柜体黑色凝练出深思熟虑的时尚感,中部掏空、分割区域为宜居兼顾功能层面的多种需求。

▲背向黑色望另一面,引白色来稀释空间一侧的深沉,是影子之外的光照出轻松的氛围。
03 客厅 / LIVINGROOM

▲客厅中画框里的科比签名球衣很显眼,它的存在区别于周围的家具装饰,包含明确的个人喜好与象征意义,时代已落幕,但传奇永存。精神自青春起被铭记,从不畏惧,保持努力,永不言败。

▲皮质沙发与背后的古典绿墙面在光亮簇拥中静静绽放出质感,茶几形态圆融稳稳居中,阳台竖百页窗帘将阴影装饰,带来纯粹、通透与明亮。


▲一眼看去黑白色块组成了观感简洁舒适的电视背景,空间在这部分得到了现代与极简主义的更新,鼓励我们追求新鲜颜色所带来的多姿之余,少即是多轻装上阵的战术也是轻易可得的松快。
左下角壁炉火光打破连贯统一的黑白,迷醉温软时光。


▲原本就很充裕的阳台,设计师选择一边作为收纳柜体,另一侧设置洗衣台,宽度足够,洗衣机与烘干机得以并行安放,上半部分的空间被释放出来。


▲百页可以赋予生活的变化,无限光影,晨昏流转。 04 书房 / STUDY

▲书房中除却白色,地面与部分墙面,被覆盖上这种浅浅的棕色,粉调的棕如夕阳下的沙滩,烤过的杏仁。可以想见光线进入,小小的一块空间中温柔与惬意毕现。
05 主卧 / BEDROOM


▲主卧伊始,在灰的包围下,黑的点缀中,绚烂纷至沓来。包柜的橙色内壁在此成为一种精细的装饰,和露出的壁炉一起点燃热烈与活力,也作为在生活中对自己回馈的锦上添花。

▲空间过渡到卧房的这部分,氛围冷静下来趋向柔和,床后简明线条组成优雅的画框,框存一室没有视觉“噪音”的干净内饰,灰色调流淌在每一寸空气中,亲切自如。
06 客卫 / RESTROOM

▲主卫不是干湿分离的形式,只用玻璃移门做简单分隔。壁龛是卫生间中不占用空间、便利的收纳形式。黑白灰打造这里功能之外的简明扼要。
07 厨房 / KITCHEN

▲U型橱柜充分利用厨房空间,方便操作,吊柜做到不给高处增加压抑感。灰色耐脏,大面积的利用完成厨房空间的视觉整体性,操作台面的白色从中亮出,成就了清爽、整洁的另一部分。 户型信息: 【工程地址】:万科金域国际【设计风格】:现代简约【案例格局】:140㎡ / 2室2厅1厨2卫【设计】:熹维设计【软装家具支持】:INNOR'S家居【作品摄影】:ingallery【设计材料】:乳胶漆,地板,玻璃移门,地砖,熹维柜体定制……
