大家可能过不少超级大豪宅,也看过各式无敌小蜗居,今天咱就换换口味,来看一间堪称全世界最窄的房子!

这座名叫YUUA的独立屋位于日本东京市中心的一条商业街上,地段优越,这里地狭人稠,由于土地成本和需求上升的双重作用,土地所有者为了出售原地块会对其进行分割,便出现了这个典型的“鳗鱼床(eels' bed)”住宅。

在一排传统的房屋当中,隐藏着这样低调的极简建筑,外墙采用冷调的中性灰,让路过的人们视线因冲突的美感而停留。
虽然它只有六英尺(1.8米)宽,但别以为这是什么简陋的居所,这可是一座名副其实的“好窄”豪宅,不少在东京城里打工的年轻人争相抢着租住这间独立屋!
为啥?地段优越还是其次,屋内巧妙有趣的空间设计才是主要原因,一起来看看这个豪华独立屋有什么过人之处吧!

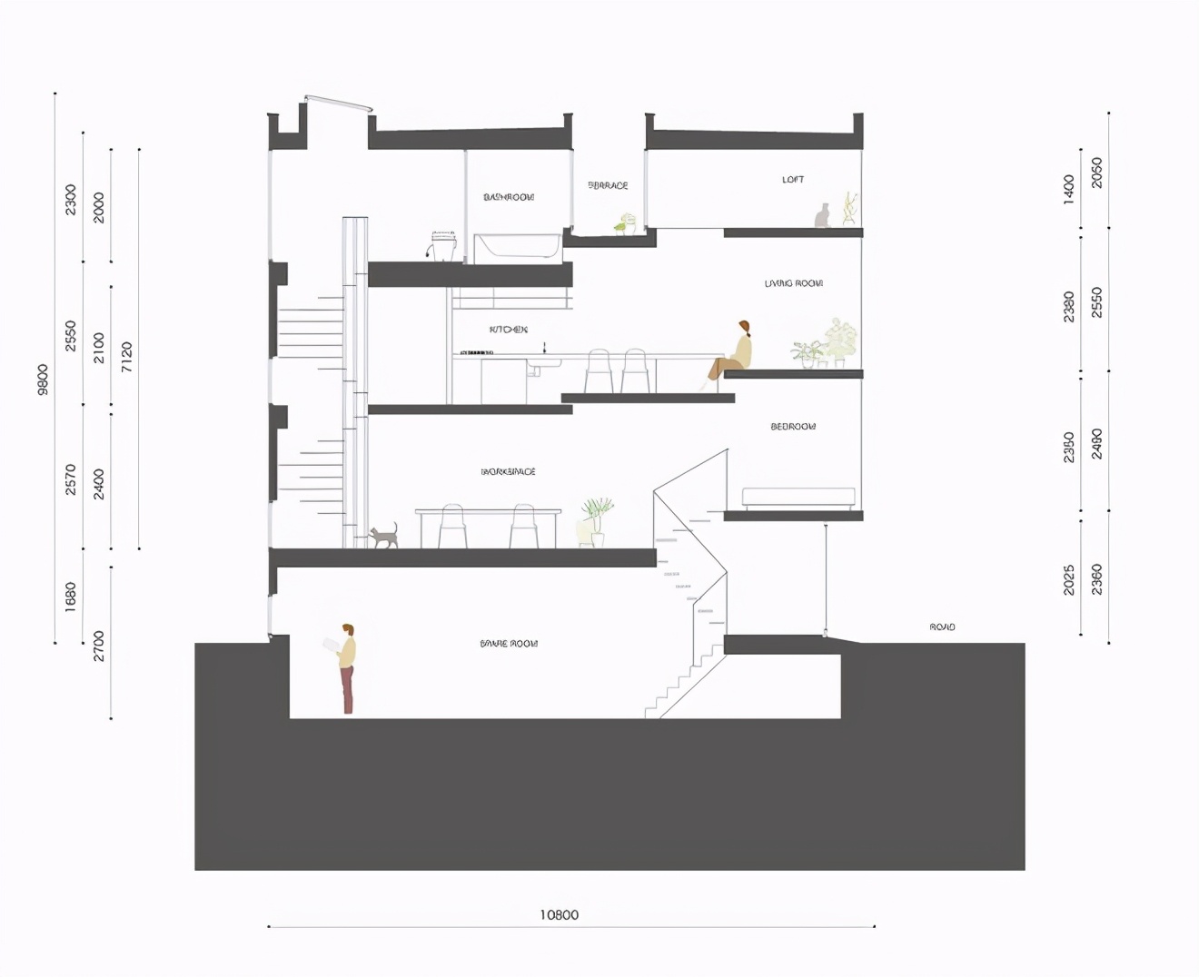
从全屋平面图可见,整栋建筑共有四层楼的生活空间,虽然占地面积只有20多平,但却拥有80平的建筑面积,每一寸空间都利用得当,功能区也非常完善。起居区和饭厅位于大楼后方,可最大程度地保护隐私。

地下一层,是专门的储藏室,这里较为空旷,只在尽头种有几盆绿植中和冷峻的氛围,带有浓浓的工业风。
地下室通往一楼的片式楼梯让空间更具透视感,大量的穿透设计,让狭小的房子能够具有延伸的效果,还可以让更多阳光照射进屋,加宽了视觉效果。

室内空间大量使用温暖的木质调,深色的楼梯与中性色的壁面将所有的空间巧妙地融合在一起。在楼梯中间能同时看到一楼和地下室的场景,看起来不显拥挤局促。

只要伸展双臂,就可以触摸到两侧的墙壁!二楼开放式的厨房以片接式的地板连结,为室内制造许多不单调的层次与自由感,干净利落的线条更是画龙点睛。

深色壁面为空间增加纵深感,厨房的柜台能延伸出来形成餐桌。餐桌一侧还有一个可爱的小爬梯,通过这个爬梯能攀登上三楼,是个非常巧妙、有趣的设计。

二楼上三楼的楼梯简约而富有设计感,楼梯转角处巧妙安插储物空间,减低拥挤感外也能增添视觉层次。高级灰的储物柜上陈列着精美的艺术品和书籍,彰显个性和格调。

上到三楼,空间依旧很有纵深感,看起来一点也不小。给人潮湿阴暗印象的浴室,则选在建筑内采光最佳的位置,特别做低的夹层放进浴缸、淋浴花洒等卫浴设备,即使建筑遍布玻璃也依然保有隐密性。

精致的卫浴设备,既能泡澡,能也淋浴,可以随心选择,当阳光从隔壁天井阳台撒进,身体沐浴的同时,心灵也沐浴在温柔光线里。

偌大的落地窗,让室内能一眼望向户外,生活于此的人在享受充分光线外,也能欣赏街景。三楼的这个小阁楼是全屋的最高处,保留了一个放空安静的空间,放张座椅或懒人沙发在这里,即可变成舒适明亮的阅读区,也适合一人独处沉淀。

在夜晚,室内所透出的灯光为街道增添许多暖意,漫步于东京此区,这里是个令人惊喜的意外之美。
里面的装修精致有质感,整体时髦又宜居,难怪这么多年轻人争相尝试在这里居住了!整栋独立屋虽然窄小,但巧妙利用挑高格局与落地玻璃的空间特性,创造出层次分明、宽敞明亮的视觉效果。

