北京城建龙樾天元
俊朗、挺拔、现代、生态是项目建筑的设计主线,将传统与现代相结合,萃取北京文脉与高知特性,形成独特的建筑肌理和书韵气质。
项目地址:丰台卢沟桥街道大井新村天元公园东侧
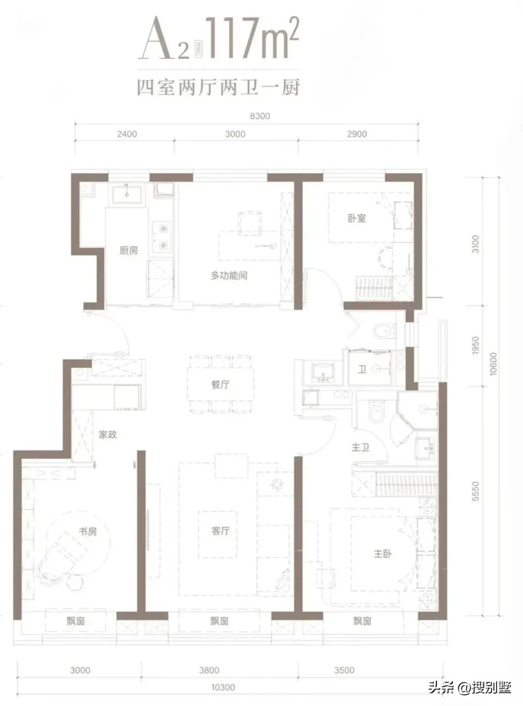
主力产品:117-128-167㎡(高层)
参考价格:约85000元/㎡
产权年限:70年住宅

龙樾天元是北京城建地产打造的北京内城高端项目,位于西四环旁,五棵松、金融街、丽泽商务区、总部基地四大商圈环抱。项目周边多条路网环绕,速通全城:10分钟即达西四环,15分钟连接长安街,快速通达东西城、中关村、国贸CBD等核心区域。*轨双**环抱,三站换乘:毗邻14号线(大井站1.3km&郭庄子站1.7km)、地铁1号线(五棵松站),由西到东串联五棵松、金融街、丽泽、国贸、望京等商务区;商务出行,接轨国际:丽泽航站楼(20分钟直达大兴新机场)、丰台火车站(亚洲规模最大火车站)陆空双维体系,畅达国内外。

商业配套:周边有京荟广场、翠微百货、千禧购物中心,但距离都在3km以上;
教育配套:周边有明悦双语幼儿园、丰体时代小学、北京教育学院附属丰台实验学校(南校区)、首都经济贸易大学华侨学院,距离均超过3km;
医疗配套:周边有北京市丰台区明颐宏医院、北京丰台银龄中医医院、北京市红十字会和平骨科医院等,距离龙樾天元2.4km起步。
生态资源:周边有小屯公园、天元公园、绿源公园、足球公园等,生态资源非常出彩。

龙樾天元·户型展示



项目设计灵感源于安曼酒店、虹夕诺雅酒店,五大主题场景,6W健康舒居智慧系统,智启领樾新生活。涵盖生活中“智能、声音、光线、温度、空气、湿度”等层面,樾享健康、舒适、安全每一天。
如果大家对北京城建龙樾天元项目感兴趣,想要了解更多该项目的更多详情关注了解