点击上方蓝色字体关注↑↑↑
前天,龙华区城市更新和土地整备局连续发布了两则公告,分别对龙华街道龙津项目城市更新单元04地块《建设工程规划许可证》和水斗老围村城市更新单元规划进行了公示。
据了解,龙津项目即为龙湖春江天玺,是龙湖首进龙华项目,项目分两期开发,本次公告获批建工许可的04地块为当前项目二期,或将主推97-132㎡住宅产品,已于5月24日开放示范单位。
另一获新进展的旧改项目为水斗老围村城市更新单元,规划容积约为21.9万㎡。项目于2018年被纳入《2018年深圳市城市更新单元计划龙华区第二批计划》,申报主体为深圳市盛迪嘉建业有限公司,实为广东盛迪嘉集团旗下全资子公司,在深圳曾开发有光明区盛迪嘉光明1号花园项目。
值得注意的是,两项目均位于旧改林立的油松片区,近两个月来,该片区诸多项目均频频取得新进展,城市更新提速趋势明显。
龙津项目城市更新单元:
龙津项目城市更新单元,即龙湖春江天玺,位于龙华区龙华街道油松片区,工业路(龙峰一路)和油松路西北交汇处,靠近民治大道、布龙路、梅龙路、梅观路等多条区域主干道及城市快速路。

项目西侧临靠油松河,与鸿荣源壹成中心商住综合体相距约1公里;北面约1.1公里开外为富士康和华为总部基地;南面深入民治大道商住区;东侧跨过梅观路便是坂田大本营。
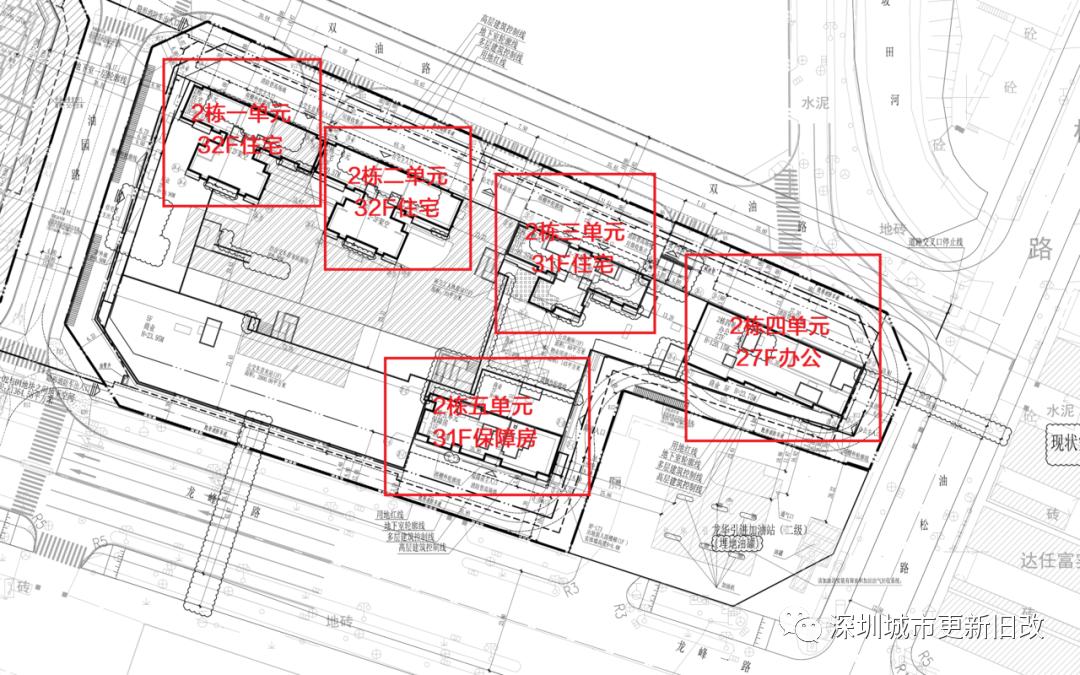
项目拆除用地面积为35885.6平方米,开发建设面积为19367.9平方米。地块内由规划待建的油园路分为东西两地块,西侧为03-02地块,东侧为04地块。

其中,03-02地块春江天玺一期已经于去年入市,用地面积7503.9㎡,总建面约5万㎡,主要由1栋住宅(29层)、1栋商务公寓(21层)和底层商业裙楼(1-3层)组成。
本次公示的04地块规模比一期稍大,用地面积11857.7㎡,总建面约9.5万㎡,由3栋商品住宅(31-32层)、1栋保障性住房(32层)、1栋办公楼(27层)和底层商业裙楼组成(局部有7层)。

据悉,龙湖春江天玺二期,已于5月24日开放示范单位,将主推97-132㎡3-4房住宅产品。
水斗老围村更新单元:
水斗老围村更新单元位于龙华区龙华街道,紧邻梅观高速,处于工业路和东环二路交叉口西南侧。

更新单元用地面积55614.2平方米,拆除用地面积54428平方米,其中开发建设用地面积29794平方米。规划容积为218860平方米,其中住宅148090平方米(含保障性住房17780平方米),商业、办公及旅馆业建筑56610平方米,公共配套设施(含地下)14160平方米。

据平面图显示,该项目包括一所3层12班幼儿园、1栋32层住宅楼、6栋48~49层住宅楼、1栋39层保障房、1栋办公楼及各类裙楼商业配套等。

据悉,该项目于2018年被纳入《2018年深圳市城市更新单元计划龙华区第二批计划》,申报主体为深圳市盛迪嘉建业有限公司,实为广东盛迪嘉集团旗下全资子公司。
广东盛迪嘉集团成立于2009年,注册资金1亿元。是一家以房地产开发为主,集实业投资、城市配套建设及物业管理经营于一体的股份制民营企业。公司成立之初在普宁先后开发了御景城、盛迪嘉花园两大知名地产项目;2013年投资成立了深圳市盛迪嘉房地产开发有限公司,负责开发深圳光明新区盛迪嘉光明1号花园项目。
开发提速的油松片区:
两项目均位处龙华街道油松片区,是龙坂片区比较居中的地段。片区范围内的道路交通发达,近多条主干道及梅观高速,与周边片区如龙华新、老城及坂田片区联系紧密。通过对接东环二路上梅观路前往市中心区也方便快捷。
但与此同时,片区内地铁轨道交通的支撑作用则相对较弱,距离地铁4号线及10号线(在建)站点均相对较远,需要借助远期规划地铁22\25\27等线路让该片区加入轨道交通网络中。
未来这些地铁线路落地,水斗老围村旧改、龙湖春江天玺或有机会摇身一变成为地铁口物业。

(来源:深圳市城市更新网)
油松片区的大体范围是由富士康、梅观路、布龙路和梅龙路围合的区域。其在过去的发展阶段的定位比较尴尬,属于龙华但却处在龙华的边缘地带,邻近坂田而又不属于坂田的管辖范围,一直未得到足够的重视,同时缺乏整体规划,以致城市整体面貌粗犷,自建民房和零散工业厂房集中,主要的大型市政资源需依靠龙华老城、龙华新城一带解决。
两项目均临工业路,据说,龙华的发展是从这条工业路的建成开始,是龙华经济高速发展的见证。

上世纪80年代末至90年代,一间间厂房在这条路两侧建起,一座座工业园在其附近出现,龙华人在这里挖到了“第一桶金”。如今以工业路为龙头带动龙华工业发展的使命已经完成。
随着城市更新的逐步推进,以及周边壹成中心和信义嘉御山等大型商住社区的布局,片区发展向好完善。
目前,除龙湖、盛迪嘉外,已吸引到卓越、富基、金地、恒大、星河、金众等诸多开发商的入驻,预备的城市更新项目达十余个之多。

通过片区密集的旧改项目状态来看,片区尚处于整体大更新的前期,未来的区域价值向好,只是城市更新开发周期因项目不同而异,需要一定时间开发和发展。
而且,近期片区内城市更新提速趋势明显,除今天提到的两项目外,片区内多个旧改项目近期动作频频。
3月23日,杰美康工业区城市更新单元正式立项;
4月1日,国润电器片区城市更新单元拟立项;
4月8日,油松片区旧改项目通过《城市更新单元规划(修改)》;
4月24日,沙吓工业区、上油松老围片区两大旧改项目进行了专规草案的公示;
5月15日,龙华街道深圳北(龙华)商务中心大二期城市更新项目(二期)实施主体确认……
旧改项目持续推进,城市更新提速,这对于片区内的物业而言无疑是一大利好。随着项目的逐步落地,未来该片区可居住性较高,配套设施将逐步完善,片区价值也将迎来又一次的发掘和提升。
很多人觉得市区、南山、宝安房价贵,其实可以考虑在龙华这个区域入手(小编说的是回迁指标哈

),龙华旧改项目多,赶紧找个旧改项目入手,因为旧改的回迁指标也是会涨价的,一个进度一个价,龙华新房房价也不差,何必死死盯着火爆区域呢?宝安河东西乡出资源,一听到价格,一个个的都不吭声了,所以说嘛,根据自身能力来,龙华它不香吗?

——————————————————
小编打个广告↓


东莞石碣阳光城·V品街临街旺铺
全业态、可明火、使用率高
仅剩最后5套,营销中心位置,主干道旁
即买即收租!
有兴趣可私信小编!

上期精彩内容
重磅丨相当于17个地铁站,深圳又一个新的超大交通枢纽在这!
龙华宣布!四大重点片区2020年开发建设计划出炉!
借“棚改”概念炒房被堵死!深圳福田发文称将下架炒作房源!
深圳6区9大项目迎来进展,重点龙华、罗湖、宝安!
关于回迁房项目,被问到最多的19个疑问!内附解答!
光明又一旧改新盘,光明新星?
平湖华侨城集团良安田旧改项目,进度超快!即将拆平!
龙岗南约洋桥汉田城市更新单元,地铁口、位置好、进度快!
来源:深圳城市更新旧改
转载请注明(综合整理)
