9月13日,高新区新川板块的渝太润达丰·悦蓉東方取证,带来125套房源。
项目单价2.7万-3.7万/㎡,为典型的高低配,分为高层、叠拼产品。本批次取证的为1栋高层、8栋叠拼,其中 高层仅有建面约175㎡户型,精装总价约500-616万;叠拼户型建面约280-380㎡,清水总价800-1170万。
从价格指标上看,悦蓉東方已经迈入“高端盘”的门槛,在项目取证后,有不少城南改善买家询问发哥,“项目怎么样?”“叠拼值不值得买?”甚至还有刚一社保60个月的“大神级买家”跃跃欲试。
然而,从项目公布的登记购房人复核名单来看,仅64组客户进入摇号池,不到这批房源数的一半。
究竟这个拿地价2万+的高端项目实际呈现度如何?是否值得上车?发哥今天带来新鲜的踩盘报告,全方位地帮大家梳理项目。
01
大区域高标准国际化新城
小区域界面烟火气息十足
以梓州大道、新川路两条道路为界,可大致将新川分为新川北和新川创新科技园两个区域。
项目所在的雅和北二路隶属新川北,新房供应较少。 而梓州大道以东、新川路以南,则属于新川心脏地带——新川创新科技园范围内,也是近几年高新区的主力供应板块。
2020年至今,新川加大了涉宅用地供应,拍出10宗地块,是2018-2019年 (4宗) 的2.5倍。其中, 渝太地产以20700元/㎡拿下的悦蓉東方地块,仍是成都楼面成交地价记录保持者。

项目位置示意图
新川北最为突出的优势是教育资源。 项目与金苹果锦城一中仅一街之隔, 再往东则是成都师范银都紫藤小学、高新区优培祥龙幼儿园,均在5分钟步行范围内。

金苹果锦城一中
商业配套上, 项目以南约620米为博雅城市广场,周边还有中德英伦联邦的社区底商作为补充, 总的来说可满足日常生活需求。项目距离金融城商圈约3公里,驾车10分钟可达。
此外, 占地862亩的新川之心距离项目约1.2公里 , 西、北侧还有市政绿化带与会龙公园,总的来说项目生态资源比较突出。

新川之心
从项目精准的小区域来说:
最近的地铁站距离项目约1.6公里,步行约20分钟,不过能花800万买房的人群应该也不需要考虑这一购房指标;项目一街之隔就是金苹果锦城一中,“学区房”的接送期间的交通拥堵影响不可避免。
在踩盘时,发哥经会龙大道进入雅和北二路,周边有厂房、自建房、农贸市场等,烟火气息十足。

项目正在施工
02
42亩“高低配”
总共310户,布局略显拥挤
聚焦到项目本身。
总占地42亩,项目打造为典型“高低配”,共4栋高层、12栋叠拼,总户数310户。容积率2.0 , 指标还不错。项目采用全南北、列阵式布局,布局略显拥挤,加上纯板式结构的设计,采光、通风条件优良。

项目效果图
置业顾问介绍,高层建筑楼间距平均有28-30米。这在高层产品中,楼间退距算是比较低的。
同样的问题也体现在叠拼产品上。南北两栋叠拼之间虽预留了18米的楼栋距离,但同时也包含了一楼私家花园的面积。叠拼项目的退距景观问题,在成都叠拼市场上普遍存在,悦蓉東方并非唯一面对挑战的项目。
03
上下双叠独立入户
花园露台面积大
项目由渝太、润达丰联手打造,两家房企均以其最高规格打造产品。
先看高层,精装均价3.3万/㎡起,仅有61套175㎡户型,总价约585万。在供应稀缺的高新区,这个价格还是会吸引部分有需求的置换买家。

项目总平图 红框内为本次取证楼栋
本次推出的高层产品楼栋号为15栋,位于地块最北侧,2梯2户,电梯厅入户,内进还有一个半赠送的入户花园,大约16㎡。 在目前主城高层市场中,得房率高的产品,比较少。户型采用横厅、双套房设计,亮点在于7.5米*2.8米的景观阳台——尺度感目前新川高层产品少见。无论是入户花园还是景观阳台,据置业顾问介绍,采用了下沉15cm的工艺,可以满足业主种树、养鱼的需求。总的来说,高层呈现出的产品力对得起价格。

高层175㎡户型
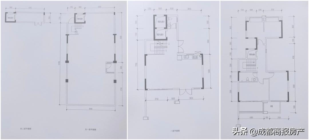
再将视线放在本次开盘的重点——叠拼产品上。几个基本信息:共64套房源,清水均价3.1万/㎡,总价837万-1170万。产品呈现为 上下双叠,一栋叠拼由4个端户、4个中户组成,每一户均有花园、地下室及独立电梯井 (电梯需业主自行安装) 。

建面约280-310㎡下叠户型图
目前,项目只开放了下叠端户样板间,发哥实际踩盘的过程中,有看到两家开发商在产品上的努力。
一是对隐私性的注重。 上、下叠分别从南北两条动线入户,或从地下室的电梯直达家中,入户动线互不干扰; 同时,上叠设计了4.3米*4.1米的超大露台,避免直视到下叠花园。
二是有可变空间、花园大。地下一层层高5.1米,可自行搭建夹层增加使用面积,每一户中户也均留有自行搭建的空间。 下叠地面花园在70-130㎡左右,其中端户花园尺度感不错。 中户虽然花园面积不如端户,但是一层挑高空间的预留增加了使用面积。


下叠样板间实拍
若将产品放在千万级叠拼市场中,缺点主要体现在地下室上。卓越·晴翠、奥园麓语ONE等产品均利用坡地优势,实现地下室的大面采光通风;而 悦蓉東方的地下室采光为竖式采光井, 这种设计多见于上一代产品,但5.1米的层高部分弥补这一缺陷。
在现行的市场条件下,叠拼产品都是计算了地下室的产权面积,所以如何更好利用地下室,悦蓉東方的思考是,再送点负二楼的地下室外接车库。 据置业顾问介绍,车库并不会强制购买,但是如果购买车库,结合车库入户的位置,可以实现负二楼的独立入户自由。
04
定位高端
800万起的城南叠拼买得不?
总的来说,悦蓉東方的高层产品具有一定打动力,叠拼则满足了目标客群关于主城豪华型叠拼的基本需求,比如独立入户、户户有花园地下室等,两者都通过花园、可变空间,提高了业主对“私家”的归属感。
但纵观千万级叠拼市场,买家置业经验丰富,往往会有“下一个更乖”的心态,如何打动目标客群,悦蓉東东方还需努力。