
说起石家庄首个自建万平米下沉式广场的项目,位于开发区核心,其开发企业曾开发过燕港新村” “燕港怡园”以及 “燕港美域。说到这里,大家应该知道了,今天焦点君为大家介绍的就是由燕港集团打造的改善社区“燕港御灏府”。燕港御灏府_楼盘详情-石家庄手机搜狐焦点网
整体情况

燕港御灏府区位沙盘
燕港御灏府占地面积218亩,整体建筑面积近50万平米,其中地上建筑面积约37万方,地下约11万平米。整体园林绿化面积约11万平米,容积率2.57,绿化率45%。项目共分三期开发,规划15栋高层住宅。目前一期房源在售,共6栋高层。其中引人关注的便是石家庄首家规划有1万平米下沉式皇家宫苑。

下沉广场动图
区位交通:

燕港御灏府区位图
项目位于槐安路与天山大街交口东南角。紧邻天山大街、槐安路(珠江大道)城市主干道交叉口,公共交通便利、地铁1号线、3号线(建设中,预计2020年底通车)、6号线(规划中)地铁口距离项目1000米,周边多路公交:32路、51路、71路、219路、502路、572路直达项目。

槐安路实景图
天山大街是目前开发区最繁华的街道,南延至南三环达栾城。北延新城大道至正定新区
小结:项目位于石家庄高新区核心,驾车出行便利度非常高,地铁线路、公共交通线路完善。

天山大街实景图
内外配套:

项目配套实景图
项目周边配套丰富,商业配套方面:南200米有北国益新店、北侧1000米有北国商场长江店、天山海世界;医疗配套方面:省二院东院、省三院东院、省四院东院、长城医院、市四院东院优质医疗配套也一应俱全;教育配套方面:高新区第一小学、高新区第二小学、五十四中、精英中学、石家庄一中东校区等配套资源,满足了业主的各项生活所需。
内部配套,项目打造的是全社区无底商设计,内部规划了幼儿园和大型会所,但由于项目的优势位置,外部的完善配套已足够业主的生活所需。
小结:项目位于开发区核心区域,各个配套设施都很完善
在售房源:
项目在售的是一期房源,为尾房销售,在售房源为95㎡、115㎡、145㎡、183㎡,均价14500元/㎡。项目还有部分跃层房源,面积约为390㎡左右,价格在8800元/㎡左右。
项目建设住宅层高为3.15-3.3米。首付30%。

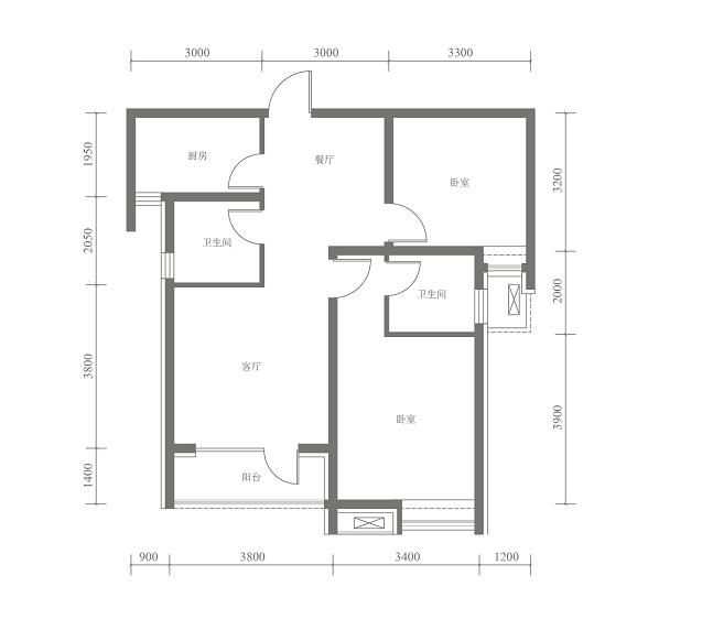
2室2厅2卫-94.97㎡
该户型主卧朝南,屋内光线充足;双卫生间设计,主客分离,使用方便。明卫设计,有利于通风排气。客厅朝南南向采光,与阳台相连,屋内光线充足,保证了整个房间的明亮。

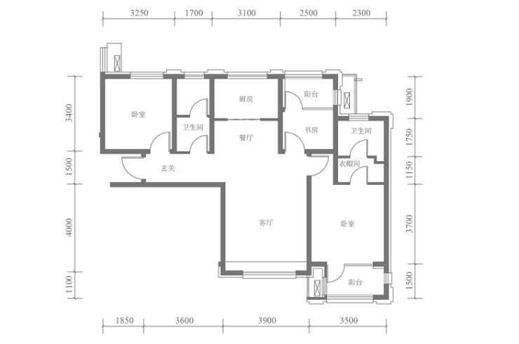
3室2厅2卫-115.63㎡
主卧朝南,连接阳台,屋内光线充足;明厨有利于通风排气。紧邻餐厅,动线合理;餐厅与客厅一字型排列,延展了空间,提高了面积利用率;书房连接阳台,增加采光效果。

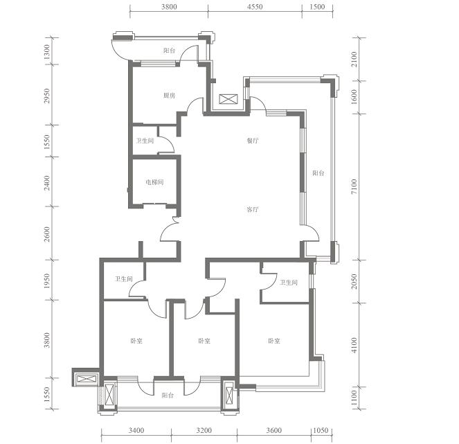
3室2厅3卫-183.11㎡
三个南向卧室,其中2个卧室连接阳台,保证通风及采光,客厅朝东连接大面积阳台,三个卫生间,提高便利性,整体居住感舒适。
工程进度
项目一期目前为封顶准现房,交房时间为2020年10月。

工程进度实景图
总评:项目所处区域位置优势明显,交通便利,生活配套完善,规划的60-210米超大栋距以及3.1-3.5米的层高也会让购房者的生活更加舒适。1万平米的下沉式广场为业主的娱乐休闲带来了便利。14500元/㎡的价格也足具吸引力。考虑在开发区置业的购房者可以到现场了解。