南京楼市正式进入新盘公开状态。 江北城南中心的天悦锦麟正式公开项目3大样板间和生活馆 ; 万科首开新悦光年和深业龙湾上府 也已经 公开售楼处。
此外,汇通路板块也是又一次迎来新动态: 铭著风华户型图正式曝光,紫辰光年正式公开城市展厅 。汇通路的几个项目应该就是近期上市,小伙伴们的红票票准备好了吗?
楼市热点
1)河西深业龙湾上府上周末正式公开售楼处!
据悉, 深业龙湾上府将于本周末正式公开售楼处 。预计年底加推,可能一次推出全部房源 ,放风4.5-5.3万/㎡(含装修包)。
项目规划建设5栋18层住宅,仅288套预计一次性全部推出,户型面积为115-160m²,首付8成起。

点评: 目前河西南板块内,除了深业龙湾上府,就只有 河西金茂府新组团和下关城开&南京宏顺G25有望今年上市。 河西金茂府新组团预计本月公开售楼处,近期首开。
而 下关城开&南京宏顺G25近日刚刚规划出炉 ,整体体量较小,计划打造140㎡-200㎡大平层产品。加上升级装修包, 放风价预计5万/㎡左右,最快年底首开。
而从周边二手房价来看,已交付的楼盘如 招商雍和府、朗诗熙华府、海峡城等,二手房价都已突破6万/m² ,深业龙湾上府含包放风价5.3万-5.4万/㎡。感兴趣的朋友们这周可以走一趟看看哟。
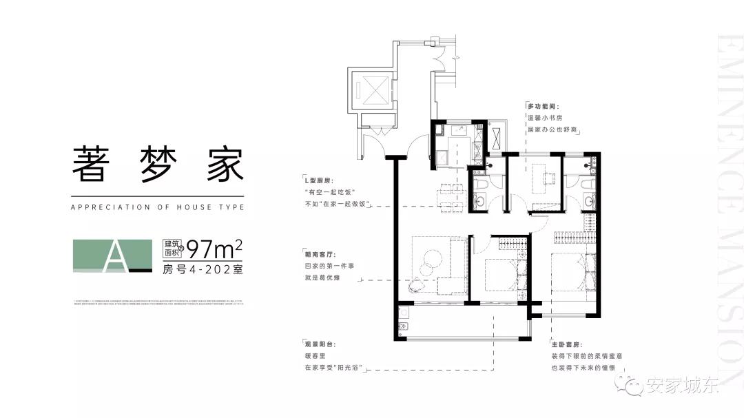
2)汇通路铭著风华户型图曝光,放风价3.4万/m²!
近日 , 铭著风华97-136㎡户型图正式曝光,项目升级装修放风价约3.4万/㎡ (含2500-3000元/㎡的升级装修包)。预计10月公开售楼处,最快月底首开。
项目拟建11栋17-18层住宅, 东侧规划有商业街 ,毛坯限价28500元/㎡。




点评: 目前,汇通路的几家楼盘做的基本都是大户型, 铭著风华97m²的户型算是小的了 ,对于资金有限制的买房人来说,确实是上车汇通路的一个好机会, 并且配比数量挺多 ,算是铭著风华的主力户型。
3)汇通路紫辰光年正式公开城市展厅
汇通路纯新盘紫辰光年正式公开位于仙林金鹰湖滨天地(麦当劳旁)的城市展厅 。项目预计最快本月首开,未来售楼处或将在汇通路附近自建售楼处!
紫辰光年规划建设8栋16-18层住宅,在项目东侧规划有独立商业街。户型建面约115-143㎡,毛坯限价28500元/㎡,均价预计约3.5万/㎡(含升级装修包)。

点评: 本月底,汇通路板块预计将有4盘上新,分别为 中南君启、正荣润岚府、新城铭著风华和紫辰光年 。四家楼盘中,铭著风华和中南君启的户型相近,而紫辰光年和正荣润岚府一样属于大户型,建议有兴趣的买房人可以几个项目一起看比较一下。
区域内新房房源充足,买房人的选择空间也很大。 预计同批上市,估计到时候又是一场混战。
4)江北天悦锦麟一起样板间、生活馆同步公开!
据悉, 江北城南中心的天悦锦麟正式公开潮流生活馆,同步公开的,还有项目一期的3大样板间。
项目规划地块住宅部分拟建14栋23-26层住宅,其中B地块将建设6栋24-26层高层住宅,C地块将建设8栋23层高层住宅。住宅户型面积约97-135m²,毛坯限价28000元/㎡。
全装修再加上升级精装包, 未来价格预计会在32000元/㎡左右 。项目将由大悦城、新希望共同开发,其中大悦城仅操盘商业部分,新希望操盘住宅及其他。

点评: 天悦锦麟 最大的优势在于,项目自带大型商业综合体,是南京首座大悦城项目 ,未来小区生活无论是舒适度还是便捷性都有保障。并且,作为城南中心的重磅项目,未来发展前景还是非常值得期待的。
此外, 项目对岸就是银城G53项目,该项目也自带商业综合体 ,两家各方面条件都很贴近,想在江北南部新城买房的朋友们可以考察比较一下这两个项目。