
基本信息:
风格:日式
面积:85㎡
户型:2室
小区:同城世家
业主需求:
业主是年轻的90后,对日式风格情有独钟,喜欢温馨舒适的家居感受,最好以简洁的木色为主,希望有一种清新明亮的感觉。
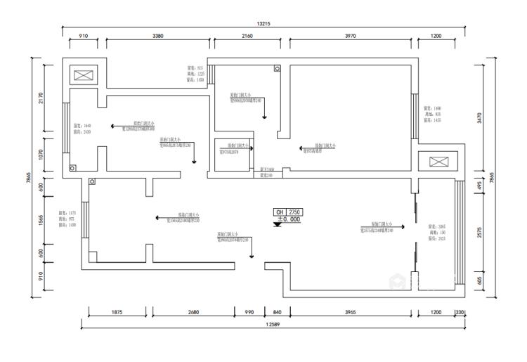
01 原始结构图

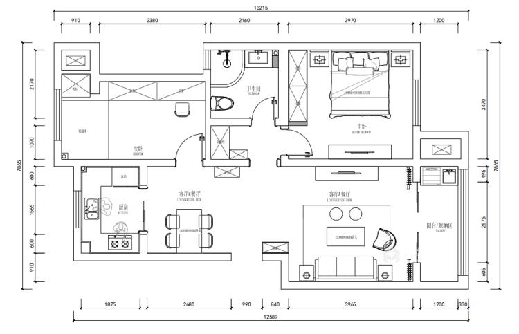
02 平面布置图

设计理念:整个原始的空间比较规整,安排较为合理,没有大面积的空间浪费。根据业主需要的功能与空间的结构,做了新的布置划分设计,这样可以使空间得到最大的优化。
03 客厅

进门的空间划分为餐厅和客厅两部分,墙面用了浅灰色的乳胶漆,配以简单的装饰画 和原木色的桌椅家具一起营造了清新舒适的感觉
04 餐厅

开放式的餐厅,延续了客厅的主体风格, 具有质感的木纹地板代替了常用的瓷砖 整个空间看起来更加的和谐舒适
05主卧

主卧用的是原木色的地板 配套色系的床搭配白色与原木相间的衣柜 既展现了日式的清新又满足了业主对储物的需求
日式风格有它固有的美态,秉承日本传统美学中对原始形态的推崇,彰显出原始素材的本来面目,加以精密的打磨,表现出素材的独特肌理,这种过滤的空间效果具有冷静的、光滑的视觉表层性,却牵动人们的情思,使城市中人潜在的怀旧、怀乡、回归自然的情绪得到补偿。
