2020年8月初,襄阳多个项目规划方案曝光,包括襄阳本土知名企业民发集团开发的民发·东著项目、世界500强绿地集团开发的国际空间站项目、东津国有资本投资集团开发的大型还建小区项目、新合作开发的襄阳食品商贸(物流)城项目,以及重大民生项目且同为世界500强建设的华润燃气襄阳区域生产调度中心。
这些项目规划设计如何?请随【大米 嗅地产 】一起了解。
01
民发·东著
襄阳世纪瑞景房地产开发有限公司拟开发建设的民发·东著项目位于襄州区钻石大道以南、富康大道以东。项目共5个地块,其中A、B、C地块为居住用地,D地块为中小学用地,E地块为公园绿地。
2020年8月5日,该项目工程设计方案曝光。
根据建设单位提供的D地块建设工程设计方案,D地块规划拟建一所九年一贯制学校(1栋4层教学楼、1栋2层食堂和风雨球场及配套设施用房),总建筑面积约9397㎡。
襄州区教育局已同意该学校方案。D地块容积率、建筑密度等各项指标均符合规划条件要求,建筑间距、退让等符合技术规定要求,日照满足日照规定要求。

02
新市民公寓BH01新民一院
2020年8月6日,襄阳东津国有资本投资集团有限公司申请核发东津新区新市民公寓BH01新民一院项目的建设工程规划许可证,该项目位于东津新区开元街以北、红松路以东。
新民一院项目为东津新区还建房,于2015年建成,按相关规定拟按建设现状补办建设工程规划许可证。
根据实测竣工图,小区内有25栋住宅,总建筑面积约108162㎡,其中地上建筑面积约99083㎡(地上计容建筑面积约99083㎡),地下建筑面积约9079㎡。该项目容积率和绿地率指标符合规划条件指标、建筑密度超出规划条件要求,部分建筑间距、建筑退让不符合技术规定要求。
住宅内部共有10套住宅日照达不到国家日照标准要求(其中8#楼6套、9#楼2套、15#楼2套)。根据建设单位提供的整改方案,规划地上机动车停车位303个、地下机动车停车位193个,地上非机动车停车位1044个。



03
新市民公寓BH03地块新民二院
2020年8月6日,襄阳东津国有资本投资集团有限公司申请核发东津新市民公寓BH03地块新民二院项目的建设工程规划许可证,该项目位于东津新区金源路以北、安居路以西,拟按建设现状补办建设工程规划许可手续。
根据竣工实测图,该项目已建多层住宅20栋、高层住宅3栋,总建筑面积71561平方米,地上建筑面积68356平方米(地上计容建筑面积68356平方米),地下建筑面积3205平方米。
地下配建机动车停车位89个、地面配建机动车停车位279个,地上配建非机动车停车位772个。
该项目容积率和绿地率满足规划条件要求,建筑密度超出规划条件要求,地块内部分建筑间距不满足技术规定要求,部分建筑退让用地界线距离不满足技术规定要求。地块内18#、25#、26#三栋住宅建筑退让南侧220kv高压线距离不满足技术规定要求,供电部门已经出具整改意见。根据日照分析报告,该项目有18套住宅达不到日照要求。



04
新合作襄阳食品商贸(物流)城
湖北省新合作房地产开发有限公司开发建设的新合作襄阳食品商贸(物流)城项目位于樊西新区物流大道以北、裕隆路以东。
该项目整体规划和建设工程设计方案已经规划部门原则性同意。
该项目分三期建设,2016年1月项目一期取得建设工程规划许可证,目前一期已建成。
2020年8月7日,湖北省新合作房地产开发有限公司提出为减轻市场停车压力,减少建筑面积,同时根据市场业态及功能配套发展需要,申请对剩余二期、三期方案进行调整。
根据湖北省新合作房地产开发有限公司提供的新合作襄阳食品商贸(物流)城项目调整后方案,调整后方案整体机动车停车位2355辆,其中地上1804辆,地下551辆。剩余二期、三期拟新建8栋2-4层的商业楼和2栋13层办公楼(1-4层停车),地上建筑面积约61199平方米,其中商业建筑面积约39702平方米,高层办公楼建筑面积约21322平方米,垃圾收集房175平方米,地下停车场建筑面积约17985平方米(机动车停车551个)。
值得注意的是,二期部分建筑间距不满足技术规定要求,但满足消防要求。



05
绿地襄阳城际空间站
绿地襄阳城际空间站项目位于科技大道以东,共计11个地块,其中D、E、F、G、H、I地块的建设工程设计方案已经规委会研究同意。
2020年8月7日,襄阳绿地铁投置业有限公司申请办理H地块的建设工程规划许可手续。
H地块位于肖营路以南、前刘湾路以东、吕寨街以西,H地块用地性质为服务设施用地。
依据建设单位提供的建设工程设计方案(由武汉正华建筑设计有限公司设计),H地块拟建设1栋4层公共服务设施楼,该建筑总建筑面积约9921㎡,地上计容建筑面积约7504㎡、地下一层停车库建筑面积约2417㎡(地下机动车停车位52辆);其中社区综合服务用房约1502㎡、菜市场约1921㎡、社区卫生服务站约2000㎡、老年日间照料中心约2001㎡、公厕约80㎡等,该项目无日照影响。
经核实,各项指标符合规划条件的要求,建筑间距和建筑退让满足消防及技术规定要求,停车位满足规范要求。

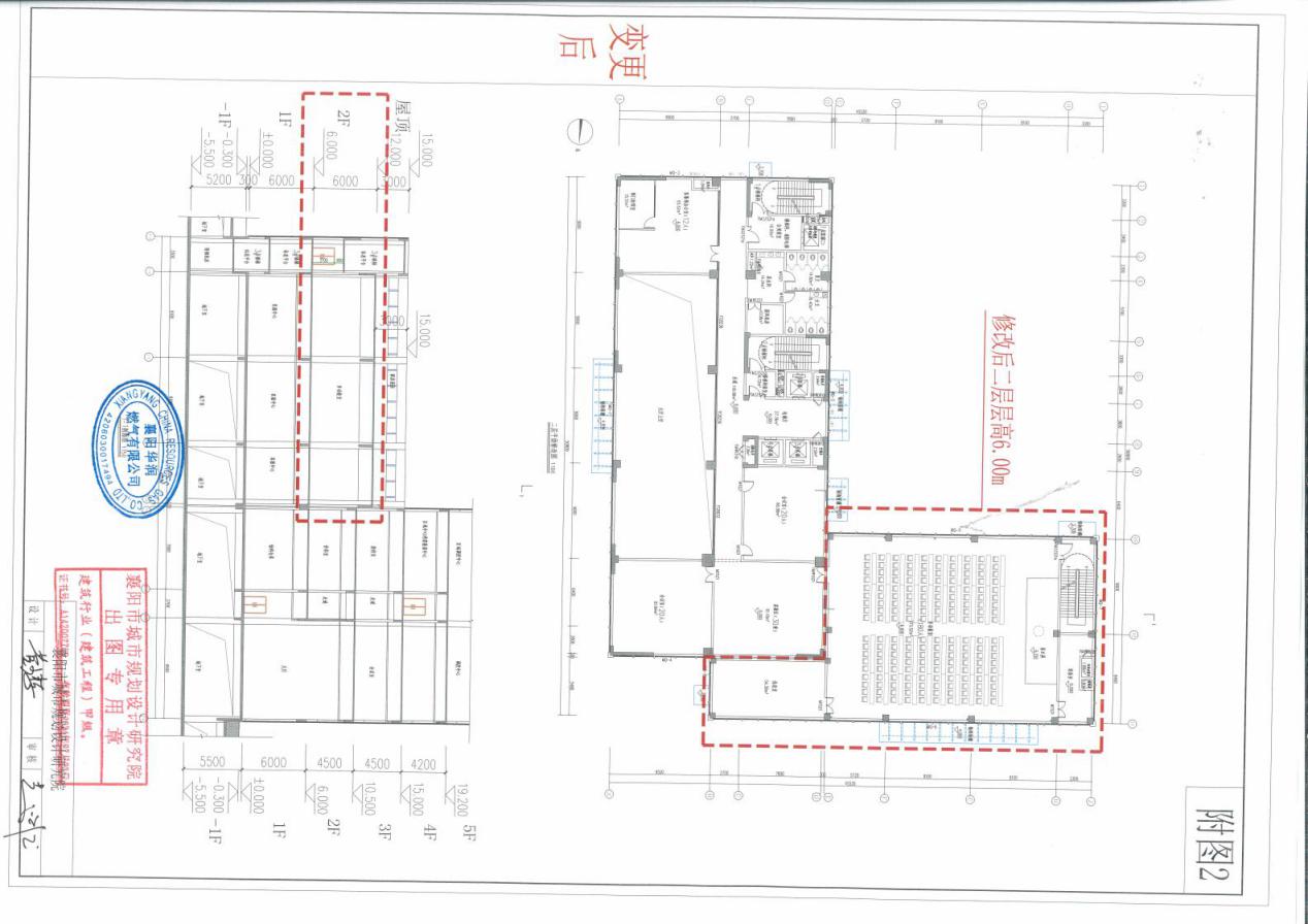
06
华润燃气襄阳区域生产调度中心
华润燃气襄阳区域生产调度中心项目位于汉江北路以西,2020年7月该项目取得建设工程规划许可证(编号:JSGCX2020060056)。
该项目裙楼二层规划为食堂,层高为4.5米。2020年8月8日,阳华润燃气有限公司申请对裙楼二层功能进行调整,依据建设单位提供的变更图纸(由襄阳市城市规划设计研究院设计),裙楼二层由食堂调整为多功能报告厅,同时将裙楼二层的层高由4.5米调整为6米。
经核实,变更后的图纸符合技术规定等相关规定的要求,变更后的裙楼外立面效果需与原审批方案一致,另变更后的图纸需满足结构、消防等规范要求。

