伴随着新农村建设的开始,自建房也逐渐进入了大众视野。但房子并不一定都是方正、长方形、L形、U形等异性的宅院,今天小编就为你分享三款农村7字型自建图,不输城市的楼房,甚至可以和城市的别墅媲美可供您参考!
别墅图一介绍:仿古七字形二层住宅设计图纸及外观效果图
整幢房屋选用的是仿古式设计风格,徽派建筑大气磅礴,住宅主体以底部文化砖和乳白色为主导,与深棕色窗子和木质护栏紧密结合,构建了清冷的建筑气氛,部分装饰设计的木饰板和向外拓宽的灰黑色屋檐,增加一丝溫暖的气场。分离式厨房装修设计能够有很大的提高空间利用率。能够使整体室内空间更宽敞光亮,而且能够更好地提高餐厅厨房的主要要求,简单化餐厅厨房到饭桌的线路,并能能够更好地运用每一寸室内空间。
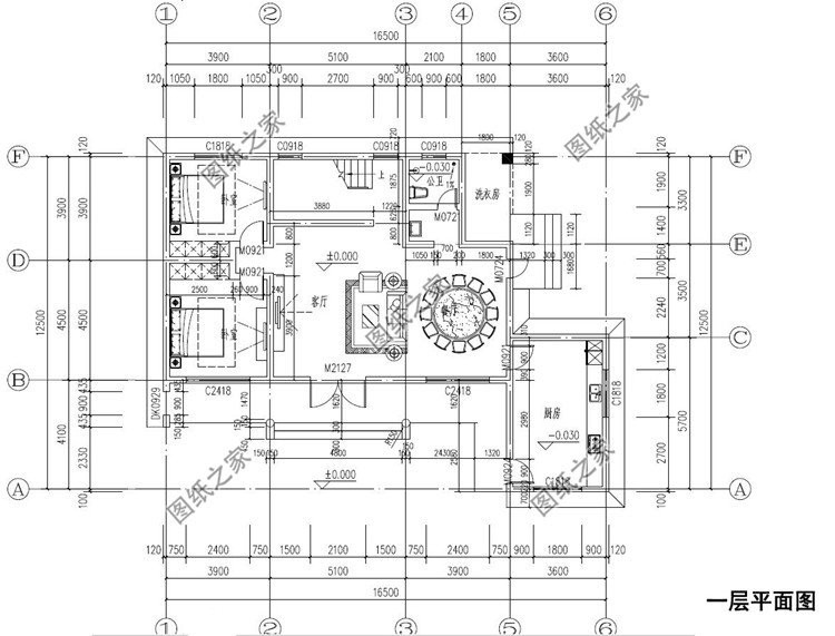
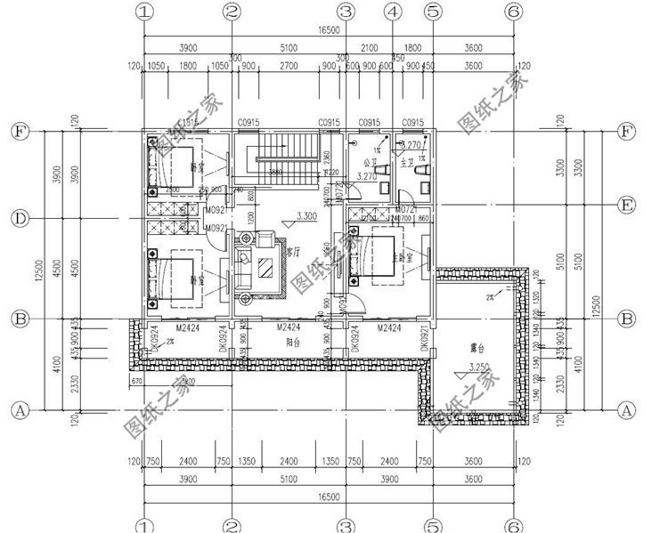
占地面积: 16.5m*12.5m,129.88平方米左右; 建筑层高 :二层; 建筑高度 :9.51米(含屋顶);

正面效果图

鸟瞰效果图

侧面效果图
设计功能 :

一层平面图
一层户型:客厅、厨房、餐厅、卧室x2、洗衣房、卫生间;

二层平面图
二层户型:客厅、卧室(带卫生间)、卧室x2、卫生间、露台、阳台;
别墅图二介绍;带车库的农村二层七字形自建房别墅设计图纸,15x12米
整体建筑采用新中式风格,既有中式的古典美又带有现代风的造型新颖。外墙主体色彩用黄色的真石漆与灰色真石漆结合,大面积使用木塑板做装饰丰富了整个建筑群体的立面层次整体呈现的简洁清新感觉,建筑借助宅基地的特殊,做了车库设计,保护户主的爱车不受停在户外的风吹雨打也赋予了住宅有了一股立体感。
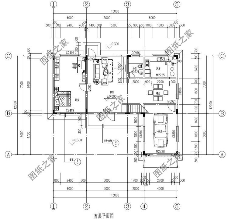
占地面积 :15m*12m,130.44平方米左右; 建筑层高 :二层; 建筑高度 :9.05米(含屋顶);

正面效果图

鸟瞰效果图

侧面效果图
设计功能:

一层户型图
一层户型:客厅、厨房、餐厅、卧室、车库、卫生间;

二层户型图
二层户型:客厅、卧室(带书房)、卧室x5、卫生间x2;
别墅图三介绍:农村七字形二层小别墅设计图纸
这幢房子是简欧风格,突显了当下人们对简单生活的渴望。主要采用建筑外立面褐色文化砖,米黄真石漆结合室外空间的层次感,既稳重又灵活多变的整体造型。整个住宅采用白色欧式的栅栏环绕,配以入户门厅,给人一种浓郁的田园气息。由于考虑到采光的问题,在正面设计了两个落地窗,满足了室内照明的需求。独立厨房与餐厅相连,避免烹饪时油烟飘散到室内,提高居住舒适度。
占地面积 :16m*17.5m,312.5平方米左右; 建筑层高: 二层; 建筑高度: 10米(含屋顶);

正面效果图

鸟瞰效果图

侧面效果图
设计功能:

一层平面图
一层户型:门厅、客厅、厨房、餐厅、卧室(带卫生间)、卧室x2、卫生间;

二层平面图
二层户型:客厅、卧室(带卫生间)x3、卧室x2、卫生间;
以上就是小编带给大家的全部内容了,有兴趣的家人记得点赞关注呦!