
日前
海口市海秀、新埠岛、城西、
海甸岛(含美丽沙和海甸溪北岸)等
4个片区控制性详细规划(修编版)
已编制完成

4个片区控规编制范围包括哪里?
未来又将如何打造?
日报妹帮你拎出这些重点!

01
海秀片区
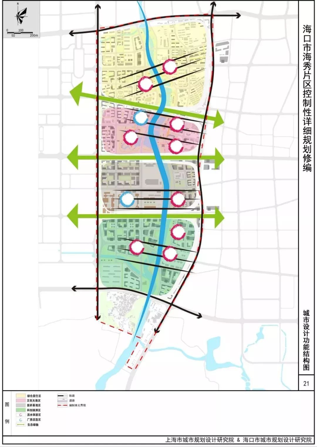
海秀片区编制范围东起丘海大道、西至永万东路、北起海秀西路、南至椰海大道以南约2公里处,总人口规模为16.58万人。
根据定位要求,该片区今后将打造成科创产业聚集的水岸科创智慧城,并突出地区工业遗产价值。通过引入科创产业后,将该片区打造成科技文化中心、历史文化水廊、智慧海绵社区。
海秀片区将规划构建优势产业支撑、科技产业引领、文体产业带动的产业体系。发挥生物医药、医疗健康、科技教育、健康农业四大优势产业,引入互联网、智能研发、教育培训、电子商务的四大创新产业,以广告媒体、影视产业、文化会展、演艺娱乐、文化体育等文体产业带动地区未来的特色发展。
海秀片区城市设计结构图

02
城西片区
城西片区本次规划范围东至龙昆南路,西到丘海大道,南至椰海大道以南1600米处,北邻南海大道,规划范围15.5平方公里。旨在打造科技商务、活力人文、宜居生活、开放共享的产学研一体化城区,是海口市重要的高新技术产业区和生态、绿色、人性的新型综合区。
本次规划形成两带两轴、两心四组团的结构布局。
两带:沿三星路-际中路-金盘路-华庭路集聚老城都市服务功能,形成城市综合服务集聚带;沿坡巷路-苍峄路融合教育、居住、商业服务等功能,形成融合协调城市发展带。
两轴:片区南部结合工业用地转型,产业更新及教育研究基础,形成产学研一体化发展轴线;沿中央大道形成串联整个工业区、承接原工业产业园转型升级的高新技术产业发展轴。
两心:以老城城市功能为基础,在两大服务带相交处形成城市服务中心;在两大产业轴线相交处形成集聚高新产业、文化创意产业的城西产业中心。
四组团:健康服务组团、汽车文化组团、活力居住组团、教育综合组团。
城西片区功能结构分析图

03
新埠岛片区
新修编的控规显示,新埠岛片区规划范围为整个新埠岛,总用地9.09平方公里。
规划从承接国家和海南的新形势新战略,延续上位规划和相关规划的规划引导,挖掘新埠岛自身资源优势和特色三个层面综合考虑,提出新埠岛的总体定位:一个开放自由、创新集聚、彰显时代活力与海岛魅力的国际创新自在岛。
重点发展休闲旅游、创新商贸和文化创意三大产业,将新埠岛建设成为一个依托生态本底、挖掘资源潜力的旅游休闲目的地,一个企业自由交流、产品自由流通的创新商贸集聚地,一个集聚创意人才、树立时尚标杆的文化创意策源地。
新埠岛片区规划结构分析图

04
海甸岛片区
海甸岛(含美丽沙和海甸溪北岸)片区规划范围为海甸岛全岛,要发挥紧邻城区的离岛区位优势,以海大人文科学底蕴、滨海滨江休闲服务、品质宜居社区为支撑,进一步优化生态环境、完善服务配套,将海甸岛打造为海口市、乃至海南省知名的人文休闲宜居岛。
本次规划形成“一环一带、一区三片、七节点”的布局结构。
“一环一带”:规划形成具有连续性、可达性、开放性、空间变化丰富、周边服务多元等特色的环岛滨水公共活力带。“一环”为岛岸观光休闲绿环,“一带”为沿海甸溪北岸、琼州海峡东岸布局的滨水休闲服务活力带。
“一区三片”:指一个公共服务核心区和三片宜居社区。公共服务核心区依托海南大学、人民医院、白沙门公园等形成文化创意产业链、健康疗养产业链,强化海甸岛文创活力特色。三片宜居社区环绕核心区布局。
“七节点”:包含3个公共服务节点和4个特色商业节点。公共服务节点分别为白沙门公园节点、海大文化创意节点、人民医院医疗康养节点。特色商业节点的打造主要是依托蓝绿交融的生态资源,导入旅游度假、文化博览、娱乐休闲、餐饮购物、商务办公等服务功能,成为提升地区活力的休闲目的地。
海甸岛片区规划结构图

目前
4个片区控规
已进入公示征求意见阶段
关于海口市海秀、新埠岛、城西、海甸岛 (含美丽沙和海甸溪北岸)等
4个片区控制性详细规划(修编)公示
海口市海秀、新埠岛、城西、海甸岛(含美丽沙和海甸溪北岸)等4个片区控制性详细规划(修编)已编制完成,为广泛征求社会各界和市民的意见和建议,现按程序进行公示。
1、公示时间:30天(2019年7月12日至8月10日)。
2、公示地点:海口市自然资源和规划局门户网站(http://zzgj.haikou.gov.cn)。
3、公示意见反馈方式:(1)电子邮件请发送至hksghj@haikou.gov.cn;(2)书面意见请邮寄至海口市自然资源和规划局规划编制审查办公室,地址:海口市长滨路市政府办公区15号楼南楼3045房,邮编:570311;(3)意见和建议应在公示期限内提出,逾期未反馈,将视为无意见。
4、咨询方式:
海秀片区:68715622,邢茜;新埠岛片区:68724397,翁欣娜;城西片区:68724397,*克王**壮;海甸岛片区:68724398,毛红杰
海口市自然资源和规划局
2019年7月12日
具体公示内容,请戳链接阅读→关于海口市海秀、新埠岛、城西、海甸岛(含美丽沙和海甸溪北岸)等4个片区控制性详细规划(修编)公示
大家有任何想法
欢迎提出宝贵意见哦~
来源:海南日报客户端、海口市自然资源和规划局官方网站
记者:张期望
编辑丨唐咪咪
按下图操作
你就离日报妹日报君更近啦!
