项目地址:聊城华建壹号官邸
设计单位:聊城鸿鹄装饰设计有限公司
施工单位:聊城鸿鹄装饰设计有限公司
设计师:王纪帅
摄影单位:聊城鸿鹄装饰设计有限公司
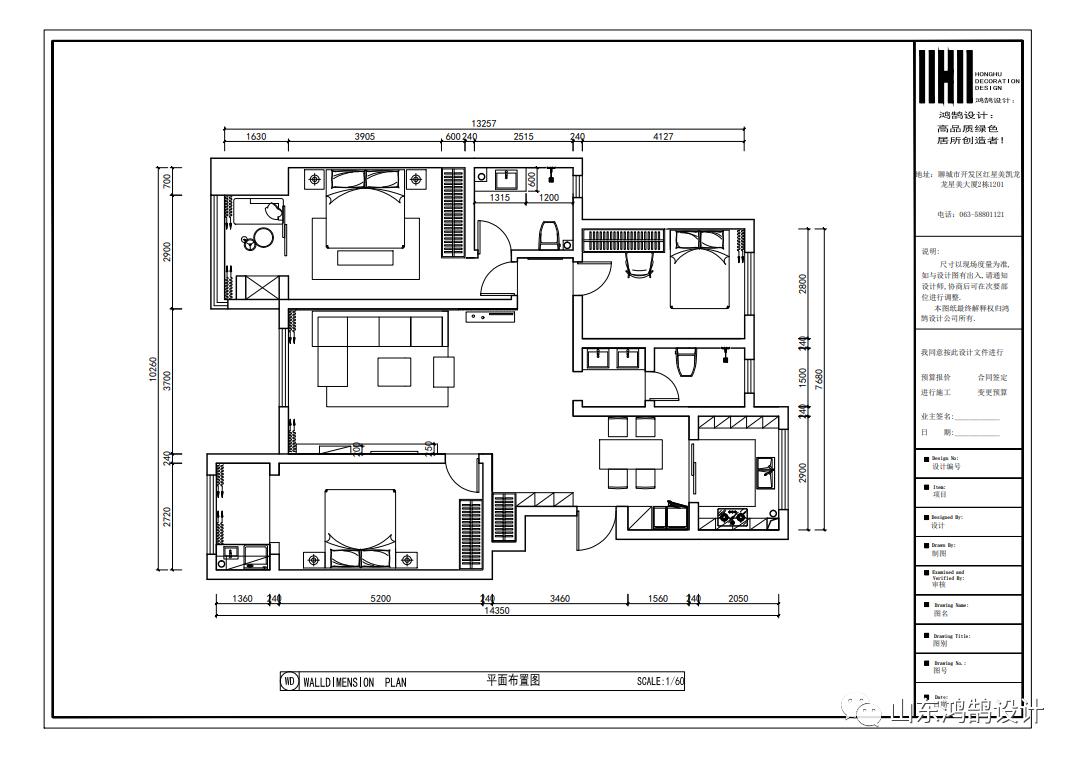
建筑面积:135m²


华建壹号官邸为聊城2019年刚交的新楼盘之一,地处高新区,南边紧挨着九州湿地公园,交通便利,环境优美。而找我设计的户主也是相中了华建壹号官邸的优点。户主为四十岁左右的一对夫妻为自己的孩子准备的婚房,常驻人口四人,还要准备一个儿童房。房子的户型为三室两厅两卫一厨结构,南北通透,采光比较充足,在现场与户主沟通的时候,户主比较注重餐厅与过道的空间尺度感,入口左边鞋柜的设计,客厅电视墙与沙发背景墙的设计,希望设计师将他们四口人的生活需求都融入到设计中。


整个空间为现代简约的设计手法。吊顶常规的一周边吊,将客餐厅的中央空调隐藏里面。电视背景墙处采用壁布与木作的手法,弱化左边入户门的效果。让整个背景墙融为一体。地面灰色瓷砖通铺,视觉上更开阔一些。沙发采用现代布艺沙发,米灰色让空间更暖一些。

沙发背景墙一整面的壁布,中间采用分缝处理。让空间生动一些。

餐厅的空间尺度有些小,所以换成卡座的形式,减小了宽度的需求,极大增加西式橱柜的使用空间。顶面没有采用原始石膏板吊平的手法,而是采用增加假梁的手法,弱化原始梁结构带来的空间压抑感。

同时卡座还能增加空间收纳功能,本身的结构也有一种美感。


客卫采用干湿分离的设计,将洗衣机嵌入到里面,台面石英石台面。

儿童房衣柜与书桌结合在一起,全屋采用米色的壁布。


主卧的设计手法还是一贯的简约。床头背景墙用生态木装饰,墙面采用壁纸通铺,阳台放一把休闲椅,作为休闲阳台使用。