今年,济南东部楼市的惨烈竞争,将从刚需盘向改善性楼盘延伸。因为,今年东部的改善性楼盘将放量供应。
坐标工业南路以北、二环东路以东,这里是济南相对成熟的片区。今年,这里有很多改善性楼盘在售,包括历下区的海尔天玺、金地华著、阳光城·檀悦、海信君和,历城区的电建·洺悦府,高新区的绿地华彤苑、悦珑府等项目。
近期,这里就有一个新楼盘加入大乱斗,这就是金科·集美天悦。这个楼盘怎么样呢?
1、位置不错,坐享老城、新城便利
金科·集美天悦的区位是很不错的。
它位于工业南路以北、七里河路以西。这里是老城区与东部新城融合处,距离二环内的百花公园约500米,距离东边CBD约1.6公里,距离茂陵山公园数百米。

交通方面,周边有二环东高架、工业南路,还有规划中的M1地铁线,出行总体很方便。
商业配套方面,它距离洪楼商圈一两公里,距离万象城三四公里,距离高新万达商圈约5公里,生活还是很方便的。
2、户型中规中矩,有亮点也有槽点
集美天悦土地成交于去年,是一块商住混合用地。它的地上容积率为3.4,其中住宅地块2.8,商业为0.6。
项目规划9栋高层住宅,一栋高层商务办公,并将配建室内副食品市场,社区综合服务用房,卫生服务中心和养老服务设施。

它的住宅产品为18-26层高层,共920户。停车位1426辆,其中地下1406辆,地上20辆(不在小区内),比较充足。
小区大门出入口在东侧,包括两个车库出入口,一个人行出入口。

置业顾问介绍,它首先开盘是4号楼、6号楼。前者为12层,后者为17层以及22层,户型面积段主要为113-157平米。
户型方面,总体中规中矩,有比较漂亮的户型,也有比较奇特的户型。
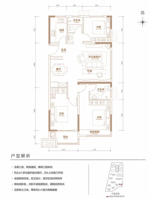
其中,6号楼的22层产品,是两梯四户,中间户为117㎡:

边户为132㎡:

(132户型)
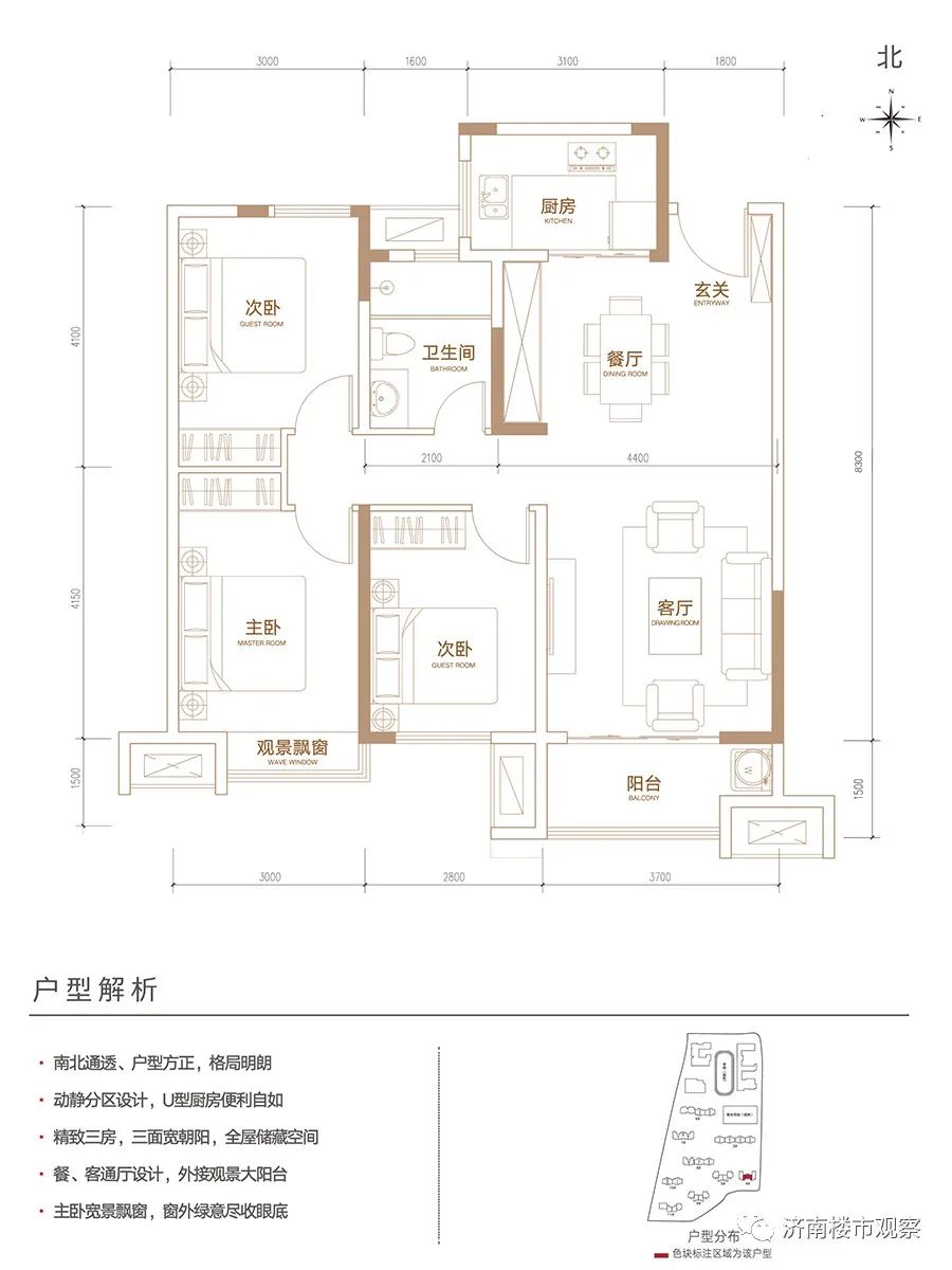
6号楼的17层产品,两梯两户,只有一个176㎡的户型,是比较受欢迎的四室朝南户型:

再看4号楼。
它的边户为123㎡,只有两室朝南,客厅并不朝南,比较奇特:

中间户反而是三室朝南的产品,面积为113㎡:

3、写给买房人,敏感因素提醒
该小区地理位置相对不错,但以下几点需要关注此楼盘的朋友留意下。
首先,部分产品采光一般。
整个小区一共920户,居住公寓有40户,占比达到了4.3%。光照不足居住标准的房子,主要集中在2#楼与6#楼。

其次,社区不是很纯粹。
该小区靠近南侧的5号楼、9号楼、11号楼是回迁安置房,占比不小。
项目东北角有一个12层的商业办公产品,建筑高度49.4米。从规划图看,该部分产品与住宅应该会有隔离。
其三,周边有一些老破小,环境还有待改善。
项目西侧是窑头大沟,未来有望改造为小型景观带,但目前暂未动工。

(窑头大沟现状)
南侧是山东省外运宿舍,东侧七里河路以东也有较多老房子,周边城市形象并不是很高大上。

(滤网覆盖为集美天悦项目,周边多为老破小)
根据规划,未来小区南侧土地为商业商务用地,北侧会建一个小学:

南侧工业南路附近有一条高压线穿过。但因为不临项目,预计负面影响不大。
4、价格多少比较合适?
金科的这个项目,有自己独特的客群:
一些居住在二环东附近老破小的居民,有很强烈的改善需求,但因为自己工作、孩子读书、朋友圈等因素,大家又不想去其他地方买房。那么,去集美天悦买就是一个比较好的选择。
但另一方面,今年济南东部改善楼盘比较多,这会对价格形成压力。
目前,CBD内毛坯房的价格,已经到了2.1万/㎡左右。附近的山钢·鸿悦华府即将开盘(以前聊过,点这里查看),目前释放的价格信息在1.7万-1.9万之间。这样的价格,对周边其他楼盘将形成压制。
我们觉得,对该项目来说,2万是个大门槛。低于两万,若在1.9左右,接受度还会可以;高于2万,我们会建议大家直接去更东边的CBD买。
买房有疑问,可以问我们,我们将为你提供专业、客观、中立的咨询。请扫码加入我们的知识星球:
济南楼市观察原创文章,如需转载请获得授权!