
屋主信息
职业数学老师&媒体人
年龄85后
个人简介一对30岁的有爱夫妻,丈夫从事奥数培训行业,妻子从事媒体行业。育有一个活泼可爱、很有个性的两岁女儿。
前言
谁说理工男木讷呆板不浪漫,今天介绍的这一位就是例外。男屋主是北大高材生,是一名数学老师,也是一枚理工科出身的"直男"。他不善交际,爱独处,喜欢做数学题,甚至把解数学题当成一种解压方式。但正是这样一位直男老爸,却为家人打造出了一个温馨浪漫的幸福乐园。夫妻二人去日本旅游时,被日本的民宿深深吸引,尤其是日式强大的收纳,让空间变得清爽又舒适。所以在家居风格上,夫妻二人难得意见统一,都选择了自然、舒适、简约、实用的日式极简风。因为不喜欢装修工程队规模化的样式设计,这位老爸决定自己动手,画图纸、出设计草图、购买硬装材料。对他来说,整个家装过程就像在"解数学题",当中充满了挑战和乐趣。
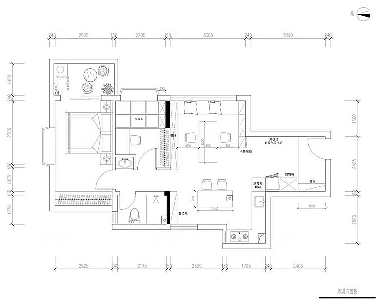
户型图

改造亮点:1、开放式客厅,抛弃传统布局,既是孩子的阅读游乐园,也是爸爸的工作台,还是家人的互动区;2、通过敲掉墙面,实现餐厨一体,拓宽厨房视野,打造温馨就餐区域;3、玄关黑板墙的设计,个性十足,也能为家庭生活增添更多乐趣;4、榻榻米+书架+衣柜一体化设计的儿童房,扩大收纳容量,节省更多空间;5、卧室添置索菲亚定制衣柜,超大容量,满足家庭所需;分层收纳,功能区分,摆放井然有序;6、将洗手区和如厕区进行干湿分离,让一家五口使用更方便。
玄关

推开门,就看到一大片黑板墙,还有墙上挂着的自行车。作为骑行爱好者,未未爸以前去过很多地方。他不仅自己喜爱这项运动,还成功带动了不爱运动的妻子,两人完成了浪漫且有意义的海南环岛行。

至于为什么会在玄关处留一面黑板墙,一方面是想着方便备课。(让烧脑的数学公式告诉你,这是一个学霸的家)

另一方面,也是为打造温馨的亲子互动空间。未未爸不仅是数学"大魔王",美术也是他的特长。每到重要节日,他都会在黑板上画简笔画,未未也会在旁边"锦上添花"。

未未过一岁生日的时候,未未爸就利用上了黑板墙来烘托气氛,一场温馨热闹的生日趴立马搞起来。

黑板墙的对面做了一排原木色玄关柜,配合柔和的灯光,予人舒适安心的温情感受。除了放置鞋子外,柜子还留有放置各种杂物的空间。在柜子的设计上,错落有致的线条结构,让整个空间告别呆板,富有设计感。
客厅

客厅的空间改造,是本次改造工作的重点,也是难点。学霸夫妇理想中的儿童成长之家,孩子必须要拥有一个宽敞透亮的活动空间;同时,因为工作需要,大人也要有属于自己的独处空间。所以在装修时,他们并没有采取常见的客厅布局,而是根据家庭成员的实际需求,打造出了一个将功能化与个性化完美融合的客厅。

这是一个没有茶几、没有电视,没有固定沙发的开放客厅。通过有效收纳和科学分区,将小孩自主阅读创作区、爸爸办公区与亲子影音互动区结合,充分满足夫妻俩及孩子的生活、学习和娱乐的需求。

在这里,爸爸可以陪女儿一起玩游戏(妈妈抱怨:爸爸常常比女儿玩得更欢脱,感觉自己带了两个熊孩子)

在这里,一家人可以亲密互动,夫妻俩更可以陪伴未未成长。

在这里,夫妻二人也可以拥有属于自己的二人世界。

在这里,大人还可以享受独处的阅读时间。

家里的书柜采用分区设计,上面放置的是供大人阅读的书籍,中间设有几排专门放文件或其他物品的抽屉,下面基本都是放女儿未未的绘本,方便她随时拿取。

未未已经两岁,自我意识很强,有自己的想法。目前,只有两岁的她最大的兴趣爱好居然是看书,而且每天都有固定的阅读时间。除了看书外,平时她也喜欢画画。

除了那一排书架大书柜之外,未未爸还专门为女儿准备了小书架,上面摆满了各种绘本和女儿的画作。值得一提的是,未未的小书桌,高度可以调节,可以从小使用到大。
厨房

原来的户型是封闭式厨房,给人视觉上的压迫感。现在把墙打通后,做了一个开放式的厨房,实现餐厨一体,这样大人在厨房忙活的同时也能随时查看小孩在客厅、餐厅玩耍的情况。另外,还在厨房与就餐区之间设置了一个吧台,用餐时可随手拿取餐边用品。考虑到孩子的安全,在下面一般放置塑料、不锈钢等东西,易碎品都放到了孩子够不到的高处。

在空间规划上,针对二手房改造,未未爸也有自己的"绝招":先定软装,再定硬装;先买电器,再选家具。这样才能严丝合缝,合理利用空间,有效避免尺寸不合所带来的尴尬。
餐厅

素雅的原木色,搭配白色的墙面,还有暖色的灯光,营造出温馨的就餐氛围。在墙面上还添置了一排置物架,瓶瓶罐罐收纳其中,厨房的每一点空间都被有效利用。

一家人围坐在桌前,吃着可口的饭菜。在这张餐桌,未未慢慢学会了自己吃饭,慢慢长大。
儿童房

儿童房面积很小,现阶段长辈会帮忙来照顾小孩,所以改造难点主要有两点,分别是如何安排父母和小孩的起居生活,以及满足儿童成长的收纳和多功能需求。为了解决这两个难点,夫妻二人果断选择了索菲亚的榻榻米+书柜+衣柜的一体化设计。之所以会选择索菲亚,一方面看品牌,但主要还是看产品。不想要华丽的宫廷风,也不要老年人钟爱的中式风,所以未未爸在找定制家具时,尽量要求简洁大方。刚好索菲亚的风格比较匹配,很百搭,很实用。

对于一个平时爱整理,爱收纳的人来说,索菲亚这款榻榻米简直是未未妈的"心头好"。因为榻榻米设置了不同的格子收纳,超大储物空间可存放各类物品,让儿童房不再是乱糟糟的代名词,而是孩子的舒适窝。同时,这款榻榻米的高度适宜,方便孩子一个激灵就能爬上去,在上面尽情撒欢打滚。

未未妈在整理孩子杂物时,通常会在靠近外面的区域存放常用物品,如孩子的纸尿裤,玩具;靠里的位置可以放换季的衣物,被褥,不常看的书等等。

儿童房紧挨客厅,为了扩大空间,未未爸敲掉了客厅的墙,用索菲亚衣柜的柜体来充当墙体。这波神操作,是不是666?


和榻榻米连接的这个通顶立柜有明确的功能分区,充分考虑到了日常需求,左边做书柜,右边做衣柜,趟门代替平开门,又节省了不少空间。一体化设计可以充分利用空间,不留空间死角,满足睡眠、阅读、储物的多功能需求。

儿童房里当然要有一个漂亮的飘窗,让阳光暖暖洒进来,又是未未一个玩耍的角落。
卧室

大人的卧室挨着儿童房,整体风格也是将极简进行到底。一张床、一个柜子、一个隐藏的梳妆台,就构成了清新素简的卧室空间。

大人的衣物,需要多大的空间来装?别担心,一个索菲亚衣柜就能搞定!在衣柜上方,可以放置换季的被褥或枕头。下方的左边采用多层隔板,可以分类放置小件衣物;中间区域设置两个挂衣杆,可以挂放男女衣物;右边,则是长衣区,裙子大衣统统收纳其中。衣柜里面还隐藏了试衣镜,灵活便捷。

衣柜采用嵌入式设计,视觉上增加空间的整体性,简洁大气。

除了收纳功能强大外,衣橱的人性化设计也是很暖暖的。双导轨使得通顶的门开关很顺畅,搭配阻尼缓冲器,不用担心夹手,同时也不会有噪音困扰。

卧室的飘窗,上面摆满了各种玩具,这里也是女儿未未的寻宝基地。

卫浴

谁说卫浴间的标配是洗手区和如厕区!未未爸再次发挥自己的数学特长,精打细算腾出次卧半平米空间打造公共洗手区,成功做到干湿分离。远离潮湿和烦闷,还能避免早上多人使用的尴尬,你可以洗漱,我可以蹲厕,互不打扰,各自安好。
写在后面

学霸父母家的"居家育儿经":1、让孩子发扬独特的个性:玄关黑板墙的存在,让孩子可以天马行空,充分发挥孩子的天性;2、给孩子制造更多的体验:客厅不要沙发、茶几、电视,给孩子留有充足的互动空间,家庭互动不受限制,一家人围坐在一起画画、做手工、看投影,氛围更好,同时也有助于保护孩子的视力;3、给予孩子高质量的陪伴:客厅将孩子学习区、大人工作区、家庭互动区三合一,空间规划更合理,空间利用更高效;4、打造安全的成长环境:开放式厨房设计,从厨房也能看到客厅全貌,有助于大人随时关注孩子的一举一动;5、收纳习惯从小开始培养:谁说儿童房一定乱糟糟!哪怕只有7平米,利用榻榻米+书柜+衣柜的一体化设计,如果有合理的收纳空间,儿童房也可以变得整洁有序,成为孩子舒适的乐园;6、不设条框,给予适当引导:家装风格也会影响到孩子的成长,考虑周到的家装可以营造一个安全的成长环境,给孩子更多自由的空间。听话和懂事,对于孩子来说,并不是一个很好的形容词。家长不要急着替孩子规划未来,要注意发现孩子的兴趣,并为兴趣的培养提供良好的环境和氛围。
结语
不管是客厅的书柜,或是儿童房的榻榻米和衣柜,还是主卧的衣柜,索菲亚的家具都充分考虑实际需求,充分利用小空间的扩容逻辑,让收纳空间无限放大。这对于多人口小面积的户型来说,无疑是解决了最头痛的装修困扰。海绵里的水,挤挤还是有的;家里的空间,收收还是有的。从卧室到客厅,做好全屋定制,选对收纳家具,小户型的空间也可以变得整洁有序。
(转载来源:一兜糖APP)