
iPhone又双叒叕出新品了?
岩芽身边很多同事
都通过线上官方店和线下实体店约定了
本着买不起也要看看的原则
于是跟着同事去了 苹果的线*体下**验店
结果,就被店里面高大上的天花吸引了
发光哎~ (真是个没见过世面的岩芽→_→)

项目:苹果专卖店|Bohlin Cywinski Jackson
地点:纽约世贸中心
想到上次文章留言中还有小伙伴不懂 软膜天花
(久等的小伙伴:还记得我呢!!!)
回来后岩芽就对它进行了详细的整理
接下来为你进行讲解~
软膜天花

在过往文章
以及设计得到官网的专栏 《dop设计实战指南》 中
已经详细介绍了 软膜天花
接下来岩芽为还不太明白的小伙伴
继续介绍一下关于软膜天花的概念
1、 软膜天花的概念
软膜天花也称 “发光天花”
是 能大面积产生均匀照明的天花顶面
之所以能透出灯光的光源
除灯具的使用,最主要依赖的就是 软膜 这种材料

△手扶电梯下方安装的软膜天花
2、 软膜
软膜俗称 “弹力布”
主要采用特殊的聚氯乙烯材料制成
通过一次或多次切割成形
性能的稳定性在 -15℃~45℃之间

△软膜细节展示
a、 软膜常见规格及种类
厚度 0.18-0.2mm
重量180-320g/㎡=2部iPhone5手机重量
种类: 透光膜、光面膜、哑光膜
金属面软膜、精印膜

△软膜5种类型展示

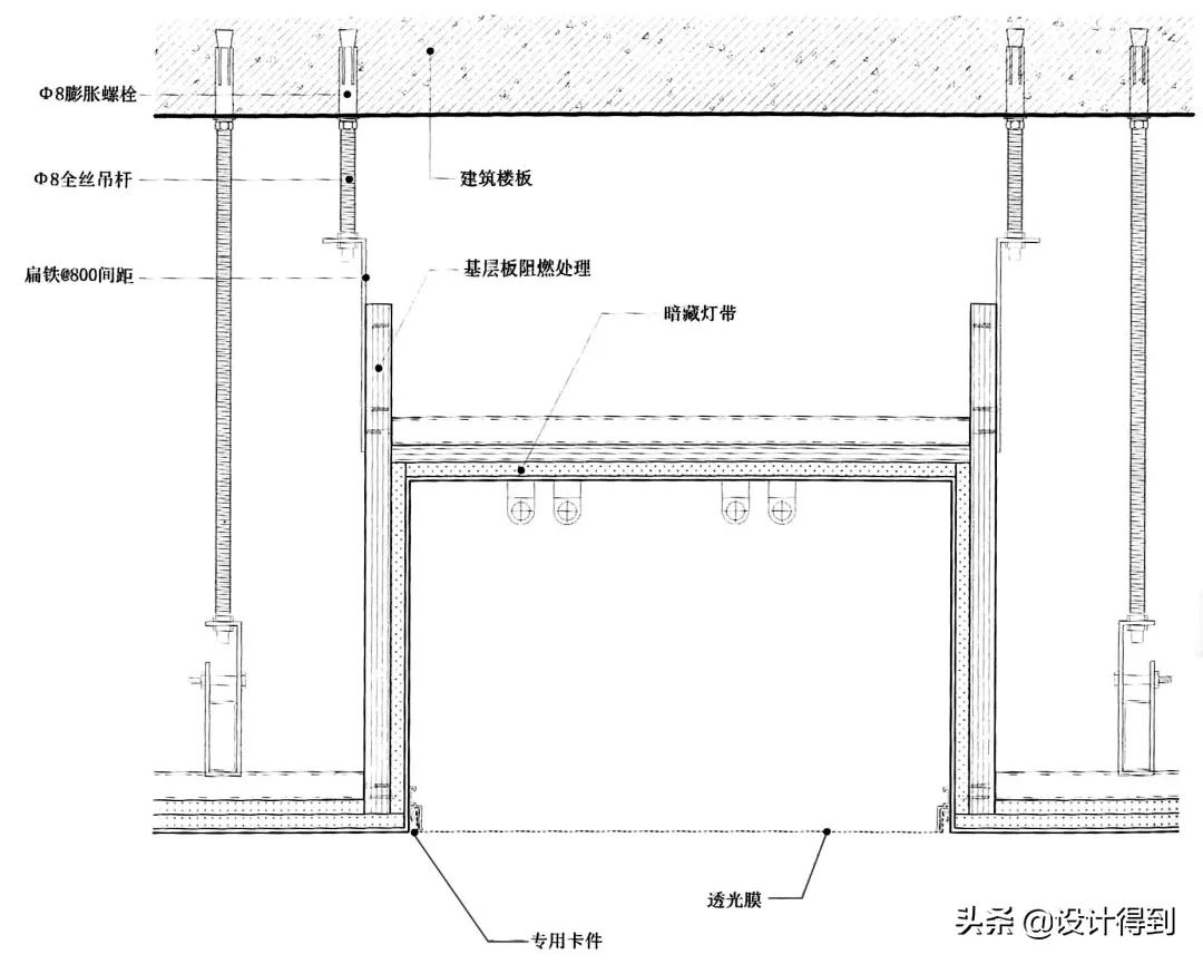
在施工中,软膜天花 构造形式:
构造=光源载体+龙骨+软膜
所以,关于软膜天花
这里依然按照 “骨肉皮” 的形式分析
1、 光源载体
软膜天花作为一种广泛用于室内的装饰材料
得利于软膜这类材料有较好的透光性
内部施工配合安装灯光
就能保证日常天花的照明使用
同时还能极大的保证美观

△设计:Gensler LA
项目:COEX
安装灯光载体时
需要注意灯光载体距离软膜安装面的距离
保证灯光在照射时均匀、美观
减少过渡曝光和照射不足的发生
因此,需要注意以下方面:
a、 灯槽距离软膜面距离 ≥200mm 时
(最佳250mm)
选择 T4、T5日光灯管;

△灯槽和软膜面距离与灯的选择
b、 灯槽距离软膜面距离 <200mm 时
建议选择 LED灯带;
c、 为保证灯光均匀、柔和
灯管(带)之间的距离≤灯管(带)与软膜的间距;

△灯带间距离以及软膜与灯管距离关系示意
d、 施工过程中
吊杆边缘和龙骨末端距离 ≤300mm
防止石膏板边缘出现弯曲、变形的问题;
e、 由于软膜天花只需固定灯具
因此基层承重不大,硬度不做具体要求
可以使用 双层石膏板 进行固定。
2、 龙骨安装
设计施工中,会根据不同吊顶需求
选择相应龙骨进行安装

△软膜天花专用龙骨示意

△软膜天花专用龙骨安装示意
曲面吊顶安装时
龙骨需要隔 20-30mm 切割一段
沿基层边缘做弧线
定制弯曲龙骨时
不同型式龙骨,最小弯曲半径 ≥300mm

△弯曲龙骨示意
3、 安装软膜
施工现场安装软膜的步骤总共有 6个:
① 钉好龙骨(隔20㎝用螺丝固定);
② 软膜四角固定在已安装好龙骨上;
③ 用电风机把软膜边缘吹软;
④ 用铲刀把软膜扣边塞入龙骨卡槽内;
⑤ 不平的地方用电吹风吹平即可;
⑥ 安装完成。



△不同龙骨的软膜天花安装节点

△软膜安装su效果展示

△软膜天花CAD节点图纸
4、 特殊软膜安装
软膜不仅会使用在天花吊顶中
很多特殊的 独立造型、墙面造型
不仅需要表现自身的美观性
同时又要保证灯光的照明
通常会使用到软膜这种材料
但是特殊造型
龙骨的支撑数量可能增加
灯源载体的光源照明方向也可能有龙骨遮挡
因此会不可避免造成 灯光照射出“骨架”的情况

△顶面波浪形天花安装
为了避免这种情况发生
这时施工中会使用 “无影灯原理”
所谓的无影灯原理
就相当于 在拍摄物品时
避免单方向光源产生阴影
在物品周围增加不同方向的光源
好似视频博主的“补光” (哪里不亮补哪里)

△独立造型软膜安装示意
这样就可以利用 无死角的光源照射
将“骨架”隐藏起来
在安装好的造型外看
不管哪个方向都没有阴影的妨碍

虽然软膜天花安装便捷
使用过程中美观、便捷
但是毕竟是类似于 布料的材质
在室内空间,尤其是大型公共场合
长久使用内部不可避免会有 灰尘和蚊虫停留
尤其是在灯光的照射下
软膜上的灰尘以及蚊虫等会更加明显
就和人脸上的雀斑一样密密麻麻的!
(密集恐惧症表示不能接受!!)
所以安装软膜天花的 日常检修 也非常重要

△项目:感官沙龙
设计:MOJO STUDIO
1、 日常安装检修
在日常检修,清理的过程中
就需要按照安装方式卸下软膜进行清理打扫
然后重新安装上去
这样虽然快捷但铲刀容易损坏软膜的边缘
尤其是反复的装卸过程
软膜边缘的破坏也会越来越严重
造成整块产品更换的情况发生
为了避免这类情况的发生
有些厂家就生产了 “龙骨软膜一体化” 产品

△项目:广州|白ZS实验室
来源:超未来网
2、 龙骨软膜一体安装检修
这类产品最大的优势就是: 检修过程中
软膜天花可以直接通过龙骨的卡件进行装卸
不会造成软膜的损坏
但由于规格固定
这类产品不适用于异形软膜天花的造型
也降低了软膜这类材料的创造性和美观性
想要打造特殊、个性的天花和墙面造型
就不能使用这种固定规格的软膜

△龙骨软膜一体式安装效果
PS: 软膜天花安装
在出风口周围要使用 木龙骨
因为出风口处的气温与室内温度相差较大
极容易出现 冷凝水 的情况发生
长时间会导致石膏板开裂的状况

△出风口安装木龙骨示意
软膜天花
有关软膜的内容就先给大家讲解到这里了
其实设计施工过程中
使用到的材料多种多样
施工问题以及节点的绘制也五花八门