
陈旧灰暗的大宅
通过天井的巧妙设计
让光线在每一个角落流动

室内室外形成自然呼应
沉稳大气又不乏温暖闲适
一个有温度有个性的家
就此在眼前展开
认识设计师

王阳阳
《交换空间》《空间榜样》特邀设计师,40under40浙江设计杰出青年,拓者空间设计软装设计总监。
房屋信息
面积:450㎡
坐标:浙江 绍兴
设计机构:拓者空间设计
软装设计:仰些空间美学




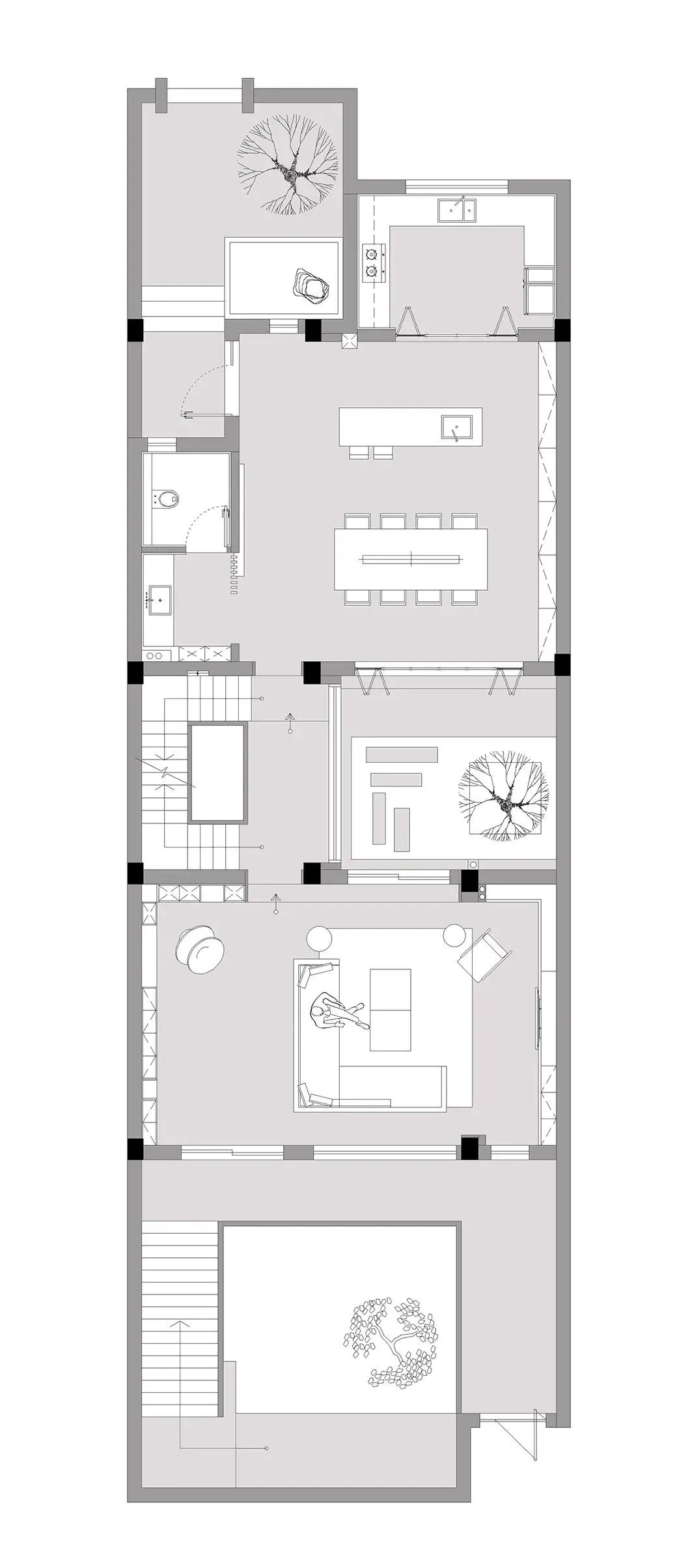
负一层到三层滑动查看
01 / 洒满阳光的地下室
空间大开敞,让光在家中流动起来

鲁小姐家位于绍兴市中心,地处高密集住宅区,闹中取静。这栋4层别墅面积约450㎡,被开发商定义为中式合院,但由于建造年份久远,大部分外墙已经脱落,原本深色的墙面和一个个小窗让整栋建筑显得逼仄又封闭。
设计师大笔一挥,将所有空间都尽数打开,用大块落地玻璃来围合天井,地下室的空间感受和采光完全被提升。

将地下室墙面刷白,一层客厅、餐厅、厨房四面连通,光线与气韵开始在整个家里流动起来。

改造后的地下室成为很棒的休闲观影空间,也是活力又充满朝气的亲子乐园,孩子可以在这里嬉闹或者练习舞蹈。

以灰色水磨石打造的台阶,既是休闲平台,又是沙发卡座的背景,多功能设置让空间显得简练又充满趣味。

灰色呈现特别高级又内敛的个性,将空间情绪稳稳沉下去,而后面一个区域的木饰面和木色隔板的加入又给沉稳里加了几缕轻盈的调子。

地下室沙发后藏着一个小小的餐边柜,亦可用作水吧。在这个楼层也可以实现比较简单的泡茶、冲咖啡的操作。

扶手椅:Magis Sam son
在永恒经典的黑白灰之间,设计师特意选用了明黄色的设计单椅给空间带来活力。

地下室联通的室外花园里还有藏着一条户外楼梯,可以直接通向一层。
02 / 一层客厅
实用与颜值完美结合

随着光线步入室内,从地下室上到过道,然后就进入了客厅。

爵士白大理石和白色木质底色,凹凸间勾勒出别出心裁的电视背景,L型木隔板悬浮其上,成就收纳功能,设计上大气简洁又不失实用性。

出自JACKY LEE的铸铁雕塑,搭配一个灯头就成了造型别致的氛围装置。


陀螺椅:Magis Spun
客厅的整面白色收纳墙被留出一个用于透气的镂空,挂一副黑白画,堆上一堆木柴,再有一把黑色陀螺椅,打造出蕴含诗意又不乏闲适的一角。
03 / 厨房与餐厅
阳光与韵味尽收眼底,诗意十足

厨房天花板有一半采用了玻璃结构,为室内带来明媚的阳光,恰好解决原厨房没有采光的问题。在明亮的环境中下厨,心情也会跟着一起明媚起来。

餐厅使用了细边黑框玻璃折叠门,开放或封闭全凭主人一念之间。

餐厅和客卫之间用细细的木栅栏作为遮挡,隐约间透露几分禅意

坐在餐厅望向天井,苍翠的松树和枯山水映入眼帘,犹如一幅水墨画,缓缓在眼前展开。

天井里的枯山水造景,无需太多打理,晴日和雨后是两幅完全不同的美妙景象。
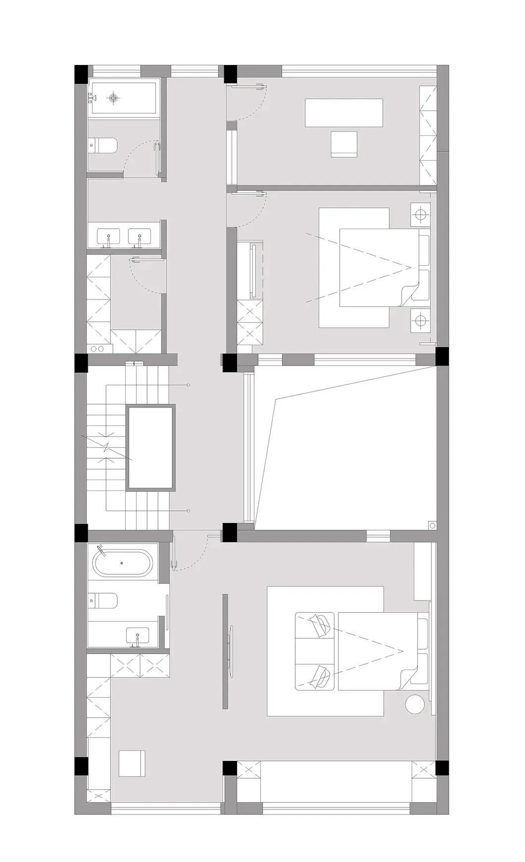
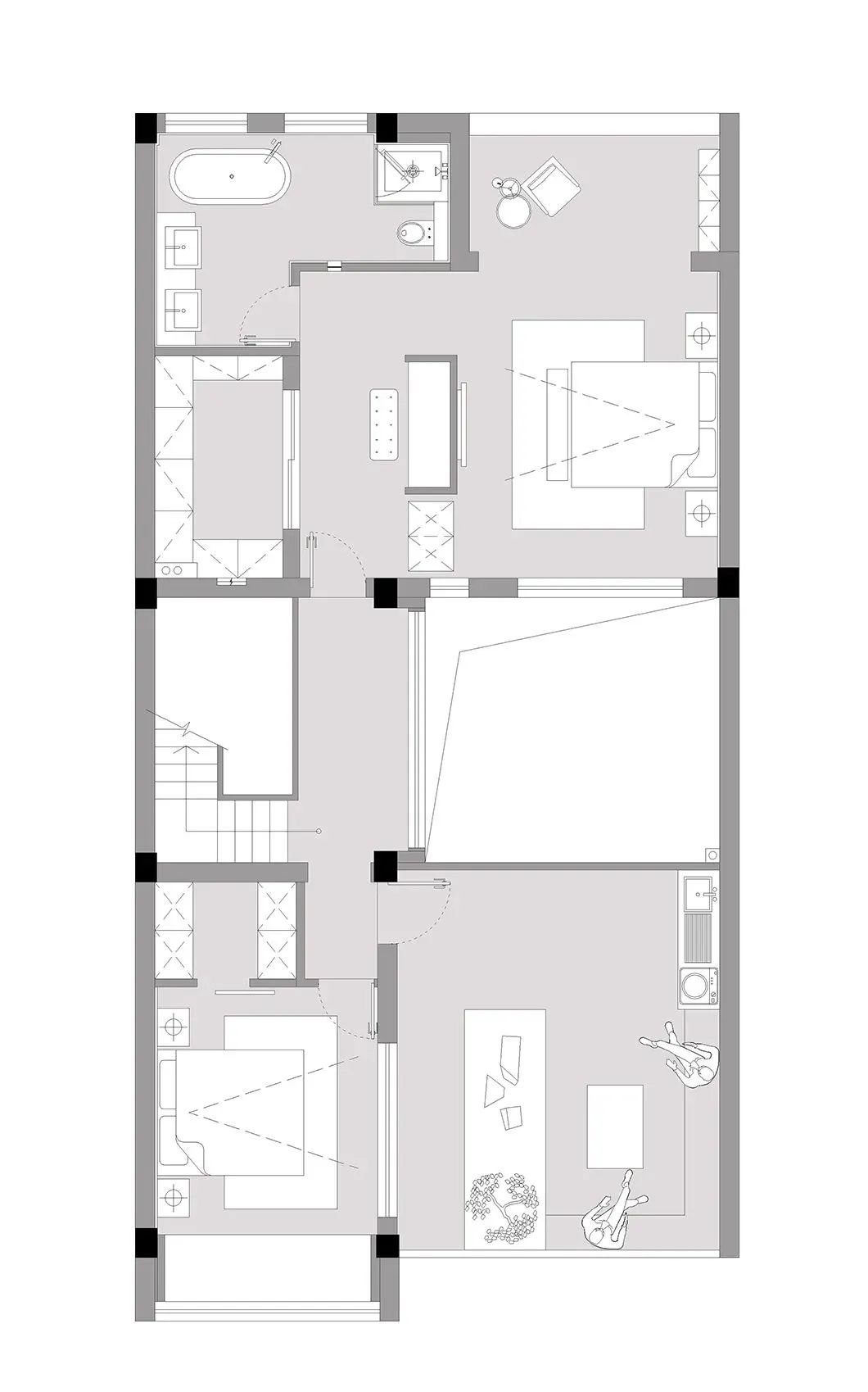
04 / 女儿房
高级又不失童趣,与大自然“零”距离接触

卧室里,超大的巨幕玻璃前设计了一排飘窗座位,小主人无事便可以坐在这里阅读或者坐看窗外花落花开。

吊灯:&Tradition
女儿房设计的关键词是放松和惬意,床头背景墙后露出一小簇棕榈叶,充满趣味的壁纸,令卧室突然有了室外的感觉。

卧室的衣柜没有做满,留下一米见方的冗余用来安置书桌,简简单单挂一个抽屉式隔板,再贴上棕榈树壁纸,画面一下就绚烂起来。
05 / 书房
诗与远方,就在眨眼之间

从书房看向落地窗,绿树环绕的美景让人留恋不已。
06 / 主卧
沉稳的同色系搭配&不同材质肌理的碰撞

主卧正中间,摆着手工牛皮制成的落地床,皮面亲肤柔软。

其上挂着设计师手绘的牛皮纤维感的装饰画,与方形的床在构图上形成呼应,不规则的肌理带来别样雅趣。
07 / 盥洗室
经典黑、白、灰,整洁而不失调性

主卫以黑灰色为主,双台盆、落地浴缸、中性偏硬朗的格局极具功能性,兼顾了设计美感和舒适体验。
来自设计师:这个家,最大的特色莫过于连接客餐厅的采光天井,开阔的空间连通庭院,让光线落入的同时能投射到各个方向。束缚着建筑的线条,以类似的方式束缚着砂砾、步道石、松树绿植以及来自天空的日光。清风徐来,流云落影。环绕小天井而展开的合院,自成一方美好天地。
策划 / 维娜
文 / ada
室内设计 / 拓者空间设计