
近期,南京市规划局网站发布“仙鹤片区北部中学项目规划设计方案”,据了解,仙鹤片区北部中学就是之前公布的南邮中学,此方案对南邮中学的各项情况作出详细公示,开工在即!

规划45班制中学!项目总占地约5.14万平方米
项目区位
项目位于仙林副城仙鹤片区,东至鸿雁路、南至文澜路、西至学海路、北至鸿运嘉园。

▲项目区位示意图
项目概况
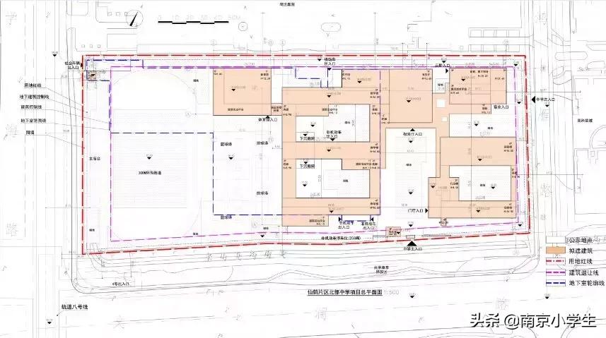
规划用地性质为中小学用地,地块占地面积约5.14万平方米,容积率≤1.2,建筑密度≤35%,绿化率≥30%,建筑高度≤24米。

▲项目总平面示意图
总建筑面积约4.49万平方米,其中地上建筑面积约2.92万平方米,主要功能为45班中学教学用房、辅助用房及其配套设施。
地下建筑面积约1.5万平方米,主要功能为机动车库、非机动车库及其配套设施。


▲项目效果图
距首次发布已过8年之久!南邮中学终于要来了
早在2011年12月发布的仙林副城仙鹤片区(EAe-020)控制性详细规划修编内,就提到了:新建仙鹤门小学、诚品城初中、诚品城高中,也就是说仙鹤片区北部将建三所学校。
一晃已经8年多时间过去了,南邮小学即规划中提到的诚品城小学早已建成投入使用,诚品城高中(南邮中学)今天终于传来新消息。

2017年7月19日

仙鹤片区北部中学4月申报外部条件,5月10日申报选址,7月19日选址变更。选址意见书显示中小学用地42235.01㎡。
2018年4月24日
仙鹤片区北部中学建设项目环评公示批复,总投资20340万元,总占地面积51400.21平方米。建筑包含普通教学楼、专用教学楼、行政办公楼、报告厅、图书馆、体育馆的、食堂、教师公寓、地下车库等。

2019年3月28日
仙鹤片区北部中学项目规划设计方案批前公示出炉......
仙林教育资源雄厚,各中小学优势明显
仙林一直是栖霞区甚至全南京教育资源优质的板块之一,拥有南师附中仙林学校中小学、金小、金小仙林湖校区、金中仙林等众多优质中小学。
此次公布的仙鹤片区北部中学附近的南邮小学(南京师范大学附属中学仙林学校小学部南邮校区)已于16年9月建成投入使用。目前该小学的招生范围是文澜社区(不含南师大茶苑小区)。预计仙鹤片区北部中学建成后将是该小学的对口中学。
2019年学区划分在今年4月份教育局将会发布官方文件。我们先看看2018年仙林的学区划分。
仙林2018学区划分——仙林小学学区一览

(备注:图上小区仅为部分,不代表所有学区)
周边小区最高成交价超3.7万元/平!二手房挂牌价在3万/平左右
南邮中学周边有5大小区,分别是高科荣域、中天铭廷、诚品城、鸿运嘉园和星叶羊山湖花园,小编整理了进入2019年以来这五大小区的最新成交价格。

▲数据来源于我爱我家、链家(星叶羊山湖花园未查询到成交数据)
由小编最新统计的数据来看,2019年以后南邮中学周边五大小区最高成交价为37419元/平,最高房源总价为680万,两套房源均来自高科荣域。星叶羊山湖花园暂未查到2019年后的成交数据。

▲数据来源于365二手房
小编在365二手房网站上查询到五大小区3月最新挂牌价,最高挂牌价小区是星叶羊山湖花园,达到36674元/㎡,最低挂牌价小区为诚品城,均价27751元/㎡,区域内价格相差略大,整体挂牌均价在3万/平左右.
不知在南邮中学到来后,这五大小区的房价会不会有所变化......

来源:安家城东、365南京学区房