上篇,我们主要介绍了南山外国语集团及高新中学概况:南山顶流学位 科技园南|南外高新最强攻略(上)。
本篇介绍学区 主要楼盘与户型特点 。
我们回顾下南外集团第一梯队的科苑小学+高新中学的学区范围,如下图:红实线内为高新中学学区范围,蓝色虚线内为科苑小学学区范围。

此片区有15个小区,约6000多套房。

北部的9个小区,除珑御府是2014年建成的次新盘外,滨福世纪 、滨福庭园 、海怡东方 、熙湾 、阳光带海滨城一期 、阳光带海滨城二期 、中信海阔天空、东海万豪这8个小区都是2002-2005年的老旧多层、高层住宅,设施比较老旧,车位也比较紧张。

南部的6个小区恒立听海花园 、博海名苑、纯海岸、岸芷汀兰、浪琴半岛和浅水湾,均是2005年以后建成,车位充足,最新的社区是2011年的岸芷汀兰和2008年的浪琴半岛。

与同有学位属性的南二外海德对比,品质改善盘选择更丰富。毕竟从次新、品质等综合分析,南二外海德只有观海台一种选择。
而与深圳湾豪宅片区对比,品质改善盘既能享受南山稀缺的海景景观,与深圳湾豪宅悦府隔滨海大道相望,同时又自带南山顶尖名校学位属性。
接下来我们从三类分析片区房源,第一类,刚需上车盘:仅有滨福世纪广场。第二类,刚需改善盘:阳光带海滨城一二期、海怡东方花园、海阔天空雅居、恒立听海。第三类,品质改善盘:珑御府、浪琴半岛、岸芷汀兰。
刚需上车盘
滨福世纪广场: 2004年入伙,1栋共7层,138户。1-2层为商铺,3-7层为住宅。小高层电梯房,四梯二十八户,因最小有39平方的单间,所以总价低,是上车高新学位的最低门槛。

小区主力户型有39平方单间、46-54平方一房、67-71平方两房三种户型,户型均方正实用,布局较为合理,均带生活小阳台,其中一房、两房客厅出阳台,各种朝向都有。



刚需改善盘
阳光带海滨城一期二期:
一期: 2003年入伙,共12栋住宅楼(没有4栋),约910户。

主力户型有93平方两房、139平方3+1房、143-179平方四房,也有顶楼复式选择。
1、3、9、11栋两梯两户,155/156平方、161/165平方大户型,比较安静。2、5-8、10栋两梯四户,139平方-177平方面积段。5-8栋靠近沙河西路,东南部分户型可看海景、沙河景观、高尔夫绿地景观但会受噪音影响。其中8栋相对安静,部分高层户型视野、景观还不错。
12、13栋两梯三户,143平方、151平方、179平方面积段。主要看园林,高层可看部分海景、高尔夫景。
相比二期楼间距大很多,但户型不是特别方正且离地铁口较远。



二期: 2004年入伙,共14栋住宅楼(4栋、13栋、14栋为会所幼儿园商铺配套),约1048户。

主力户型有82-88平方两房、109-122平方三房、146-181平方四房,与一期一样顶楼多为复式。
1-3栋两梯四户,2栋、3栋东南户型朝花园最佳,面积段为110-118平方三房。5-12栋、15-17栋均为两梯三户,面积段为82-88平方两房、113-118平方三房、146-181平方四房。
由于邻近2号线科苑站,又是带社区的刚需户型为主流,成交相对比一期活跃。



海怡东方花园: 2005年入伙,共13栋住宅(无4、13、14栋),约813户。

主力户型有74-83平两房、93-133平三房、146-156平四房。
1-3、5-6栋为两梯五户,面积段为:74-83平方两房、93平方三房、112-115平方三房、127平方三房。
7-9栋为两梯两户,面积段为:146平方四房。
10-12栋、15-16栋为两梯三户,面积段为:119-122平方三房。
特点:社区大环境不错,车位不足。







海阔天空雅居: 2006年入伙,共7栋约687户。

主力户型77-79平方两房、115-131平方三房、144平方四房,朝向都是南北通透,热门户型是131平3房,户型方正实用,赠送较大的入户花园。
A-D栋均为两梯三户,主要为117平方三房、125平方三房、131平方三房、146平方四房。
E-G栋均为两梯四户,77-79平方两房、115平方三房、131平方三房。其中77-79平方两房仅在E栋有。
特点:离地铁站最近。与科苑小学、高新中学隔一条马路,如果是接送需要过马路有些家长会有顾虑。







恒立听海: 2006年入伙,共有9栋589户。

主力户型是62-78平方左右的两房(可改小三房)、106-122平方的三房。
除了三栋是两梯六户,其他栋两梯四户。以小户型为主,除挨着科苑南路的户型外,大部分户型较安静,住家氛围不错,刚需入门置业较多;出门就是小学,与科技公园一路之隔。
特点:小户型多,小区赠送多,户户带入户花园,成交也比较活跃。



品质改善盘
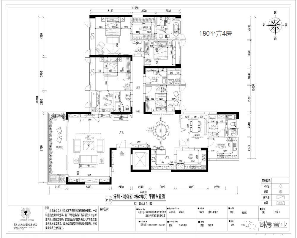
珑御府: 2015年入伙,共2栋4个单元约380户。

主力户型为180平方、243平方大户型为主。一栋两梯两户,二栋三梯两户,户型高层部分户型看海景,为整个学区最新住宅,有一半以上是双证。 户户带大阳台,高层可以看海景,赠送面积多。
特点:相对南部海景房,不受滨海大道影响更安静。小区花园小,社区小,距离地铁略远,海景一般。


浪琴半岛: 2008年入伙纯大户型花园社区,由3栋高层住宅及1栋带下沉广场的独立商业组成,还有8套别墅。共计318户。

主力户型为175-179平四房、251平方五房、370平方,均方正实用,阳台多,通透性非常好。
其中1、2栋全是双证户型,两梯四户;3栋是单证,两梯两户。
特点:户型不错赠送多,有海景景观,1-2栋为双证户型,流通性不高。靠近滨海大道相对比较吵。


岸芷汀兰: 2011年入伙花园小区。小区由2栋共5个单元高层组成,共计305户。

主力户型有83-92平方两房、117-132平方三房、140-173平方三房以及200-260平方复式,基本都是南/东南/西南朝向。
每个单元都是两梯三户,中高层几乎所有户型都能看深圳湾海景,C栋户型还能看沙河高尔夫景观,视野一流,车位比1:1.4,赠送面积大。
特点:小区新,高层户户看海,靠近滨海大道相对比较吵。


总结
以上就是南外高新中学楼盘介绍。总结如下:
1.如果只考虑学位上车,可选择滨福世纪广场。同时南二外的上车选择会更丰富,可以对比。南山藏了一所宝藏学校?南山顶流南二外海德深度解读!
2.如果你喜欢大花园大社区,强调居住舒适度,可以选择:阳光带海滨城一二期、海怡东方花园、海阔天空雅居、恒立听海。
3.如果你想要兼顾学位,又想住大户型看海景不介意噪音可以选择:京武浪琴半岛、岸芷汀兰、纯海岸雅居、浅水湾。
4.如果想要考虑又新又安静,品质改善类型,只能选择:珑御府。
记得持续关注,也欢迎与我多交流,下期将为大家带来更多讲解,如果本篇文章对你有帮助还请收藏转发点赞评论:)
