通州台湖地区,是目前北京5-6环之间价格洼地最明显的区域。
目前在售项目大部分都是限竞房,且价格是相对实惠的。


本次台湖项目核心特点:
①项目1.5公里距离内双地铁围绕:17号线及亦庄线,直达CBD和宋家庄交通枢纽
②周边配套齐全,2公里范围内有多个公园、商业、医院及学校
③中明月听澜属于纯商品房,价格稍高5.6-6万,品质相对更高一些,万科东望属于限竞房价格在5-5.2万,低总价更容易上车
④项目户型设计很实用,超大面宽采光充足,个空间布局合理
⑤由绿城和万科大开发商开发,项目品质及物业都有保障
下面是项目具体信息:
【1】
绿城明月听澜
距17号线及亦庄线换乘站700米
总价680万起

交通:三纵三横路网交通,四条地铁轨道交通,项目距离17号线700米,6站直达CBD国贸。
环境:项目周边十大湿地公园环绕,东石公园、站前湿地公园、通明湖公园、台湖万亩游憩园。
商业:项目配套北侧约800米万科时光里、南侧紧邻两站一街规划大型商业综合配套、开车或坐地铁20分钟内可达亦庄沃尔玛山姆会员店、大足广场、力宝广场、城乡世纪广场、通州万达广场、朝阳合生汇等。
教育:项目南侧约2000米是十二年制景山学校(在建),社区西侧一路之隔本身配建幼儿园,幼儿园旁边是9年义务教育用地、台湖镇中心小学。
医疗:项目南侧约2000米规划有四块综合三甲医疗集中用地,驱车20分钟现有亦庄同仁医院、北京振国中西医结合肿瘤医院、东直门医院东区、安贞医院及友谊医院通州院区。

【基本信息】
交房时间:预计2023年9月
交房标准:全系精装,新风,中央空调
供暖:集中供暖,地暖
物业:绿城自持
物业费:5.68/元
车位比:1:1.2
层高:2.95-3-3.15米
容积率:2.0
绿化率:30%
【项目卖点】
三纵三横路网交通,四条地铁轨道交通,17号线6站直达CBD国贸
高品质精装修,层高区域内最高,新风系统、中央空调,绿城物业5G服务
品牌价值,绿城中国全国十大房企久居高位,连续10年全国业主调查幸福指数第一房企,区域内极少不限价商品房住宅
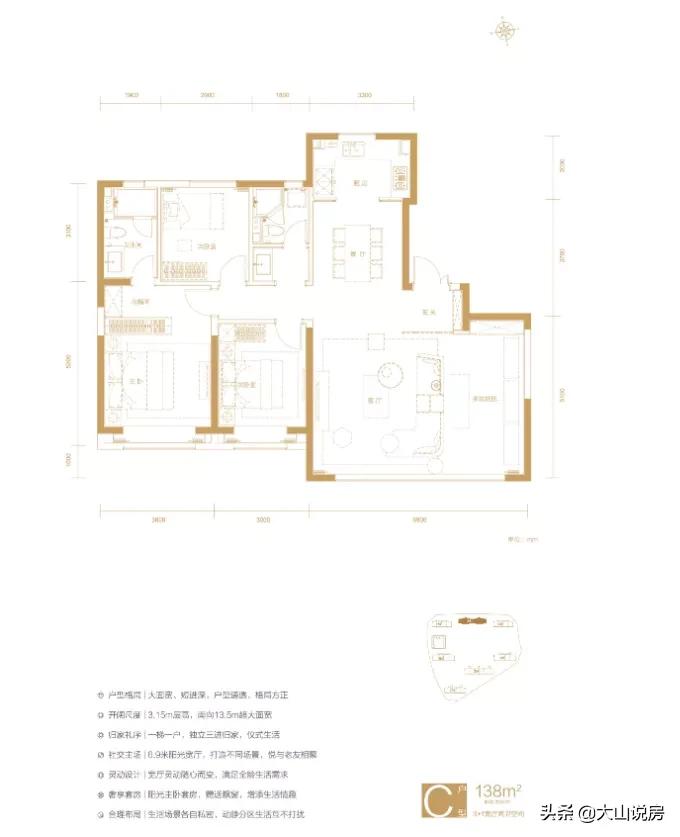
超值户型,96平米三面宽双卫设计,2.95米层高;120平米多功能三面宽四居设计,3米层高;138㎡宽阔三面宽舒适三居,3.15米层高
120平紧凑四居,总价680万左右

138平四面宽四居,总价790万左右

【2】
万科东望城市之光
低总价小户型刚需上车盘
总价420万起


两个项目距离很近,周边配套基本共享。
【项目基本信息】
占地面积:18499㎡
总建筑面积:46248㎡
容积率:2.5
梯户:1梯2户/2梯两户
交付标准:精装
交房时间:二期2023年3月 三期2023年6月
开发商:万科房地产开发有限公司
物业:万科物业,4.85元元/㎡
【项目核心卖点】
品牌护航:万科&平安,强强联手!
大盘筑就:万科深耕台湖七载打造城市级商圈
三区利好:通州副中心、CBD外溢、亦庄新城三大板块全覆盖!
天然氧吧:五大公园环绕,坐拥北京最大湿地公园3万亩!
坐享红利:全球最大环球影城、通州副中心
全系户型:精工装修典藏系科技精装,品质社区
重点教育:景山学校旁!100%本科率
90平边户三居,总价420万起

123平方正四居,总价630万起

148平四居,总价700万起

【通州台湖项目核心信息】
【明月听澜】
均价:5.5-6万
总价:680万起
在售户型:
120㎡、138㎡ 三居到四居,精装交房
距17号线及亦庄线换乘站700米,高品质精装、绿城物业5G服务
【万科东望城市之光】
均价:4.9-5.2万
总价:420万起
在售户型:
90㎡、123㎡、145㎡,两居到四居,精装交房
万科+平安两大房企联合开发、低总价小户型刚需上车盘