港式风格是我们中国装修设计中的一种独特风格,就好比中式风格、新中式风格等。特别是在深圳,这种独特的风格,深受人们的热爱,有些人更加追求这种港式风格,从衣服穿搭,讲话方式到装修设计。
今天小编带来的是一个会让你眼睛大放异彩的色彩跳跃的港式精致风格,一起看看吧~
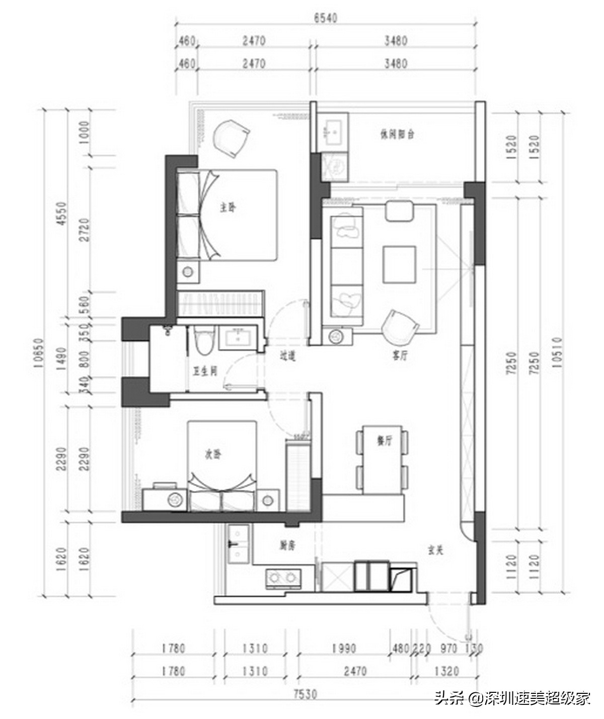
- 楼盘名称:半岛城邦
- 建筑面积:98平装修风格:港式轻奢
- 户型格局:两室一厅
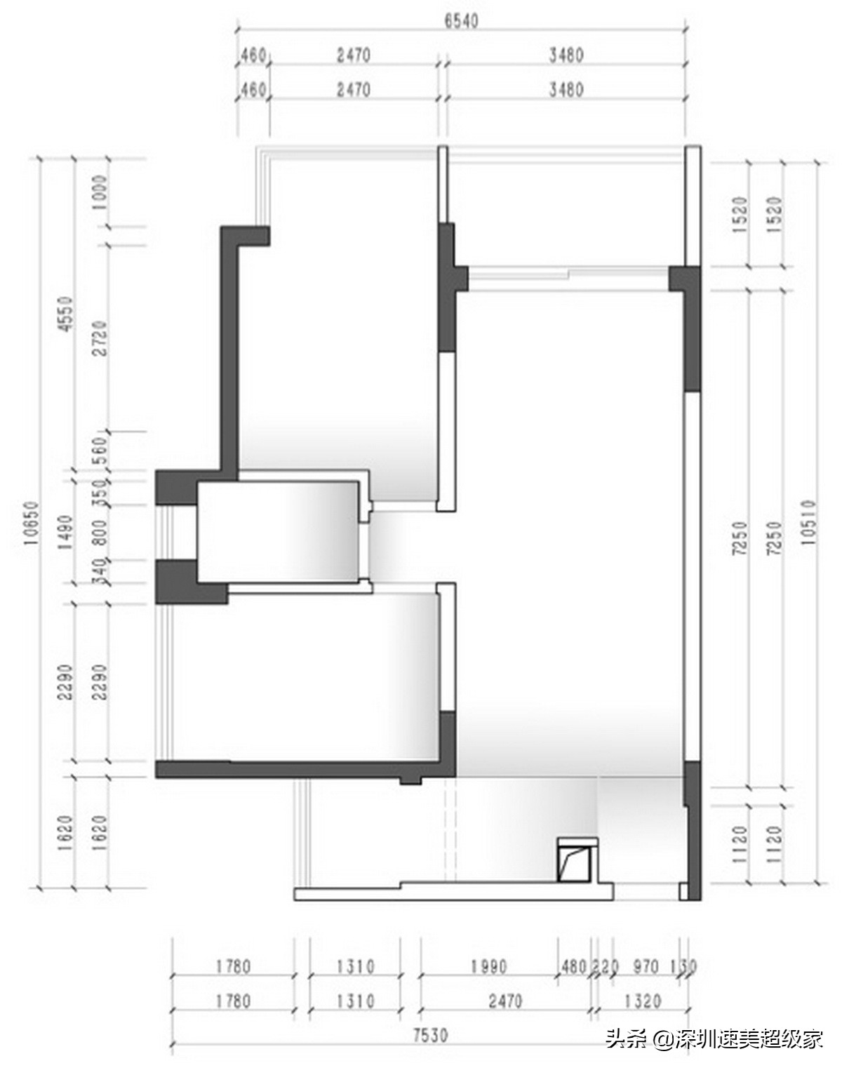
- 原 始 户 型 图 -港\式\轻\奢

- 平 面 布 置 图 -港\式\轻\奢

- 设 计 理 念 -•港\式\轻\奢
本案以初春印象为主题,去除喧嚣与繁华,回归舒适与宁静,精致而纯粹,从细节处彰显对生活的追求与享受。将高雅的质感与时尚现代相融合,打造出至精至雅、简洁大方的视觉效果。



- 效 果 图 展 示 -港\式\轻\奢
初春的气息在这个家中慢慢的散开来,在无形中添加了这个家的质感。
优雅而美好的气息,缓缓地随着桌角,毯子,摆得整整齐齐的餐具,等待被点燃的香薰蜡烛,悄悄然的漫开,在你打开门的那一霎,就可以感受到迎面扑来的一股清香~


- 效 果 图 展 示 -港\式\轻\奢
港式的时尚与金属的小精致结合在一起,有种说不出的高级感。
与现代轻奢不同,港式轻奢色彩用得十分洒脱,但是这个以“初春印象”为主题的港式精致倒是有一点较为独特的是,没有传统港式那么单一,反而十分清新跳跃。


- 效 果 图 展 示 -港\式\轻\奢
大部分装修公司给你们展示的港式风格都是黑白灰,搭配高级,但是也会有意无意给人一种“远离喧嚣,不食人间烟火”的感觉。
设计师就由此入手,打造一个年轻化,甚至可以说是温暖,有人情味的港式精致风格,大胆的用了秋冬流行的姜黄色,给空间勾勒了一抹暖意。


本案体现了深圳装修设计师以及业主对于生活的追求,享受以及热爱。对于万物,应该有自己的热忱原则,最近香港事情的大爆发,不管怎么样,希望大家都理*爱性**国,爱护自己~♥