
都市的人声鼎沸,川流不息,总会让人失了闲情逸致。回到家里,每处装饰都透露着温馨浪漫气息,享受神闲气定的悠然生活。家,既要经得起时光的历练,也要居住的很舒适。
项目地址:湖墅观止
项目面积:250平米
风格定义:法式风格设计说明
本套案例设计为法式风格,户型为联排别墅,坐北朝南。业主家是一个标准的幸福的三口之家,性格直爽,喜欢明亮欢快的色调。户型优点是采光、通风良好,户型规整。缺点是厨房较小,阳台利用率低。针对此不足,本案设计将后院的小阳台扩到室内增加一个西厨,这样不仅利用了阳台面积,还扩大了厨房的使用面积,做成中西分厨,形成一个完整的厨房空间。
法式风格,延续了历史的古典文化与浪漫情怀,承接了现代的实用需求与时尚大方,强调以华丽的装饰、浓烈的色彩、精美的造型达到低调奢华的装饰效果。整体营造了一个奢华、惬意、和浪漫的家庭环境。
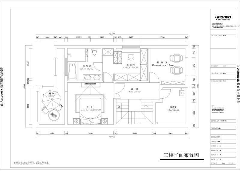
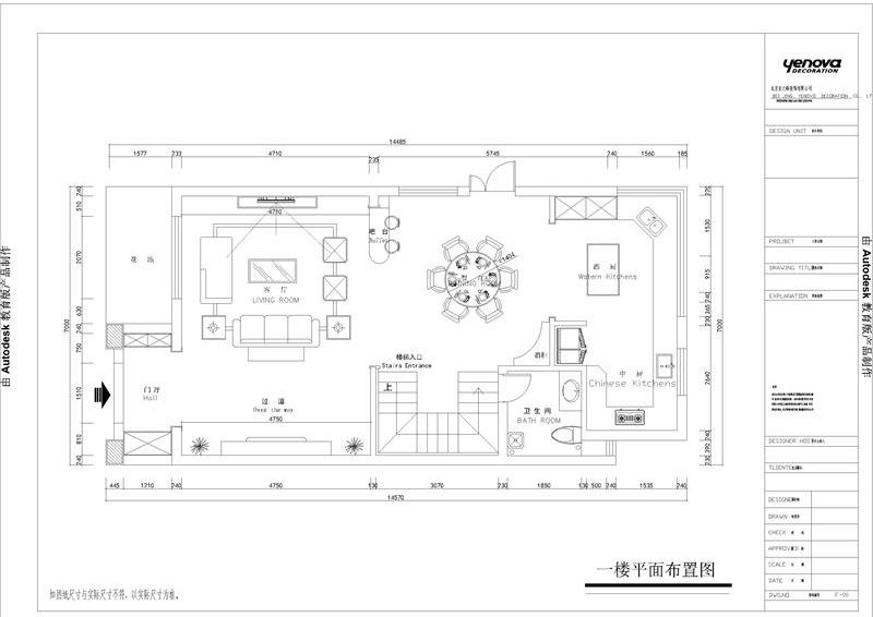
平面设计图



客餐厅效果

楼客厅采用石材和护墙板饰面,整体以米白色为主,点缀些许的蓝色,使整个空间充满欢快的气息。方案的出彩点在于挑空的二楼被现浇成一个房间,但是与一楼相同的部分开了一个弧形窗,既增加了采光又添加了一丝趣味与互动,使氛围更加生动活泼。
客厅效果

客餐厅打造的通透空间,不仅在空间规划上满分,并且空间视觉塑造得也极好。客厅采用太妃糖一般的线条做装饰,温暖优雅,百看不厌。局部采用耀眼的金色作为点缀,在宁静的氛围中,给人以热情和积极向上的学习动力。
餐厅效果

温馨的灯光照明设计下,闪耀的金色水晶灯,凸显了温馨、浪漫的用餐环境。餐厅设计采用简洁的线条,不做过多装饰,原木餐桌搭配上碎花的布艺餐椅,坐在这里享受亲自下厨烹制的食物,总是那么的放松和舒心。这是一家人最其乐融融的时刻,也是餐厅最大的魅力所在。
厨房效果

厨房设计为开放式厨房,女主人在厨房为家人准备餐点的时候也能和家人互动而不封闭。厨房整体采用蓝灰色,精致而高雅,让女主人能在为家人忙碌的时候心情愉悦。
主卧室效果图

灯光与日光的完美配合,随着昼夜的变化呈现出不一样的韵味,让空间尽显高雅之意,同时也为空间增添了一份通透感,让人安心地在此体会岁月静好的曼妙。看看窗外的湖景,惬意的感受着时间的变化,安安静静地享受生活的时光。

人间4月天,最是装修好时节,喜欢本套案例就收藏吧,加微信18627978382 详聊哦(限武汉地区)