

权威发布、重大政策,淮安大事、小情,你想聊的都有!


南门尚城项目建设工程设计方案(调整)批前公示
江苏威如房地产开发有限公司建设的南门尚城项目位于解放西路北侧、勤政路两侧。该项目总用地面积约146911.7平方米,原方案于2013年3月20日审定。现建设单位申请对原方案进行调整,调整后方案总建筑面积约491416.62平方米,其中计容面积440294.55平方米,容积率为3.0,建筑密度为31.0%,绿地率为30.0%,具体详见方案总平面图。现通过项目现场、淮海晚报和淮安市自然资源和规划局网站(http://zrzy.jiangsu.gov.cn/ha/)对该项目的调整方案进行批前公示,公示时间从2021年5月17日至2021年5月28日。
如果对该调整方案有意见或建议,请于2021年5月28日前工作时间内,以书面形式反馈至淮安市自然资源和规划局,或者向淮安市自然资源和规划局政策法规处提出听证申请。
联系人:严克逊 联系电话:89000931
涂 莎 联系电话:89000662
联系地址:淮安市厦门路6号
邮 编:223001
附:南门尚城项目方案总平面图(调整前及调整后)
淮安市自然资源和规划局
2021年5月17日




泓著大观花苑项目管线综合方案批前公示
淮安弘通房地产有限公司申报的泓著大观花苑项目位于淮安生态文旅区乐善路西侧、顺宁路南侧。现建设单位结合各管线单位意见,进行了管线综合方案设计。(详见所附的室外管线综合总平面图)
现对该项目管线综合方案进行批前公示,公示时间为2021年5月14日至2021年5月23日,将通过淮安规划馆、项目现场和局网站进行公示。相关权益人若有意见,请于公示期间工作时间内以书面形式反馈至淮安市自然资源和规划局,或者向局法规处提出听证申请。
联系人:朱玉洁 张舒
联系电话:0517-89223287
联系地址:淮安市福地路1号四馆办公楼403室
听证申请:淮安市自然资源和规划局法规处
联系人:涂莎
联系电话:0517-83660127
局网站:http://zrzy.jiangsu.gov.cn/ha/
淮安市自然资源和规划局
2021年5月14 日




法兰郡项目建设工程设计调整方案批前公示
该项目位于北京南路东侧、枚乘路北侧,原项目用地面积约204亩,后经建设单位申请退地,现该项目用地面积约52亩。现为满足居住地块容积率不低于1.0及公共用房配建要求,建设单位对保留地块向我局提出方案调整申请,具体调整内容如下:
1.在保留地块的北侧空地位置新建两栋9层住宅建筑;
2.原1#开关站扩建成三层,布置有社区办公用房、配电房、物管用房等公共用房;
3.因消防及供水部门要求,原布置在地下空间的消防控制室及生活水泵房调整至55#楼东侧,面积合计65.34平方米。
调整后的方案总用地面积约34748.60平方米,总建筑面积约60167.11平方米,地块容积率为1.15,建筑密度为31.17%,绿地率为30.50%,具体详见调整方案总平面图。现通过项目现场、淮安日报和淮安市自然资源和规划局网(http://zrzy.jiangsu.gov.cn/ha/)对该项目调整方案进行批前公示,公示时间从2021年5月14日至2021年5月27日。
如果对该方案有意见或建议,请于2021年5月27日前工作时间内,以书面形式反馈至淮安市自然资源和规划局清江浦分局,或者向我局法规处提出听证申请。
联系人:范兆娟 联系电话:89000715
涂 莎 联系电话:89000662
联系地址:淮安市自然资源和规划局清江浦分局
邮 编:223001
附:法兰郡预留地块项目建设工程设计调整方案总平面图
淮安市自然资源和规划局
2021年5月12日




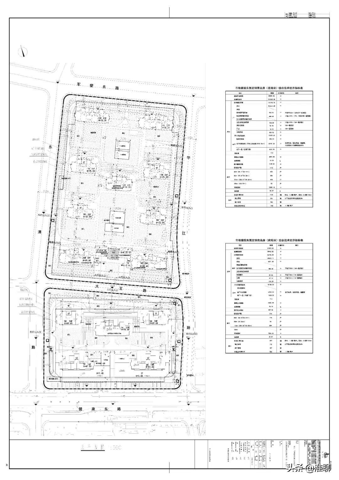
淮安市检察院东侧地块(南地块、北地块)建设工程设计方案批前公示
淮安市保障性住房建设有限公司向我局申报淮安市检察院东侧地块(南地块、北地块)建设工程建筑设计方案及管线综合设计方案。该项目位于健康东路北侧、规划东清路东侧。南地块项目用地面积为21493平方米,总建筑面积约73942.82平方米,容积率为2.6,建筑密度为26.16%,绿地率为35.07%;北地块项目用地面积为38007平方米,总建筑面积约147630.28平方米,容积率为2.9,建筑密度为18.09%,绿地率为35.07%;管线综合包括给水、消防、雨水、污水、电力、电信、燃气等。具体详见淮安市检察院东侧地块(南地块、北地块)建设工程建筑设计方案总平面图及管线综合图。现通过项目现场、淮安日报和淮安市自然资源和规划局网站(http://zrzy.jiangsu.gov.cn/ha/)对该项目进行批前公示,公示时间从2021年5月11日至2021年5月24日。
如果对该方案有意见或建议,请于2021年5月24日前工作时间内,以书面形式反馈至淮安市自然资源和规划局清江浦分局,或者向市局法规处提出听证申请。
联系人:刘中亚 联系电话:89000931
涂 莎 联系电话:89000662
联系地址:淮安市自然资源和规划局清江浦分局
邮 编 :223001
附:淮安市检察院东侧地块(南地块、北地块)建设工程建筑设计方案总平面图及管线综合图。
淮安市自然资源和规划局
2021年5月11日


来源:淮安市自然资源和规划局
免责声明:综合内容来源于网络,感谢原作者的辛苦创作,版权归原作者,淮聊不拥有所有权,不承担相关法律责任。如因作品内容涉嫌抄袭侵权/违法违规和其它问题请在7日内联系小编删除。
点关注不迷路☞@淮聊(huaian.chat) ——淮安人的“朋友圈”,聊聊淮安新鲜事!权威发布、重大政策,淮安大事小情,你想聊的都有!
