2020年7月3日,宝安区6所学校取得《建设工程规划许可证》,其中不乏未来深圳最大的公办教育集团、联合国教科文组织教师教育教席联席学校等名校,也不乏近百年校史的历史名校。
这6所学校分别是深圳外国语学校宝安学校、深圳市宝安区福新小学、深圳市宝安中学(集团)实验学校、深圳外国语学校宝安学校(小学部)、松岗东方四队小学、松岗东方四队小学、万丰小学。

1、深圳外国语学校宝安学校
该校占地面积约3.1万㎡,总建筑面积约7万㎡,容积率1.78,其中,地上建筑约4.5万㎡,包括:教学及辅助用房约2.5万㎡,办公用房约2835㎡,生活服务用房6851㎡,特色教学用房1810㎡,教师宿舍8190㎡。
地下建筑6535㎡,包括:教学及辅助用房5837㎡,办公用房163㎡,生活服务用房535㎡,


根据要求,本地块与南侧小学地块停车位统筹设计,本地块规划停车位279个,设计停车位254个,另有25个车位设置在南侧小学地块。停车位充电桩配置比例不低于30%,剩余停车位应全部预留充电设施安装条件。
该项目与新桥街道万丰城市更新规划小学同步规划建设,两学校地块共用运动操场,跨市政道路之间的地上地下连通须满足道路、人防、消防、市政管线敷设等相关要求并完善用地手续后方可实施。

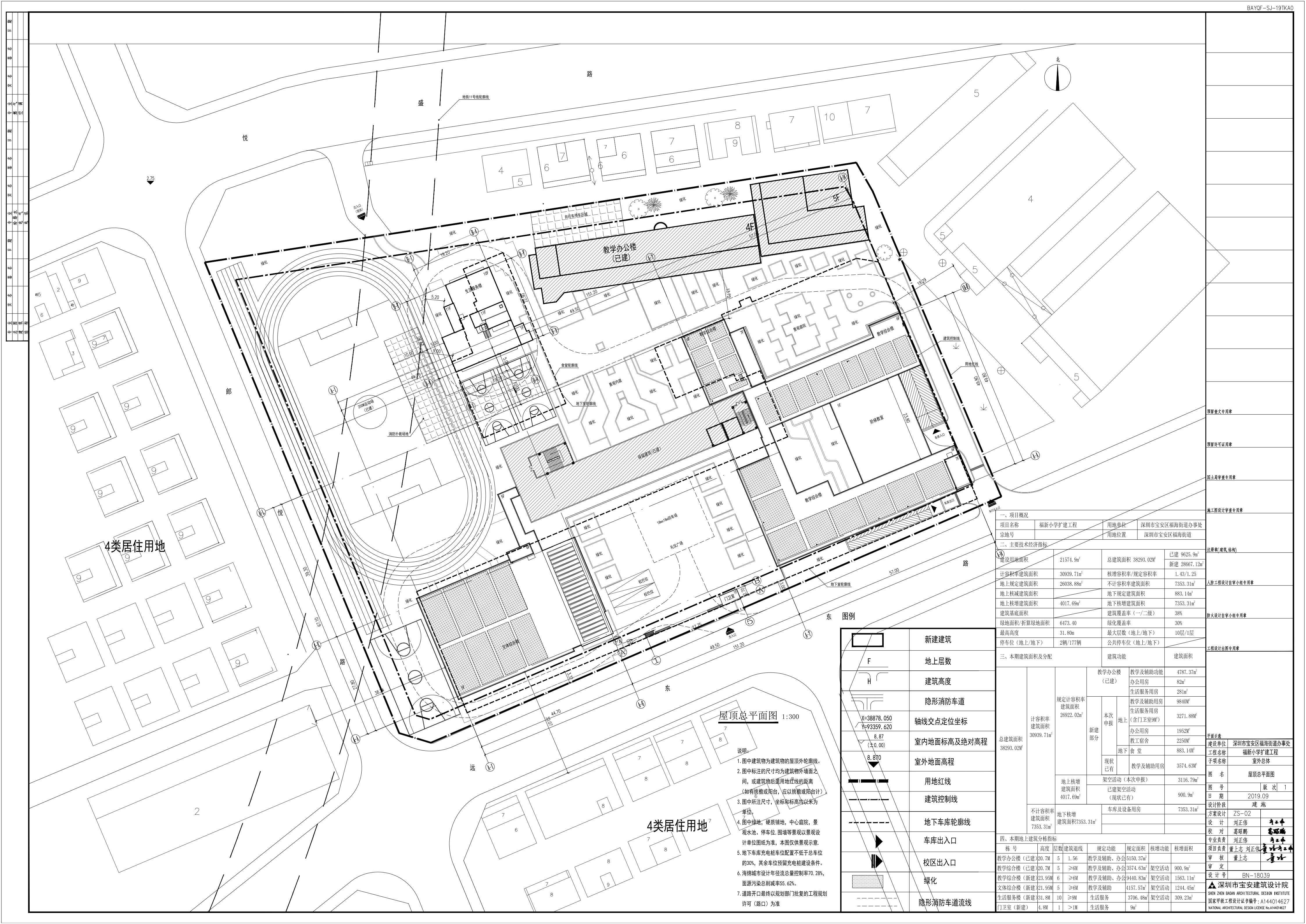
2、深圳市宝安区福新小学
该校占地面积约2.16万㎡,总建筑面积约3.83万㎡,其中已经建设9625.9㎡,新建28667.12㎡。
已建部分为教学及辅助功能建筑4787.37㎡,办公用房82㎡,生活服务用房281㎡。
新建部分为教学及辅助用房地上9180㎡,生活服务用房3271.88㎡,办公用房1952㎡,教工宿舍2250㎡,食堂883.14㎡,架空层3116.79㎡。地下核增面积7353.31㎡。



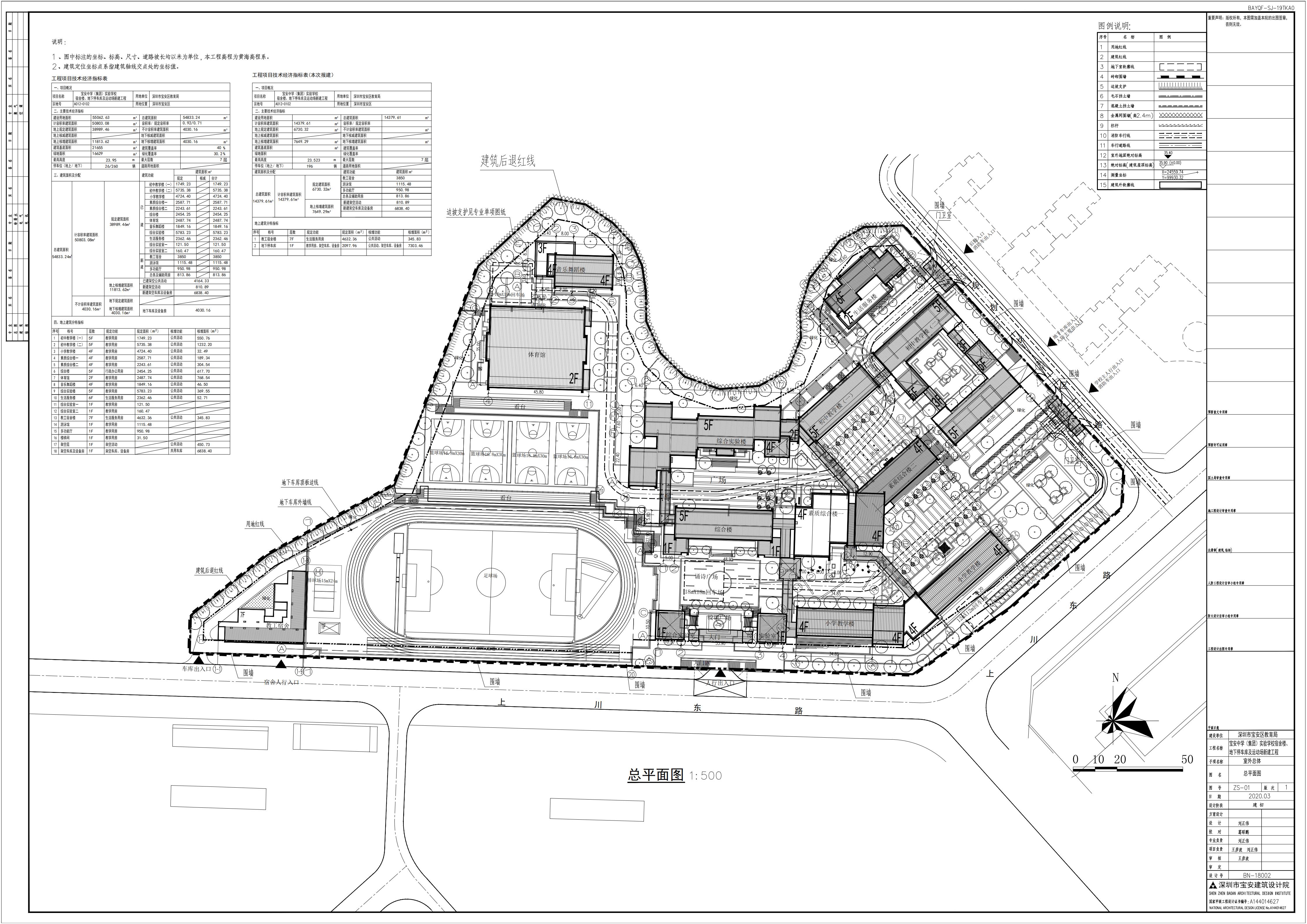
3、深圳市宝安中学(集团)实验学校
该校用地位于宝城71、72区,宗地号A012-0102。
该校建设用地约5.5万㎡,容积率0.92,总建筑面积约5.48万㎡,计容建筑面积约5.1万㎡。
其中已建初中教学楼约7500㎡,小学教学楼约4700㎡,素质综合楼约2800㎡,体育馆约2500㎡,音乐舞蹈楼约1850㎡,综合实验楼约5800㎡,生活服务楼约2400㎡,综合实验室约280㎡。
新建教工宿舍3850㎡,游泳馆约1100㎡,多功能厅约950㎡,总务及辅助用房约813㎡。
地上核增建筑面积约11813㎡,其中已建架空层约4200㎡,新建架空活动空间约810㎡,新建架空车库及设备房约6800㎡。



深圳市宝安中学成立于1984年8月,后变更为宝安中学(集团),是深圳仅有的三所北京大学“中学校长实名推荐制”推荐资质学校之一,是全国千所现代教育技术实验学校,也是联合国教科文组织教师教育教席联席学校。
2015年11月,以宝安中学为龙头组建“宝安中学(集团),集团由高中部和初中部、小学部、外国语学校、实验学校和石岩外国语学校六部组成。
宝安中学集团设计总体规模约为450个班,学生人数约21510人,在未来的规划中,它将是深圳市最大规模的公办教育集团。

4、深圳外国语学校宝安学校(小学部)
“深圳外国语学校宝安学校(小学部)”项目用地位于新桥街道,选址意见书号BA-2019-0042。
该校用地面积约1.4万㎡,总建筑面积约3.9万㎡,容积率2.37,计容建筑面积约2.8万㎡。
其中底商建筑面积约2万㎡,包括教学及辅助用房约9100㎡,办公用房1400㎡,生活服务用房约3500㎡,特色教学用房约6000㎡。
地下建筑面积约7610㎡,其中教学及辅助用房约6400㎡,办公用房约48㎡,生活服务用房约1155㎡。


5、松岗东方四队小学
项目用地位于松岗街道广深公路与东方大道交界处东南侧,选址意见书号BA-2018-0017号。
该校占地面积约6500㎡,容积率1.85,总建筑面积约1.7万㎡,计容建筑面积约1.2万㎡。
其中地上教学及教辅用房约5850㎡,办公用房约933㎡,生活服务用房约867㎡,宿舍用房约850㎡,教师微格室约182㎡。
另外,地下生活服务用房约882㎡,教辅用房约1666㎡。



6、万丰小学
“万丰小学”项目用地位于新桥街道,选址意见书号BA-2018-0078号。
万丰小学创办于1927年,1949年解放后搬迁到现校址,至今已有94年的历史。
该校占地面积约1.3万㎡,容积率1.79,总建筑面积约3.3万㎡,计容建筑面积约2.4万㎡。
其中,地上教学及教学辅助用房约1.1万㎡,行政办公用房约1451㎡,生活服务用房约2742㎡,教师宿舍约1780㎡,微格教室约182㎡,特色教学用房372㎡;地上核增建筑面积(架空绿化休闲)约2474㎡。
地下生活服务用房约437㎡,教学辅助用房约3560㎡;地下停车库约7200㎡,设备用房约1200㎡,地下一层架空绿化休闲约749㎡。

