设计师有话说:
我们在做这个案子之前一直在想,新派足浴空间应以怎样的形式表现才能颠覆传统,让人铭记?大同的世界还要继续迁就那些先入为主的观念吗?什么样的空间是真正受人喜爱的?
在反复思考与讨论中,我们决定以一个纯净和舒适、温柔且浪漫的空间激发各个年龄段的体验者,内心深处那份对生活的憧憬与享受……
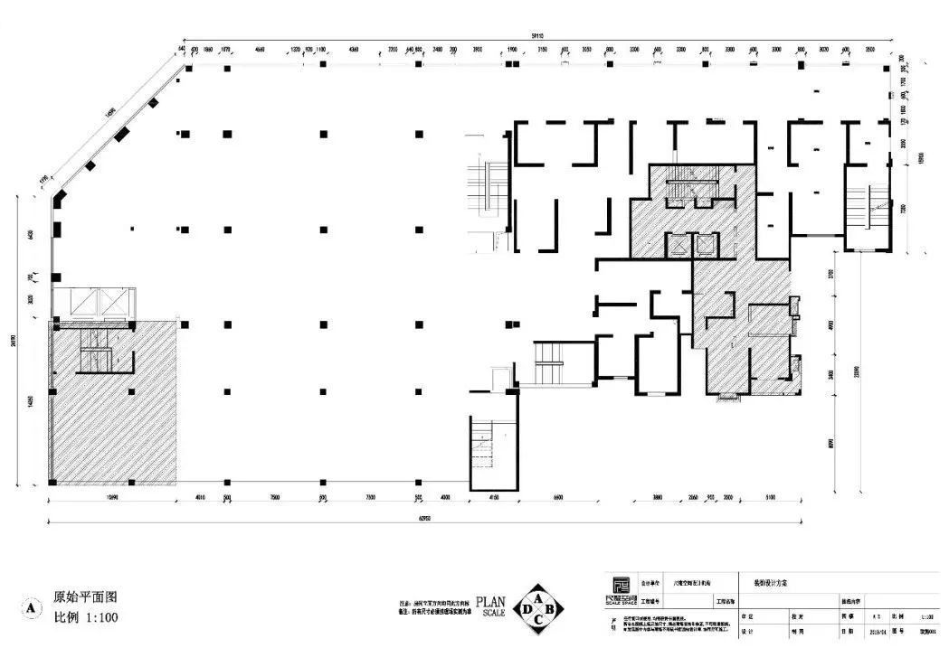
『 原始结构图 』

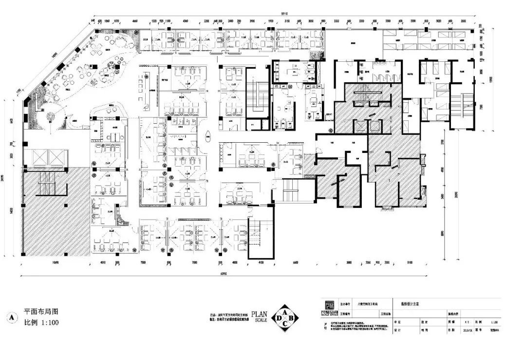
『 平面布置图 』

项目名称: 步知岛沐足馆
设计公司: 西安尺度空间艺术设计机构
位置: 中国、西安
地点:陕西省西安市凤城庭院
面积:1800㎡
主案设计:王京玮 杨华栋
软装设计师:李敏
灯光设计师:潋光
类型: 沐足、SPA
材料: 木饰面板 不锈钢 水磨石 蘑菇石 钢板 夹丝玻璃 绒布硬包

门厅作为顾客进入主体消费空间之前的过渡地带,设计师意在营造自然舒适的氛围。
除了木质主材的选择,采用借景引光的手法,利用室内的小景拉近人与自然的距离,增加顾客的好奇心。
『 休闲大厅 舒缓身心 』



甲方与设计师不喜欢传统的硬性消费场所,想让客户在这个空间更够释放自己的压力,达到完全放松的状态,慢慢的享受生活。
故而设计师利用柔和的动线设计在大厅融入多种理念,纯白的水磨石吧台搭配定制金箔画,山水意境让空间变得深邃。
格栅书架阻挡刺眼的光线,斑驳的光影让休息中的顾客更加舒适放松,此外设计师利用不同色调的灯光对休闲区的座位进行调节,还给顾客一片隐私的空间。

6米长的餐吧,为顾客提供免费的水果、咖啡......
为了避免大厅过于“矫情”,设计师特意挑选自然粗矿的板岩石为酒架,暖色的灯光下,精致的酒品,在这里,尽管慢下来,享受生活的美好。
『 不同走廊 划分主题包间 』


不同年龄段的消费者对审美的需求不同,且到店的客人分为朋友、同事等不同的关系,所以设计师利用不同的走廊风格,将包间进行划分,一方面让顾客保持视觉新鲜感,增加对店内环境的印象,另一方面不同亮度的灯光让空间慢慢暗下来,为客户的内心增加一丝过渡感,令人逐渐卸下防备,进入最佳状态。
『 打开一扇门 开启朋克养生模式 』

▲三人包·绿意
以绿色为主题,借用花草将自然引入室内,给顾客一种原生态的美感,而菱形三维质感的瓷砖,让空间在视觉上“动”起来,让顾客抛下手机,忘却世俗,仿佛处于林间,恍然听到鸟叫,静享这大自然的气息.....

▲三人包·马卡龙
跳跃的色彩,性感的画像,让人惊艳,并沉浸其中,自发自愿的进行消费。
点线渐变的灯光如吉光片羽,为客户平添意想不到的浪漫,而拼接的色块营造出空间的层次感,让顾客在技师轻重节奏的手法之外体验另样的触感与享受。

▲商务包·ceo
商务包间,需沉稳内敛,故而设计师选用新中式的手法进行诠释。
木珊栏吊顶让空间得以延伸,简约的中式玻璃屏风及圆景造型,在线与光的营造下从容而淡定,让东方美学意韵融满整个空间,为体验者营造出空与静的深邃感。

▲四人包·黑金
黑、金色将空间一分为二。
黑色区域深邃、神秘、令人遐想。
金色区域为顾客带来至高无上的体验感,此外,为避免空间过于冷清,设计师特意增加金属、羽毛、玩偶摆件等具有轻奢质感的装饰物,以提高客户的体验感。
软装细节展示:








设计师简介
杨华栋
毕业院校:陕西建筑职工大学
设计理念:白玉映沙,返璞归真
设计专长:住宅、别墅、酒店,餐饮,办公等
设计风格:中式,美式,轻奢等
王京玮
西安尺度空间艺术设计创始人/设计总监
2008年毕业于西安建筑科技大学
国家注册室内设计师
香港室内设计师协会专业会员
清华大学软装与陈列设计(研修)