看多了国内的装修案例,那么我们这次来点不一样的。这是位于加拿大的一套小别墅,面积有两百平左右,如果只是这样,那也就不值得分享了。不过,业主她家确实有一个不一样的地方,那就是她们在别墅的外墙搭建了一个“黑盒子”,从而延伸了住宅的室内面积,由此多出了间阳台和厨房,不得不感慨真是太聪明了。秉持着学以致用的理念,我们不妨来看看效果怎么样,毕竟对于寸土寸金的房价来说,如果我们能够利用的好,说不定也是一大提高空间利用率的神器!

话不多说,先来看具体效果。这个就是业主家搭建的黑盒子外形,分为上下两层,上层是二楼的卧室阳台,下层是扩充的厨房,两个效果看起来都不错,不仅多出了一定的面积,还特别美观时尚。

而黑盒子的后面则是由草坪组成的院子,空间还蛮大。


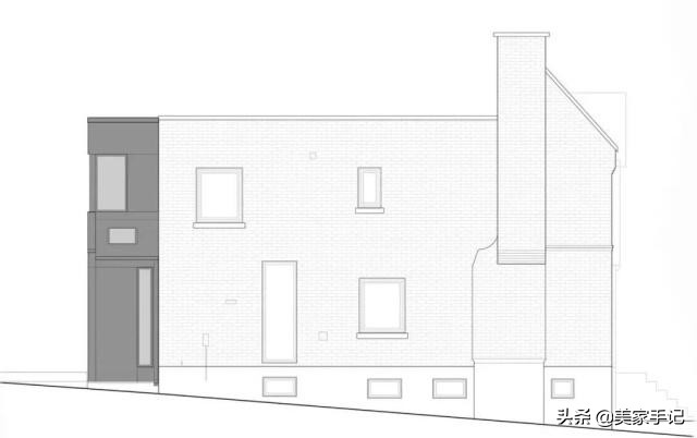
这个是房子立面图,黑盒子的侧面视角和正面视角都有,可以发现开了不少窗,从而让房子显得更加立体通透高级。

现在来看具体的效果。地面采用了工字型方法铺了不少偏暗沉的灰色地砖,加上木顶和硬朗线条勾勒而成的黑盒子,整体看着很大方。本来,这里一般都是直接作为露台的,但是业主她选择了舍弃,因为这样的效果不是露台却胜似露台,很实用!

而扩充的区域则是厨房空间,因为中间有个大大的中岛操作台,这样设计反而更显大气。

另外,中岛还延伸出了一个类似餐桌一样的休闲吧台,在这里聚会、办公、休憩都可以得到很好的满足。

当然,在设计上,配色也是一大亮点,墙面以白色为主,干净纯粹显空间,而地面则是灰色为主,稳重时尚,加上木色的温润如玉,相信待在这里会是一大享受。

另一面主要是黑盒子扩充的区域,表面用木饰面一样的结构作区分,并且开了天井,这样光线更好。不过个人最喜欢的还是高大的落地窗,视野风景俱佳,是个不可多得的休闲场所。

换一个视角,原室内面积和黑盒子扩充的面积很好的用白色和木色分隔开来了,但效果并不突兀。

角落里,也就是白色操作台和橱柜的右边,搭建了一个木质桌子,不管是用来放置作料或作为其他储物空间都是可以的。

至于中岛的后面,也就是图片的右边则是餐厅了,样式也不错。对面的话,则全是玻璃结构,效果非常通透。

站在这个夹角区域,可以清楚看到厨房和餐厅,用了不同的地面装饰材料区分开来了,前者是灰色地砖,后者是木色地板,且刚好一个湿区一个干区,这样设计正好。

再一个就是黑盒子的玻璃窗,采用了三合页的折叠门,效果显得挺时尚。而地面则还有不少碎石,搭配的挺好。

来到二楼,这个是主卧,可以看到对面的阳台区域,本来这里是没有的,但是搭建了个黑盒子后,这些问题通通解决。

另外,考虑到隐私,业主有在顶面开槽做窗帘轨道,这样效果就变得更加完美了,至于左边是主卫。

我们可以来看具体效果,看看加拿大的卫生间和我们有什么不同。同样,左边是玻璃淋浴房,右边是洗漱台,对面则是马桶和浴缸区域,各个功能区都有,并且装饰效果都不错,非常大方。


最后,让我们再次把视野拉回到这个黑盒子的整体效果上来,这个外表非常时尚,加上温黄的灯火,真的是太通透太有家的感觉了。


另外再补充一下两张平面图,有需要的不妨可以参考下。好了,以上就是这套国外案例的具体装修效果了,可以说在别墅外墙搭建这个么黑盒子还真是奇思妙想,不仅扩充了面积,效果还特别漂亮,希望大家喜欢,谢谢啦!