专业的空间设计方能成就完美的口腔医疗空间。
让口腔医疗空间在功能上更加专业系统,在空间设计上更加温暖贴心,同时揉入品牌人文,传递信任,予人希望。
此次项目的空间户型和梁点结构相对没有那么规整,局限性大,所以客户的设计需求是要充分利用空间,通过设计构筑一个充满自然人文的现代口腔健康休闲空间。
01 空间照片分享
外立面

华南摩尔口腔门诊坐落在东莞万江中心的华南Mall,设计师希望在城市中心呈现一个自然舒适的现代口腔健康中心,让口腔问诊,就像逛街一样轻松舒适。
所以,设计师从自然中汲取灵感,以“绿叶”为设计主题,采用绿色、树叶、植物等元素,传递华南摩尔口腔绿色健康的人文理念,打造一个以人为本,绿色清新的口腔诊所,满足人们对现代口腔医疗健康的多元需求。
前厅&过道


设计师将等候区与前厅设计在一起,让整个空间更通透开阔,同时采用清新的绿色和自然的格栅元素,让整个空间就像沐浴在自然的春风里,自然舒适的同时让整个空间更具有延展性和艺术观赏性。
诊疗室


诊疗空间,使用了更为丰富温暖的绿色,自然温润的原木材质和温软的皮革座椅,让整个空间更显自然温暖,舒适亲切。
除了通过色彩和材质呈现自然舒适的诊疗空间氛围之外,诊疗室的柜体也是从专业医疗空间的设计与使用出发,打破传统医疗柜体材质、设计单一的选择,考虑医护使用习惯,专业定制匹配亚洲人体使用习惯的医疗柜体,兼顾视觉审美与专业医疗需求,为医护人员减少弯腰等大幅度动作,提高诊疗效率,让医护感受设计带来的舒适与便捷。
办公空间

办公空间除了清浅的绿色,还加入温润的木质柜体,点缀金属线条装饰,用华丽的细节为办公室增添质感,让整个办公空间既显温暖大气又不失品味。
为了合理规划空间,设计师将户型方正,采光较好的空间用于诊疗区的设置,办公空间的采光相对弱些,所以设计师在灯光上做了专业调整,选用接近自然光的4000k灯光色温,打破传统医疗空间昏暗或刺目的白炽光,让整个诊所就像曝露在自然中一样,十分舒适。
02 设计资料分享

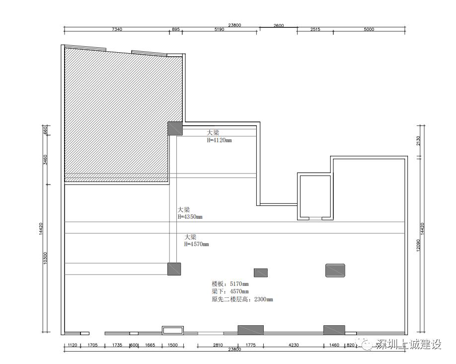
一楼原始平面图

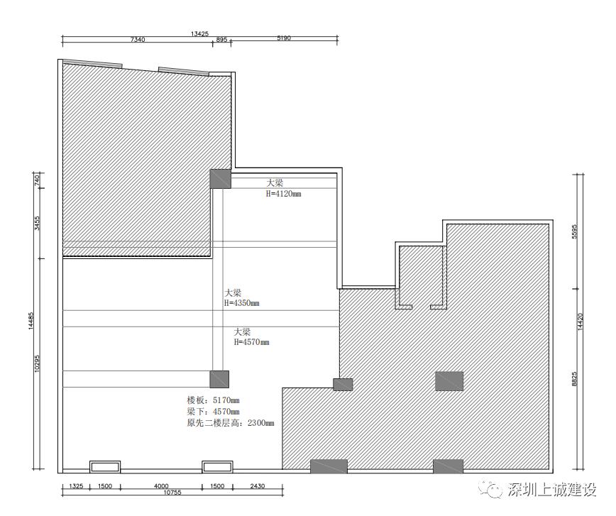
二楼原始平面图

一楼平面布置图

二楼平面布置图
为了规避原始空间梁点柱子的影响,设计师对整体功能系统、动线做了专业的规划,将诊疗区和行政功能区做了区分,一层作为接待、门诊使用,二楼分为行政办公区和消毒供应区,让医护动动线与就诊动线更清晰便捷;并在两处梁点较低处设计了分段楼梯,分别通向楼上医护人员办公区和洗消供空间,使医护人员上下楼更加通畅的同时提高诊所的诊疗服务效率。


项目设备对接单

我们本次设计用到的物料
整个空间以“绿色、健康”,作为设计理念,用材也主要以绿色环保、可持续发展的材料为主,从内到外、从上至下,大理石砖、铝板,生态漆,吸音板等材料的使用,让这个空间保持绝对的绿色与健康。



左右滑动查看更多图片
上诚专业管理系统

上诚服务特色:科学管理、把控细节、按时交付
03 要点总结
1.梁点太低,导致二楼层高较低,而且部分梁点过低,严重影响员工上楼办公。
解决方案:在梁点较低处设计分段楼梯,确保人员上下楼梯的通畅与便捷;同时通过设计裸顶天花以及设计楼板搭建方案,降低楼板厚度,从而增加二楼层高使用高度,让二楼办公空间更开阔舒适,保证医护人员拥有轻松舒缓的情绪,提高办公效率。
2.由于双方没有针对医院的需求进行深入的沟通,导致前期频繁修改图纸。
改进方案:在每个项目开始前,设计师必须提前了解客户的需求,针对客户诊所的经营战略与医护专业使用需求,双方进行深入的沟通,明确客户的需求点,提出专业的设计方案,避免再次出现反复修改的情况。
随着口腔医疗行业的发展,人们对于口腔医疗健康的需求从单纯的治疗转向追求健康和美。所以口腔医疗空间的设计需求也会更加关注功能的专业性,以及空间传递的温度与人文体验。为此,深圳上诚一直努力着,为口腔医疗行业提供一体化空间整合服务,为口腔医疗行业发展赋能!
项目信息
项目名称 ᅵ 华南摩尔口腔诊所
项目性质 ᅵ 医疗空间
项目地址 ᅵ 广东东莞
项目面积 ᅵ 425m²
硬装设计 ᅵ 翟菊娟
软装设计 ᅵ 武倩冰
EPC总承包 ᅵ 深圳上诚建设有限公司
弱电智能化 ᅵ 杨平
给排水工程 ᅵ 肖金飞
电气工程 ᅵ 张兆亨
VI设计 ᅵ 深圳上诚设计有限公司
医疗柜体 ᅵ 深圳上诚医疗设备有限公司
竣工时间 ᅵ 2020年10月
装饰风格 ᅵ 现代时尚
End
About us:

深圳上诚总部位于设计之都深圳,并于2020年在杭州设立分公司。公司目前拥有一支年轻富有创意的研发设计团队与品牌策划团队,旨在为口腔医疗行业提供一站式品牌全案设计服务。
深圳上诚经过12年的发展,已经形成以口腔医疗空间设计为核心,下设品牌设计、硬装设计、软装设计、医疗柜体专项设计、工程施工服务等主要服务,目的是围绕口腔医疗行业展开全产业链覆盖,为口腔医疗行业赋能,推动口腔行业标准化、规范化发展,让口腔医疗品牌价值得以提升。
目前公司已为众多医疗机构提供服务,已打造上海新浦口腔医院、深圳侨城菲诺口腔、杭州老年口腔医院、广州美伦口腔医院、杭州萧山牙科医院、杭州儿童口腔医院、义乌牙科医院、义乌儿童口腔医院等知名口腔医疗单位,设计总面积超过50万平米,是我国口腔医疗品牌服务的引领者。
