宅基地靠近街道是一个得天独厚的优势,路边地理位置优越,人流量大,客源多,如果不建商住两用房可太浪费了。这时有人问了,商住两用房不知道怎么设计啊,应该很贵吧。
别担心,今天小宅给大家推荐10套商住两用别墅,临街别墅这样建,不到一年,建房成本轻松收回,喜欢的朋友千万不要错过!

户型一
占地尺寸:14.2m × 12.5m
占地面积:152.92㎡
建筑面积:302.53㎡
建筑高度:9.88m
建筑结构:框架结构
建筑情况:设5室 1厅 3卫 1厨 2衣帽间 1储藏室 1超市 1露台
动态图:

平面布局图:


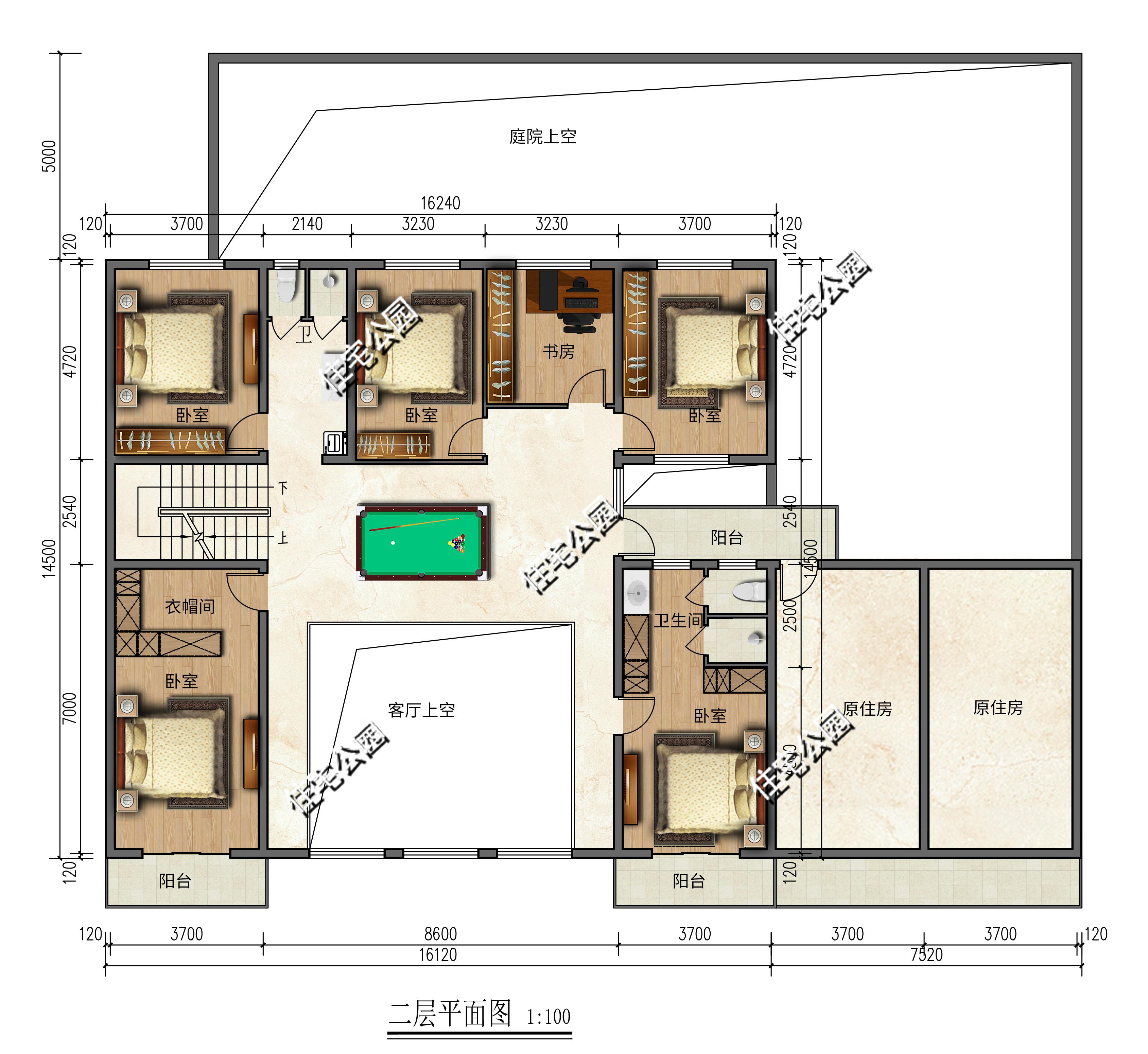
户型二
占地尺寸:16.24m × 14.5m
占地面积:226.97㎡
建筑面积:440.39㎡
建筑高度:10.868m
建筑结构:框架结构
建筑情况:设9室 1餐厅 4卫 1厨 1客厅 1休闲厅 3阳台

动态图:

平面布局图:


户型三
占地尺寸:20m × 8.5m
占地面积:184㎡
建筑面积:332㎡
建筑高度:7.55m
建筑结构:框架结构
建筑情况:设商铺 1洗衣房 2厨房 1餐厅 6卧室 3卫生间 1大客厅 3露台

动态图:

平面布局图:


户型四
占地尺寸:16.1m × 11.7m
占地面积:188.3㎡
建筑面积:380.9㎡
结构形式:框架结构
建筑情况:设3室 2厅 4卫 1厨 1商铺 1堂屋 1休闲区 1储物间 1娱乐健身区 1阳台 1露台

动态图:

平面布局图:


户型五
占地尺寸:14.4m × 20m
占地面积:303㎡
建筑面积:849㎡
建筑高度:13.8m
建筑结构:框架结构
建筑情况:设8室 3厅 8卫 1厨房 1门面 车库 1电梯 1茶区 1书房 1洗衣房 1内阳台 1活动室 1露台

动态图:

平面布局图:



户型六
占地尺寸:13.5m × 18.3m
占地面积:247㎡
建筑面积:566㎡
建筑高度:10.5m
建筑结构:框架结构
建筑情况:设6室 3厅 5卫 1厨房 1商铺 1娱乐室 1衣帽间 1棋牌室 2露台 3阳台

动态图:

平面布局图:



户型七
占地尺寸:12m × 16.1m
占地面积:186㎡
建筑面积:517㎡
建筑高度:10.55m
建筑结构:框架结构
建筑情况:设4室 2厅 5卫 1厨 1棋牌室 1玄关 1衣帽间 1活动室 5阳台 1露台 2储藏间 1商铺

动态图:

平面布局图:



户型八
占地尺寸:11.84m × 19.84m
占地面积:240㎡
建筑面积:576㎡
建筑高度:14.2m
建筑结构:框架结构
建筑情况:设6室 4厅 7卫 1厨 1餐厅 1茶室 1棋牌室 2书房

动态图:

平面布局图:



户型九
占地尺寸:9m × 19.3m
占地面积:175㎡
建筑面积:415㎡
建筑高度:12.95m
建筑结构:框架结构
建筑情况:设4室 2厅 3卫 1厨 1车库 1储物间 1商铺 1茶室 2阳台 1休闲区 1衣帽间 1露台 1内花园

动态图:

平面布局图:



户型十
占地尺寸:12m × 18.1m
占地面积:224㎡
建筑面积:792㎡
建筑高度:16.4m
建筑结构:框架结构
建筑情况:设8室 4厅 6卫 2厨 2茶室 1采光井 1棋牌室 1起居室 1娱乐室 1杂物间 5阳台 1露台 1商铺 1车库

动态图:

平面布局图:




今天的分享到此结束,这10套商住两用别墅,你最喜欢哪一套?欢迎在评论区留言。
关注本号,获取更多户型信息,了解更多建房小知识。