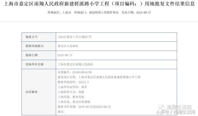
2017年3月9日,由上海市嘉定区南翔镇人民政府最新正式发文,位于银翔湖的上师大二附小(槎溪路小学)平面图进行公示!根据一般审批流程,平面图公式后,工程将很快启动,这也应和了嘉定教育局此前明确的:南翔上师大二附小将于2018年招生!


(点击可放大查看)
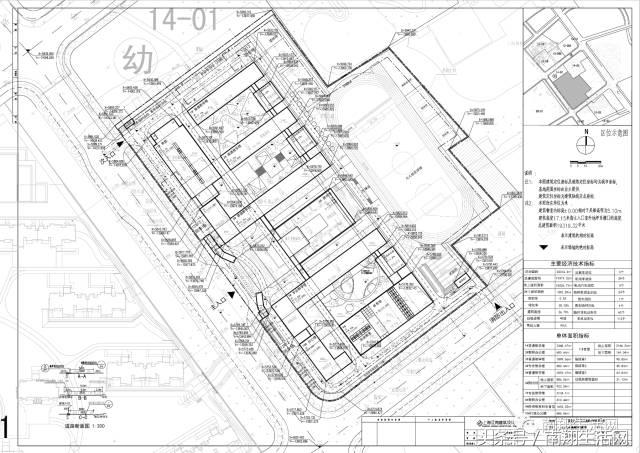
▌南翔镇槎溪路小学新建工程位于槎溪路与金迈路交汇处,用地面积35312.3平方米。地块南至金迈路,西至槎溪路,东北至用地边界。

南翔·银翔湖


具体位置如上,目前路段还是断头路状态
工程规划:40班,可容纳1600人

项目有教学楼5栋,办公楼3栋,图书馆1栋,阶梯教室&体育馆1栋,食堂一栋,门卫室3个,垃圾房1栋,地上共4层,局部地下1层,总建筑面积约19319.32平方米。学校规模为40个班级,每班40人。


上师大二附小
▌槎溪路小学,据南翔生活网此前独家了解就是上师大二附小。 【重磅】世界外国语学校嘉定校区即将入场建设 | 上师大附小落户南翔!根据此前赛朴莱茵设计公司早起设计图,该校采用一个庭院式的小学,延续一种书院传统,成为南翔地区明显区别于其他小学的设计。不过还是以最终方案为准。

人性化设计
公共部分如图书馆、剧场、风雨操场等有相对开放的气氛,办公室区围合的内院更加安静,食堂和教学楼区域的庭院兼有学生活动功能。庭院之间由两条主要的长廊连接,如此在多雨气候下,教师学生即使经常携带批改作业等也完全不会淋雨。





▌小编注意到,批准书有效期是2016/09/23至2018/09/22,据上海教育发布,上师大二附小如果18年开始招生的话,那...明年上小学的孩子们真是有福气了!
根据目前公办小学的学区划分,大家不妨可以猜测猜测了!
| 学校 | 招生区域 |
| 南翔小学 | 古猗园社区、白鹤社区、新翔社区、清漪社区、德华社区、虹翔社区、德园社区 |
| 苏民学校(小学部) | 永祥社区、银翔社区、金通社区、劳动街社区、翔华社区、南华社区、云翔社区、东园社区、红翔村、永乐村、永丰村、新裕村 |
| 古猗小学 | 丰翔社区、芳林社区、瑞林社区、宝翔社区、曙光村 |
| 留云小学 | 隽翔社区、留云社区、嘉秀社区、天恩社区、华丰社区、华猗社区、静华村、翔北社区、浏翔村、新丰村 |