今天分享一套位于太阳都市花园4号聚星阁的装修设计案例,本住房为两室两厅一厨一卫。
房型分析

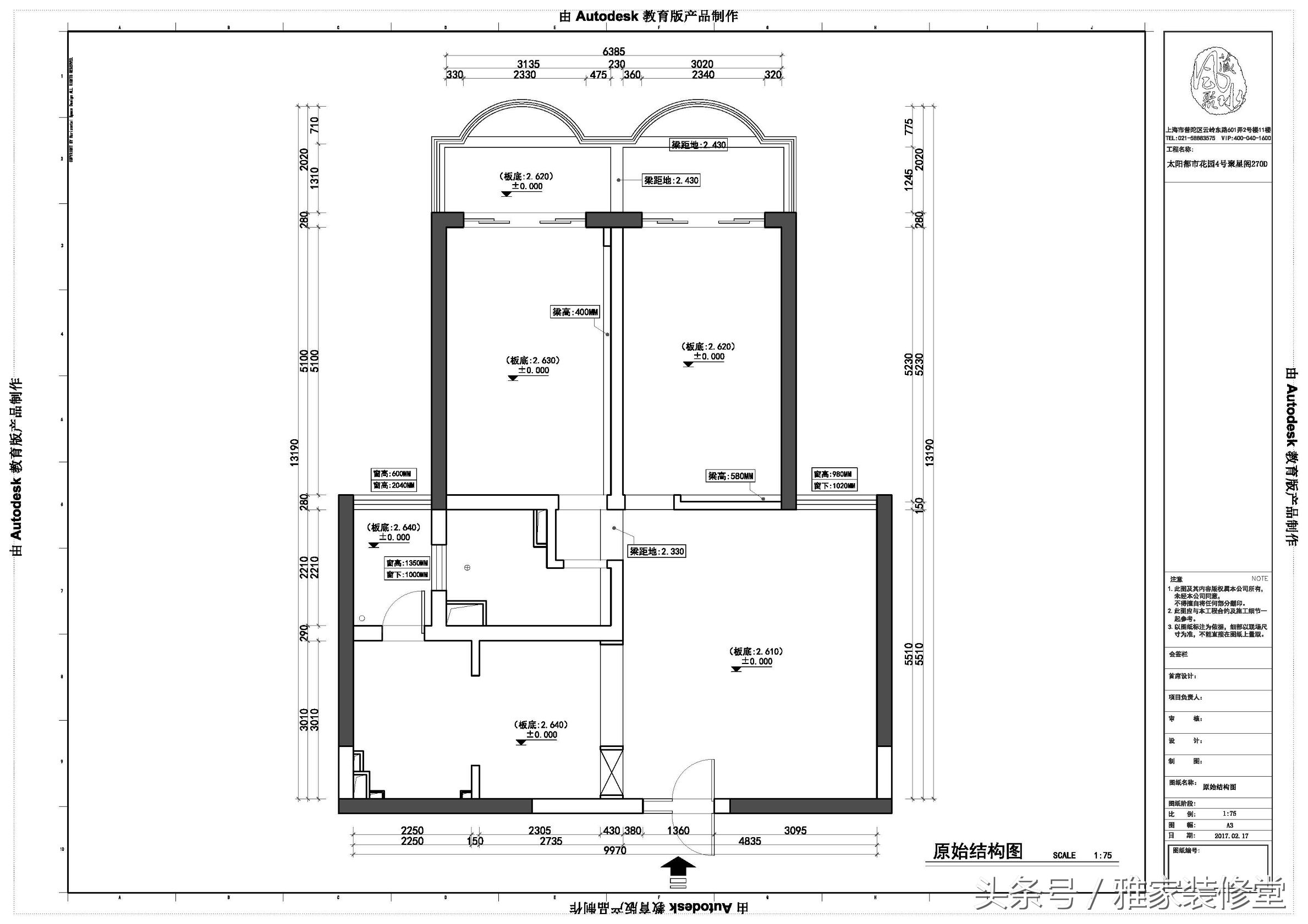
原始结构图
优点:
-
两个卧室都与阳台相连,所以卧室采光很好。
-
客厅也相对规整。
缺点:
-
客厅只有一扇很小的窗户,而且这个窗户夹在楼层里,相对整个客厅来说,采光严重不足,整个客厅都显得很灰暗。
-
因为只有这扇窗户,卫生间也基本零采光,即使外面阳光明媚,卫生间也是伸手不见五指。
-
空间本身不大,又让出一个过道,使得空间的两边都拥挤不堪。
方案分析
方案一:

方案一
-
将一个卧室改为客厅,将原来的客厅改为过道、儿童房和一个储物间,从而改善客厅暗淡的弊端。
-
卫生间改变了门的方向,利用原来过道的空间将卫生间做干湿分离,增加了卫生间的实用性,采光也有所改善。
-
将餐厅与客厅之间打通,释放有限空间。
-
给卧室增加了一个衣帽间,改善原来卧室的实用性功能。
方案二:

方案二
入户厅是一个家给人的第一印象,代表着这个家的风格情调,甚至是主人的性格特点。
-
本方案在门厅处做了一个有特色的玄关,餐厅和干区之间用装饰柜来划分,既划分了空间,又不浪费将卫生间推出。
-
利用西边没多大用处的小阳台,扩大套内面积,使每个空间都宽敞起来,不再拘谨,而且厨房也可以增加一个功能柜。
-
利用大阳台的优点,做了一个小吧台,物尽其用。
方案三:

方案三
-
将卫生间扩大,做双台盆,设置浴缸淋浴两用的洗浴区。
-
开放式厨房用一个小吧台将餐厅和厨房两个空间连接在一起。
-
将沙发组合往前推,占用过道的位置,避免过道太长的弊端,沙发后添置一个书桌,增添空间的功能性。
编后:该房型采光不佳,设计师与客户都对这一块比较重视,希望改变采光不足的状况。大家如果有装修设计需求的,请联系雅家装修堂哦!