

张 益
ENTER TITLE

名匠装饰设计中心设计总监
从事设计行业13年
VIP高端别墅客户专属设计师
中国室内装饰协会会员
国家认证高级室内设计师
全国优秀室内设计师
「 简 洁 素 净,温情暖意」
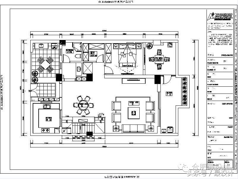
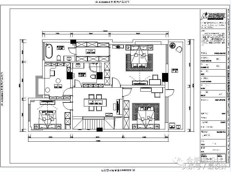
工程名称:国耀一方城
设计单位:名匠装饰
建筑面积:240㎡
整装造价:60万
设计风格:原木简约风格
本案在力图体现简约内敛温馨舒适的同时,对平面动线做了一系列的规划,让原有的格局更加通透,物理性的光线和通风,客厅区域和二楼公共区域提供给家人沟通互动的空间场景,在空间气质的表达上,运用暖色的灯光、直线造型的空间规划,单一材质和变化的整合,在质感和色彩的协调下构筑出空间的骨架,轻松的气氛在空间中弥漫,诉说着空间的气质与意境。

大厅在线条和色彩的衬托下散发出淡淡的优雅,家具间的色差让居住者的视觉焦点散发开来,室内色彩的调和作用,让整体空间既温暖舒适、又低调包容,简洁素静的实木让人能触摸到温情和暖意,营造出一个宜人之居。








分享空间故事 畅想舒适生活
最设计播出时间: 首播每周日晚20:30
复播每周日晚23:30,周一午间12:01
合肥广播电视台故事休闲频道
如需更多设计师资讯,请关注微信号:hefeizsj