
地 址:淄博张店紫园别墅
面 积:280平方
户 型:联排别墅
风 格:新中式
设计师:刘宝尧
预 算:60万
施工方式:基装,主材,配饰
这个户型是个地上两层地下一层,房子交房带着地源热泵,整个厅里的空调管道很低,设计中要着重考虑。餐厅空间三面开敞,动线凌乱。楼梯正冲半个餐厅,空间导行不买,不明确。

楼梯正对餐厅


这张照片就可以看到比较低的空调管。

一楼原始平面图
设计上考虑客餐厅的电视柜和餐边柜设计成嵌入式的,这样上方可以把比较低的空调管道包住,整体的空间高度不会降低。

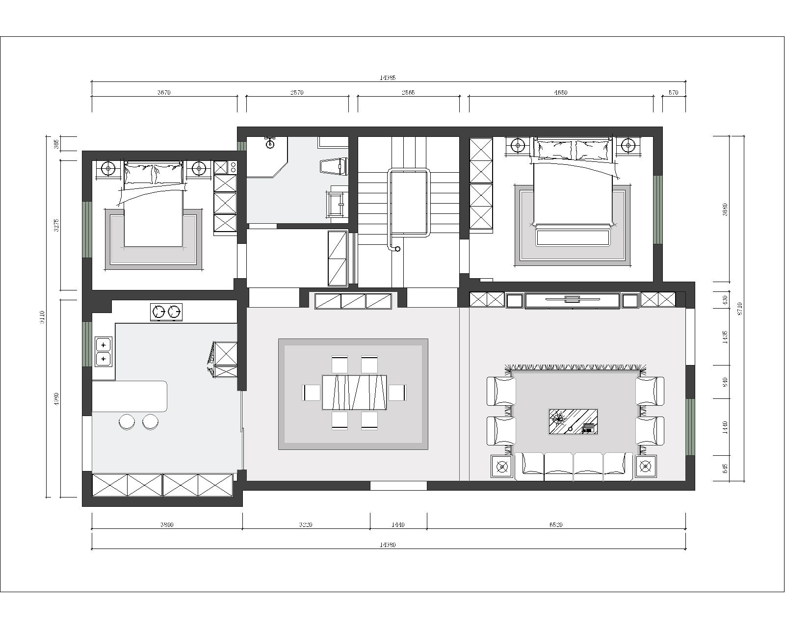
一楼平面布局图

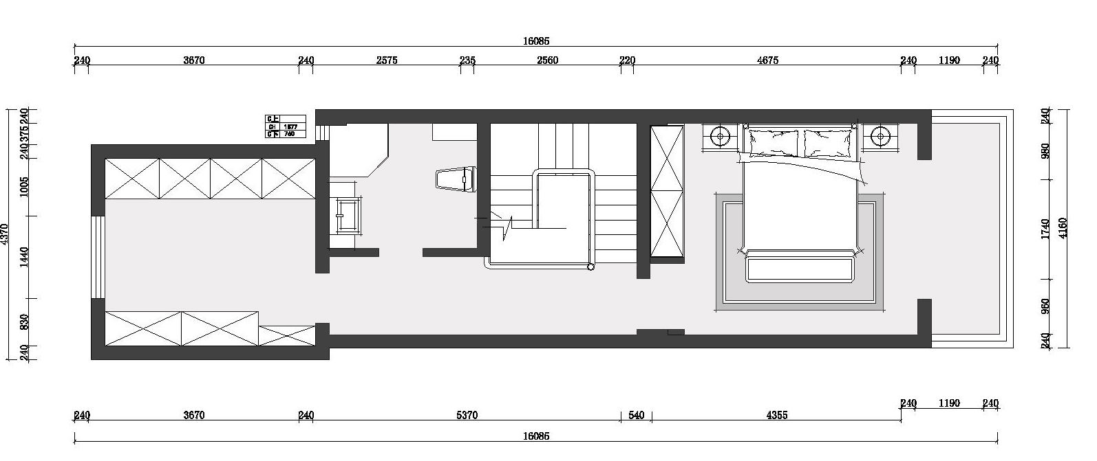
二楼平面布置图
整体方案,保留传统中式恢弘、大气的理念,配以硬装氛围上的中式元素,却摒弃惯有的岁月沧桑感, 使之变的更年轻、更宜居,却不失传统中式的文化底蕴。或许,这就是越来越多的年轻人开始钟爱新中式的原因了。







下面是几张完工图片




