静谧室内设计所有作品
MOOYARD-II陌野”乡墅酒店二期位于德清莫干山,选址临近陌野一期,这是一个建筑新建项目。从建筑设计、景观设计到室内空间设计再到后期的软装设计,对我们来说这将是一次全新的旅程。

住宅位于山清水秀的乡间



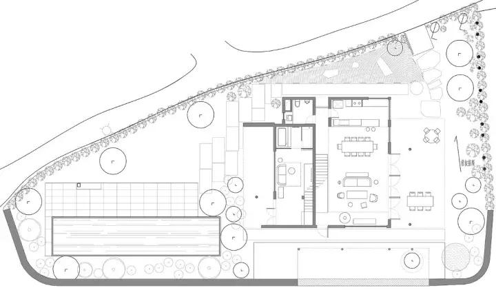
总平面图

建筑与竹山之间的二层公共露台
▼客厅与餐厅




▼复式房间下层式浴缸

▼复式房间三面围合的床,以及外面就是可以看最后一缕阳光的露台


▼大面积的落地窗和天窗将景色引入房间



▼客房








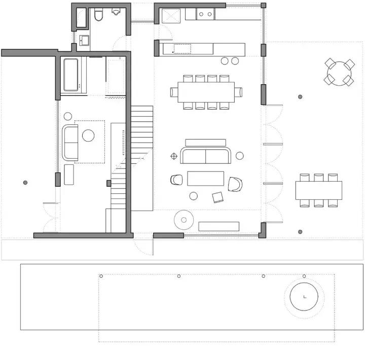
▼一层平面图

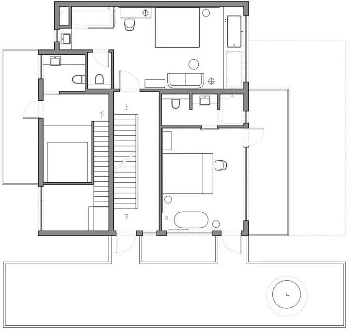
▼二层平面图

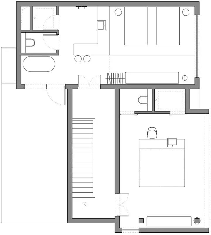
▼三层平面图

静谧室内设计所有作品
MOOYARD-II陌野”乡墅酒店二期位于德清莫干山,选址临近陌野一期,这是一个建筑新建项目。从建筑设计、景观设计到室内空间设计再到后期的软装设计,对我们来说这将是一次全新的旅程。

住宅位于山清水秀的乡间



总平面图

建筑与竹山之间的二层公共露台
▼客厅与餐厅




▼复式房间下层式浴缸

▼复式房间三面围合的床,以及外面就是可以看最后一缕阳光的露台


▼大面积的落地窗和天窗将景色引入房间



▼客房








▼一层平面图

▼二层平面图

▼三层平面图
