

来自 设谷设计事务所 对gooood的分享
无论何时,色彩对设计的诱惑、设计对色彩的探索,都从未中止。它们暧昧地相互试探,似有章法,却无规矩,微妙牵引着视觉的神经末梢。 ——设谷空间设计
几十年前,美国设计师夫妻档——伊姆斯夫妇创造出“红非正红,黑非纯黑”的全新色彩,注入伊姆斯椅。建筑大师柯布西耶不断进行色彩实验,创造出了魏森霍夫实验住宅、法国巴黎的马赛公寓(2016 年被列为世界遗产)等作品,惊艳世界。
经典的色彩绵延至今,从未流俗。究其原因,应是表象下色彩自带的情绪和暗示。“度”的把握难以言明,这种有趣的能量也须得收放自如,才最为合宜。我们从「3COLOUR 三彩」的三原色着手,简单、纯粹、干净,却又衍生出万千富丽的基础三色,一如女性的情感世界,流动变化,细腻丰富。
▼室内概览

▼VIP区

▼简单、纯粹、干净,却又衍生出万千富丽的基础三色

门店通体是最干净的白,灯光恰到好处打出明暗层次,如折射的镜中世界。空间边界得以淡化,虚实模糊,坚硬感于是层层褪去,满眼俱是澄明,宽敞、自在而舒心。即便白色是各种色彩能量的中和,初入之时,顾客难免要深吸一口气,为之动容。干干净净的缄默与存在,本就是不言自明的静水流深。
真正的色彩游戏,只是发生在道具和点缀上。轻浅透明的三原色,就像心尖上荡漾的涟漪。浅红的少女心、浅黄的明朗感、浅蓝的清新感,循序渐进触发着顾客的心绪,明朗而温柔。
▼主展示区

▼室内以白色为基调,色彩只运用于在道具和点缀上

▼试衣间

从纯白环境、三原色修饰到服装主体,色彩渐浓,表达出明确而协调的主题指向性。空间中随处可见弧形元素,宛如女性的优美曲线,辗转变化,隐现自如。吊顶与台阶处,盘旋的圆弧,通过一堵不完全的墙体连接,部分流逝于视线之外,却更有留白之意。
面对素简但具有线条美的设计,有巧思的顾客们不难发现,维度开合、曲直迭拼的长墙,简直是记录自己魅力的绝佳pose 取景点。
▼吊顶与台阶均使用圆弧造型

▼空间中随处可见弧形元素宛如女性的优美曲线

另外,「3COLOUR 三彩」门头的处理是整个设计最值得一提之处。因为门店处于建筑喇叭形位置的最深处,所以本该处于弱势。但结合回环的地理位置,我们将门头做了扭转,这样,当展示面垂直于顾客的视线出现,「3COLOUR 三彩」的整体形象将最大限度展现于前。当顾客缓步靠近,不经意间于曲径通幽处发现一方通透敞亮的艺术型内空间——高高的门头下,淡淡的色彩晕染着,绮丽而不失轻盈,简约却颇具新意,不知会否产生“柳暗 花明”的微妙感觉?
▼门头

▼结合回环的地理位置将门头做了扭转

项目图纸
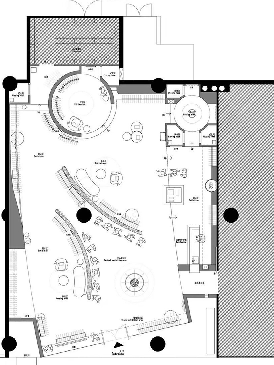
▼平面图

项目名称:三彩服饰(西湖时代广场店)
设计团队:设谷设计事务所
主创设计:谢银秋、龚海明
空间摄影:王大丑
设计说明:夏敏
完工时间:2019 年6 月
主创设计师:谢银秋(设谷设计事务所创始人/主持设计)
版权©www.gooood.cn,欢迎转发,禁止以gooood编辑版本进行任何形式转载

▼ 网站最新24小时精彩项目集锦
www.gooood.cn

全文完