
△ 图1 北望春园 摄影:陈颢
设计单位 东南大学建筑学院/东南大学建筑设计研究院
建筑师 葛明
建筑面积 950平方米
地点 江苏宜兴
竣工 2018年
撰文 葛明
原文刊载于《建筑学报》2020年01期,配图有部分调整。
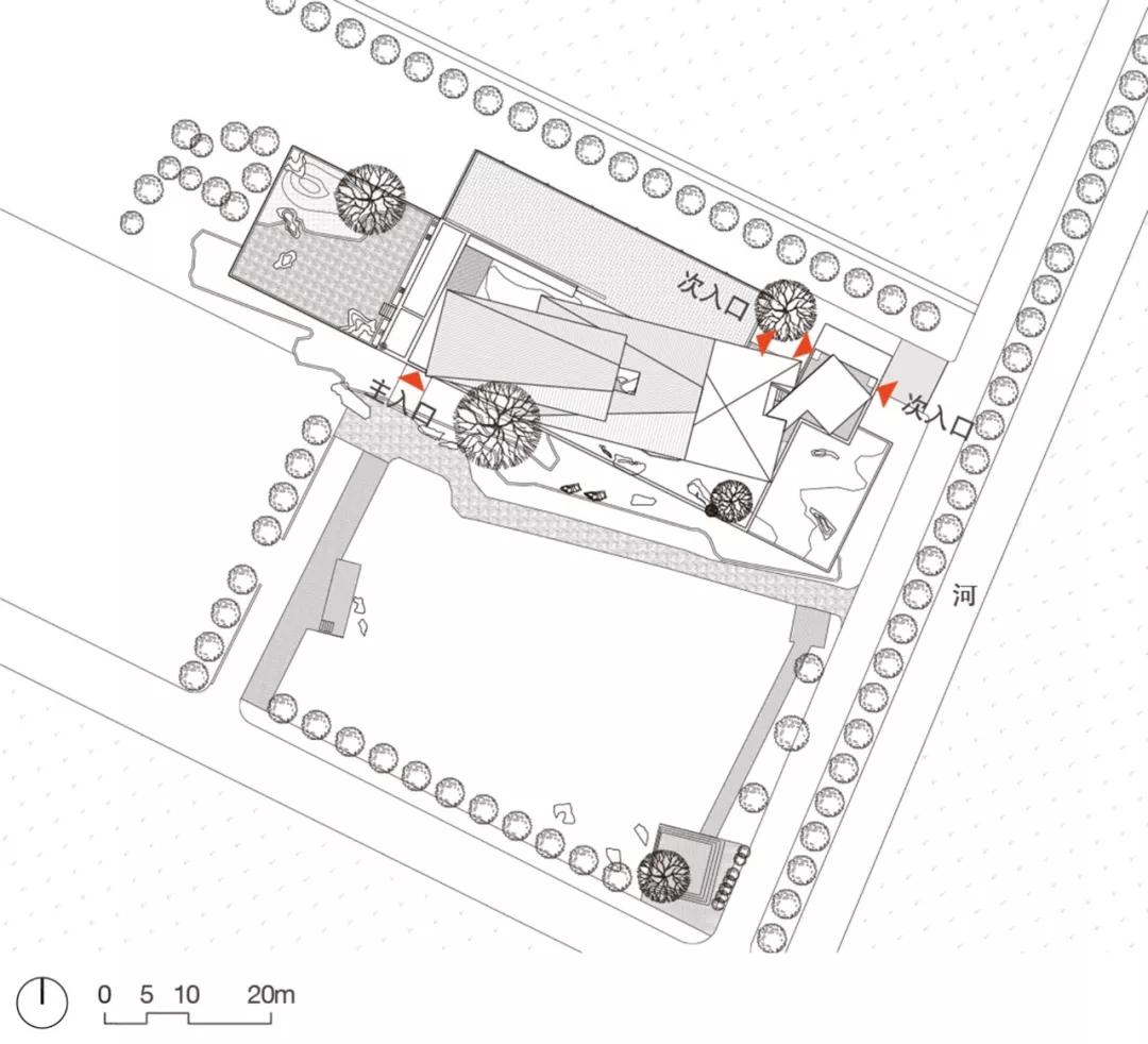
2014年前后,我受宜兴丁蜀古镇的委托,在濒临太湖的一片郊野地里设计一组小型的公建与设施,用以休憩。为此,提出了“三园一市”的构思,即春园、秋园、冬园、夏市,获允。其中,春园用作游客中心,它也是太湖绿道自行车赛的始发兼休憩点,并用以停放自行车,最终在镇里和团队的支持下得以完成,其余则还另需时日(图1、2、3、4)。

△ 图2 西望春园 摄影:陈颢

△ 图3 东望春园 摄影:陈颢

△ 图4 总平面
这组设计以及随后的建造对于推动我的园林方法研究起到了重要作用。具体地说,主要是深化了我以前提出的“园林六则”,它们分别是:第一“现生活模式之变”,第二“型”,第三“万物”,第四“结构、材料、坡法”,第五“起势”,第六“真假”;抽象地说,深化了我对于物体与词语、建筑与生活世界关系的理解。伴随着这一过程,我还和戴维·莱瑟巴罗(David Leatherbarrow)、陈薇、王澍、董豫赣等老师或一起组织地形学(Topography)方面的系列论坛,或一起探讨叠石、置石以及房园的关系……所有这些都促使我对园林方法的独特性以及它和其余设计法的关系有了新的认识。
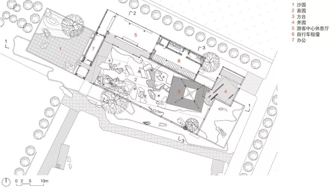
其中,对于“园林六则”这一设计方法有许多具体的推动。首先,因场地类型多样,所以与微园设计中只能以寻求老房子中“特殊的空”作为起点不同,可以更多地探讨“园林六则”之中的“型”,对每一块有限场地内房园俱现的不同方式,以及居游兼得的不同方式进行比较研究。所以春园、秋园、冬园与夏市在处理不同需要的同时,还试图以不同的方式和意象呼应《园冶》中提出的郊野地、江湖地,并呼应郭熙、王蒙、龚贤画中的各类意象,从而使得各园中的用房与相应的环境关系各不相同。尽管各块用地的实际大小差距不大,但设计的结果却似乎呈现出了完全不同的房、园比例,其中,春园以半园半房的形式呈现;秋园则房大于园,或者说园藏于房;冬园则园远大于房。
其次,“园林六则”中有“型”的概念,还有“万物”的概念与之对应,“型”贯通园和房,“万物”的状态同样需要贯通园和房。万物(myriad living things),是指混杂的、有生气的事物,无它无以成型。“万物”一则里山石第一,中介物第二,房屋花鸟池鱼次之,林木居无定所。那么在三园一市各自狭小的场地内,“万物”的构成能否准确,能否以不同的方式汇聚一体,然而又各自分明,这同样是设计研究的重点所在。因此在设计之初,春园、秋园、冬园与夏市的大势均由毛笔在毛边纸上构、染而出,一气而成,但实际上为了能否以有效的方法准确而节制地呈现“万物”,却费时良久。
1 半园半房
春园用地窄而长,由东向西一字排开,在其南侧需要设置一个举行大型车赛的活动场地,并以春园作为背景。为此,我试图采用“半园半房”这一“型”——以房中有园、园中含房的方式回应场地,实现舒展的同时又能获得童寯先生所提出的曲折尽致。在方法上则“架构”与“分地”并举。因此,半园半房是通过屋顶和场地的共同作用而获得,不是指面积上一半园子、一半房子。
“型”的起点是让地本身变成一处“活物”。童寯先生对“園”的诠释就是对型的提示,与此同理,试解“型”字,其下为“土”,所以如何“显土”并尽显其生动是一关键,这也是园林方法中“型”的核心价值之一。春园所在的场地十分平坦,并无特征,若要显土,通常先要框地,而框地常用墙,但墙内墙外的地并无区别,所以需要特定的方式显土,这时候就需要寻找特别的“型”。
首先,我以4个坡顶不断起落构成一组复坡,各个坡顶彼此交叠,形成一系列或高或低的覆盖和覆盖之中的留白,形成了场地上的特殊而细致的架构(图5)。通常在一个场地里进行架构,就是造房子的开始,但这里明显地又不是只为了造房子,更多的考虑是为了通过架构,使土地显出特别。日本篠原一男的土间之家也有这层意思,传递了一种概念:通过空间构成消解通常的室内、室外这种分类方式。

△ 图5 春园概念模型照片
复坡之外,我还辅之以墙,但墙的设置并不与复坡在地上的投形线一致,特意形成了一个角度,这样墙所框的地和架构所覆盖的地之间形成了不同的向天打开的空。此外,墙与复坡的错位,在内,为复坡勾勒了一条水平线,使外部的树显现出来;在外,则具有一种体积感,并与复坡若接若离,使内部的地似乎是被外部的树逼出来的,而实际上外部一片空旷(图6)。所以墙似乎不是为围住内部,而是为了围住外部。

△ 图6 北望春园复坡 摄影:陈颢

△ 图7 沙园 摄影:陈颢
此外,我还重点处理了复坡之外围墙的转折和升降,例如让西侧的围墙降下去,围着一个坑院(图7),在此,墙似乎是为了提示场地的标高变化。复坡的架构与墙的配合,让垂直的空间构成变成了内和外转换的构成方式,显示出暧昧的意味。复坡之中,有一个3/4方亭,覆盖着一个台子,在那里视线可以接通内外,但与此同时,在台子上身体的包裹感又是最为明显。所以复坡通过架构带来显地的作用,同时也没有放弃追求特别的覆盖效果。这就是“型”开始所发挥的作用,它为内部的地制造出了一种神秘感和身体感(图8)。

△ 图8 苔园东望方台 摄影:蒋梦麟
其次,“型”的深化还需要另一个方法“分地”。分地如何才能进一步使地生动,就如龚贤的画所显示的那样?在该图里(图9),土、水、土彼此相隔,截然分开,不知有多长,但似乎一下就变成了一个特殊的园林,不再只是普通的野地。这种不断的隔(separate-joining)还使近处的房子也不知不觉之间发生了变化,既可以是一个给船用的房子,也可以是给鸭子用的房子,为什么图上的水土看起来像一处园林?其内在的原因就是采用了“分地”的方法,而分地的核心是隔。

△ 图9 (清)龚贤,山水册,纸本,水墨,苏州博古馆藏
因此,从复坡的架构开始,我同时启动分地,并以架构为参照,水土互含,分成池、岛、坡、台、坑等各种类别,在场地内高低错落,形成与复坡繁复的对应,从而完成了半园半房这一“型”的构建。服务用房和停车用房采用折边形式,反似若有若无地契入其中,如同扩大的廊子,连接着复坡、水石、台地,提供了各种标高的依据。
在春园里,场地类型丰富,或台,或池,或岛,形成了一个小的世界,与传统的造园仿佛,其实,用了“水土之法”后又有所不同(图10)。其一是均以水墨石与水相契、相合、相映,从而实现以石成山、以石成岛、以石成坡的效果,并实现水石生远的作用。这与置石不同,或可称之为植石。其二是水、岛、山互绕互隔,如同京都的苔园。之所以用绕和隔,除了划分场地以外,更重要的是可以让一处处植石,在有些角度看起来是山,有些角度看起来是岛,有些角度看起来是坡,等等(图11)。绕与隔让地来来回回的感觉不一样,变幻出了多种可能。其三是因为用了架构使得土地先显出来,所以水石的相绕相隔还需要考虑与坡顶的关系,包括高低、阴影、坡和石的重量感,等等。
春园中各个坡顶的叠合之处都依势而成,从东至西不断上升,但各坡的重心似乎在不断上下移动,有的一坡之内还似乎藏了阁楼,形成又一复坡。所有这些动作都是为了让架构形成的覆盖和水石之间的距离可以相互调节。可以想象,如果架构单薄,石头的分量就无从显现,水石的关系也无从显现。架构的方式与水土之法的结合,使整体既有室内性(domesticity),又有园子感。

△ 图10 水石相隔相绕 摄影:蒋梦麟

△ 图11 苔园 摄影:陈颢
2 连接
园林的方法是对房屋与自然两分的反思,它注重自然与人工物的关联,试图在两者之间建立一种特定的连续关系,并在这种关系中重新理解房屋。如果把这种建立关系的方式看作制作色谱的话,就是首先在建立一种连续的谱系后进行分段,然后在特定的位置进行标示,从而找到房屋更有意义的显现方式。此外,造园意味着不能设计好了再寻找建造的办法来处理它,因为造园的过程本身就是让自然和人工物建立有效联系的过程。在园林的方法中则意味着万物的聚拢就是帮助“型”显出来的基本办法。那么如何使得自然和人造物之间产生连续性,然后又一段一段地分开,并以特定的方式聚拢在一起,让间隙和连续同时发挥作用?
为此,我引入了“连接”(articulation)的思考来推动园林方法。它来自对于实践美学(Practical Aesthetics)的理解,并试图对建构(tectonic)的意义有所超越。如果说“隔”具有通过隔开而后产生关系的含义,那么“接”既指分节的“节”,又指接续的“接”。“连接”的方法同时与地形和建构有关,所以和一般空间的方法、类型学的方法不一样,它能与工法进行有效衔接。它具体的含义通常包括:清楚的表达、清晰的发音、骨骼之间能够活动的关节等,还有学者解释它是指在画中依靠光影,使得轮廓能够表达出来,所以还具有“刻画”的意思。房屋和场地要能在自然和人工物中显现出来,就需要刻画,这都属于“连接”的范畴,它保留了自然到人工物之间的分节,确认这之间有一种非连续的过渡、跳跃式的过渡,需要“接”(articulate)在一起。这样,一个房屋就能同时具有自然和人工的意义,并能增加产生意义的机会(图12、13)。

△ 图12 方台北望 摄影:蒋梦麟

△ 图13 方台西望 摄影:陈颢
既然“连接”的关键之处是在自然和人造物之间形成连续,并且需要形成有间隙的过渡,那么如何分节是重点。为此,春园里采用了特定的坡法以形成分节,通过4个坡顶互相连接、覆盖水土,而那些在上部的连接则隐藏于阴影之中,在水里则通过镜像关系一一显现,从而有效形成了场地的分节效果,并提供了阴影和空隙作为连接的机会(图14)。
为此,各个坡顶需要采用有效的几何形式互相叠加从而利于分节,因此各个坡顶之中有3/4坡,有半坡,有近乎全坡却有缺漏,所有这些动作也都是为了制造连接的机会。为了实现分节和连续,还需要真实建构和形式建构的配合,需要各个坡顶各有其空间特征,有些强调室内感,有些强调飞檐。与此相同,水中的植石同样需要发挥分节的作用。植石同时包含了布石和置石,布石为成势,置石为摆空。这两者与复坡的做法上下呼应,形成了垂直方向上的分节。

△ 图14 复坡组合 摄影:蒋梦麟
此外,对于如何通过建造提升建筑的意义,“连接”能起到怎样的作用?建筑一般通过空间来表达意义,除了特殊的结构和构造,建造的意义通常都隐藏于后;而“连接”能帮助释放这一意义,它让野性的特征保持在人文化的建筑中间,把在大地上建造的意义体现出来,成了帮助产生意义的中介。与此同时,它还试图对建构之中暗含的原型思维进行破除。它关注如何通过对结构和材料的特殊使用来破除原型,例如木结构有它的原有含义,但能否让它和其余结构混合使用而产生变化,或者能否通过呈现出一点混凝土结构的感觉,而使固定的含义发生变化,形成新的意义?这需要进行合适的变形(transfomation),才能成为对类型学的提升。
“连接”强调对连续体中的片段进行变形,从而逐渐把自然和人工交织在一起,构成新的事物,创造新的意义。为此,春园的复坡*特中**意采用了两个钢构架和两个混凝土的构架彼此交叠在一起的方式,其中黑色的钢构架使得灰白的混凝土构架似乎轻了起来,让它的斜撑也似乎有了弹性,从而成为连接坡地和水、石的枢纽所在(图15、16)。

△ 图15 方台构架 摄影:蒋梦麟

△ 图16 方台构架 摄影:蒋梦麟
“连接”还意味着设计中需要特意保留建造中的层次甚至某种粗糙,保持房、园之中野的特性,从而显得更有分量,勒·柯布西耶的房子往往就是这种感觉。所以它的价值不是为了追求精致,那属于构造范畴,它在意能否揭示出一个房子与自然连接的丰富状态。另外,因为“连接”是靠片段形成的,会形成很多隙缝,帮助轮廓更加清晰,那么就需要在设计*特中**意制造这种有空隙、有阴影的区域(图17)。有时我们还要形成反向的思考,即是否可以特意地消除掉一些原来期待有节点(joints)的地方,来强化各个片段之间的层次(图18、19)。所以“连接”还是面对逐渐无节点时代(包括数字打印)的回应和思考。因为它保留了多重的美学机会,保持了房屋原始的力量,保留了原有结构、材料、类型存身的机会,保留了产生联系的机会。这也是园林方法试图探讨的重心之一。

△ 图17 方台与井园之间 摄影:陈颢

△ 图18 井园 摄影:蒋梦麟

△ 图19 井园 摄影:韩思源
3 空气
在不同文化中的地形学主题里都有山、水、空气、地平线等要素。其中空气可以引发丰富的想象,包括真实世界和虚构世界的关系,包括氛围、空、云、雾、远、层、生气等各种概念,而在园林的方法中,特别重要的一点是“生气”。与“型”相对应的“万物”如前所述是指混杂的、有生气的事物,之所以提出这一则,其原因也是为了如何通过聚拢事物而实现生机勃勃。
采用了园林的方法,会使房、园变得有什么不同?“型”的方法使场地里的土地好像不一样了,然后让房子和自然之间也有了一种特别的连接,但是如何追求生机勃勃可能是最难的地方之一。因为生机意味着要结合很抽象的远以及与迫近身体感知有关的氛围,这也是在春园设计里所考虑的又一重点。春园作为半园半房,可以想象,希望同时得到室内外的状态,同时得到静思的状态和日常的状态,同时得到千里之远和尺幅之近的状态。那么,空气对春园的设计意味着什么?
首先,它能进一步发挥复坡等要素所起的架构作用和分地作用。如果是作为房子存在,光感是最重要的,可以提示自身;作为园子存在,远是重要的,可以神游物外。想象有雾的时候(图20、21),因为周围的环境由雾笼着,虚了起来,使得围墙的边界清楚起来,内部也似乎明亮了起来,水中的倒影使得明暗的层次丰富起来。奇怪的是,边界强烈之后,周围也同时显得更远了。这时候需要的房、园就都有了。所以如果为了让所有的地显现出来,似乎有雾才是最好的状态。同样可以想象,如果光线过于强烈,周围清楚了,园子的大小反而会暧昧起来。

△ 图20 雾中苔园 摄影:陈颢

△ 图21 苔园 摄影:陈颢
其次,在中国的山水画里,云、雾、空的存在使得不同的山石,一会儿是石、一会儿是山,一会儿是近、一会儿是远,来回交替,如果没有空的控制就无法形成转换。实际造园的时候,不可能像画画那么自如,但如果强调空气是能使物体产生远近的基本方法,就意味着带入了山水画的意象。在此意义上,空气可以让一园之内进*房行**、园的再次细分与连接,让坡顶的叠合不断给人产生错觉,分不清近还是远,使人对房、园的感受不断切换。此外,人通常会寻找合适自己的处所停留,那么在何处能更充分地感受生机呢?坡顶之间的间隙、屋架的阴影、黝黑的石头、水中的倒影、苔上的绿意,所有都以片段的方式让目光能穿透明暗变化,同时得到远近的感受,那什么是连接这些片段的线索呢?这些或许都需要依赖空气感所带来的层次划分。
其三,它提示氛围。中国的氛围感与远近密切相关,希望能让人同时感受神游与静思。氛围有时意味着聚拢,有时意味着一种室内性的呈现。空气感掌握得好坏,可以让氛围得到控制。比如在春园里增加水雾,近处模糊了,远的东西就浮现进来了、聚拢起来了。
最后,需要强调空气还因为这是关于空的一种认识:空气感跟空虽然并不一样,但本身是对空的一种重要表达方式。“连接”也需要依赖对空的细分才能更充分地发挥作用。当然,空的价值主要在于制造匿名的状态,提示事物和要素的转化,也就是说生机勃勃既是眼前的,也是潜藏着的,需要被发现,这是园林方法中需要注意的要旨之一。
4 结语
实际上真正做春园设计的时候,大部分精力是在做复坡——复坡之间的连接,复坡的变化,它与地面的高差的调节,它所展开的各个面相。其实现在有些地方的比例因为场地发生过变动而有所改变,因此或许不是最佳的,似乎可以更扁一些,与场地的关系还可以更紧张一些。但最后定位的依据是方台上斜撑的尺度,因为斜撑的高度是有限制的,它的存在直接关系到人在台子上的位置、人对内外的感知、人对远近的体会。因此,春园里所有的事物都需要考虑这些:在台子上既能感受到园子中最紧张的关系,也能感受到最舒缓的关系,当人在那里远眺的时候,能感受到迎面而来的水平展开的间隙(图22)。因此,依据坡顶对一个人的笼罩程度进行定位以后,春园的平面、剖面都要以非常细致的几何性,一点一点地推敲出来(图23、24)。

△ 图22 坡顶、方台、水、墙之间 摄影:蒋梦麟

△ 图23 平面

△ 图24 1-1剖面(上)/ 2-2剖面(下左)/ 3-3剖面(下右)
一片空旷的地上造园是否需要严格的确定感?在我看起来,是的。自然和物体之间似乎有无数的线条自由地联系着,但似乎有一条是限定的。在园记的最后,还需要对春园进行释名,之所以采用半园半房这一“型”,之所以采用复坡,都是试图表达“藏春”这一意象。春园的设计,形成了我研究并练习园林方法的又一段重要经历。
完整项目信息
设计单位:东南大学建筑学院/东南大学建筑设计研究院
建筑师:葛明
地点:江苏宜兴
设计:2014年
竣工:2018年
业主:江苏省宜兴市丁蜀镇政府
设计团队:吉宏亮、陈洁萍、孔亦眀、刘筱丹、王正欣、李新建;淳庆(结构)
基地面积:4200平方米
建筑面积:950平方米
结构形式:混凝土框架结构,局部钢结构
摄影:陈颢(除标注外)
其他3个园林设计法则