
热熔复合石材玻璃,有着“石材界黑科技”的美誉,因其兼具天然石材瑰丽的纹理和玻璃剔透的表现效果,能让玻璃变得如玉石般华丽,玉石则如玻璃般晶莹而备受设计师青睐。
今天,就带大家走进一面是科技,一面是艺术的热熔复合石材玻璃的世界。

01
什么是热熔复合石材玻璃?
热熔复合石材玻璃是采用高分子中间层材料,通过高温、高压的加工方式,将3——5mm石材薄片与玻璃夹胶而成的。

具有强度大、抗紫外线、耐候性能优异,同时又能保持石材的天然纹理,配合不同灯光设计,可以产生独特的光影效果,这是其它材料很难实现的。

▲ 单面石材薄片与玻璃夹胶的结合

▲ 双面玻璃,中间夹天然石材
热熔复合石材玻璃在成型时,即同时拥有大理石的华美、沉稳与热融玻璃的精致、亮丽,色彩和花纹的变化十分灵活,呈现的产品也更具多样性。

▲ 增加层次感和金属质感的光影效果

▲ 丝布的纹理同石材与玻璃神奇的结合
02
性能特点

独特表现性
既保留天然石材本身的纹理和质感,又能在光线照射下显现石材的纹理效果。
有效阻挡紫外线
热熔复合石材玻璃具有强大的阻挡紫外线功能,能够防止室内出现炫光现象。

性能易增强
该材料采用耐高温的高分子材料作为中间层便可极大增强性能,大理石和玉石也能使用。
尺寸规格灵活
最大规格能达到1200*2800mm,可以提高整体装饰效果。
应用范围广
可以使用在建筑幕墙、室外景观、墙体、吧台、隔断、吊顶、发光地面等部位。
03
安装工艺
“热熔复合石材玻璃”的安装方式与普通玻璃基本一致。

铺贴的夹胶玻璃可以采用点式安装、隐框式安装和明框外包式安装,那对于这种新型材料同样可以使用这3种安装方式。

需要注意的是,若采用LED灯光配合照明,光源距离玻璃夹胶石材的距离要≥300mm,并要保留电源维修和更换的空间。
从上图可以看出,是采用典型的明框式安装,内部利用钢索链接的框架将玻璃玉石固定,这样整体受力更均匀,内置LED灯带,夜晚视觉效果更好。
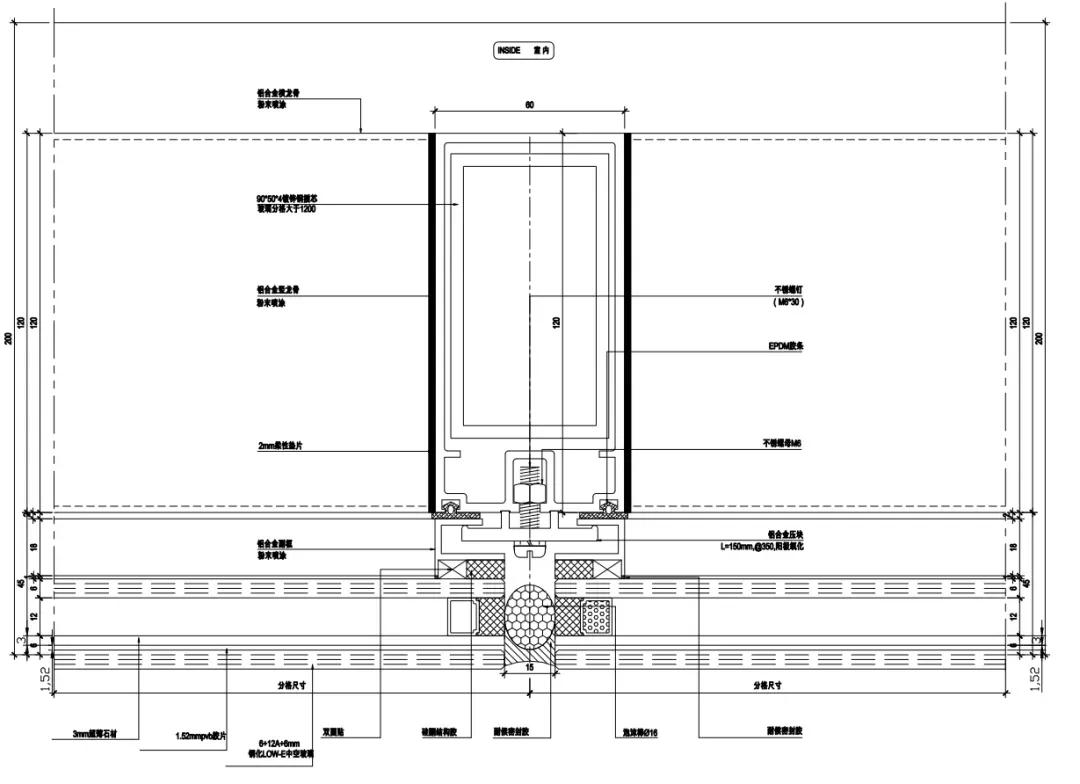
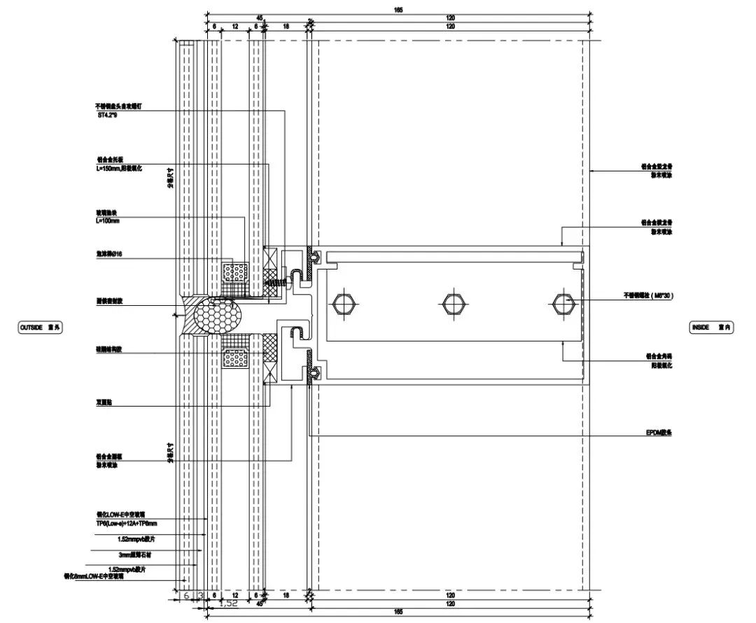
安装节点参照如下:

▲ 幕墙安装节点

▲ 幕墙安装节点

▲ 点式玻璃固定节点
04
应用案例
璞舍茶室





Dior东京银座旗舰店




澳门零售店Apple Store金沙店




福克艺术大学




无锡阳光城示范区



上海万科中兴路壹号


