室内外消火栓系统:
概述:室外消火栓是指设置在建筑物外的一种供水设备,其作用是供消防车从市政管网或室外消防给水管网取水,其次可直接接水带和水枪灭火。
类型:地上式消火栓、地下式消火栓
施工安装:应按照《建筑给水排水及采暖工程施工质量验收规范》GB50242-2016相关标准执行,可参考国家建筑标准设计图集01S201《室外消火栓安装》。
室内消火栓系统示意图:

组成:
消火栓:由消防龙头,水带,水枪组成。安装于消火栓箱内。
给水管网:应构成水平或垂直或立体环网,至少两条进水管。
消防水泵:消防水泵应保证在火警后5min内开始工作。
消防水箱:消防水箱应设在建筑物的最高部位,且应为重力自流供水方式。
消防水池:当生产、生活用水量达到最大时,市政给水管道、进水管或天然水源不能满足室内外消防用水量时;市政给水管道为枝状或只有一条进水管,且消防用水量之和超过25L/s 时,应设置消防水池。
水泵接合器(消防结合器):消防车向建筑内消防管网送水的接口设备。应设置在便于消防车接近、使用、不妨碍交通的地点,距消火栓和贮水池15~40米之内。
布置:
室内消火栓的设置位置:室内消火栓应设置在明显易于取用地点。如走道、楼梯间附近、消防电梯前室等。
水枪的充实水柱:应由计算确定,一般不小于7m,甲乙类厂房、超过六层的民用建筑、超过四层的厂房和库房,不应小于10m;高层工业建筑、高架库房内水枪的充实水柱不应小于13m。
水枪的保护半径:水枪出来的水柱必须达到建筑物的任何位置。
室内消火栓栓口处的静水压力不应超过1.0Mpa,如超过时,应采取分区给水系统;消火栓栓口处出水压力超过0.5Mpa时,应有减压措施。
多层建筑及高层工业建筑室内的某段给水管道损坏时,关闭的竖管不应超过1条(立管总数超过4条,可关闭不相邻的2条)
临时高压给水系统的每个消火栓处应设直接启动消防水泵的按钮,并应设有保护按钮的设施。
高层建筑的屋顶应设一个装有压力显示装置的检查用的消火栓,采暖地区可设在顶层出口处或水箱间内。
消火栓给水系统的供水方式:
1.无加压泵和水箱的消火栓给水系统:当室外给水管网的水压和水量任何时候均能满足室内最不利点消火栓的设计水压和水量时采用。

2.设有水箱的消火栓给水系统
常用在水压变化较大的城市或居住区。当生活、生产用水量达到最大时,室外给水管网不能保证室内最水利点消火栓的压和流量,而当生活生产用水量较小时,室外管网的压力又较大,能向高位水箱补水。

3.设有消防水泵和消防水箱的消火栓给水系统
当室外给水管网的水压和水量经常不能满足室内消火栓给水系统的水压和水量要求,或室外采用消防水池作为消防水源时室内应设置消防水泵加压,同时设置消防水箱,储存10分钟的消防用水量。

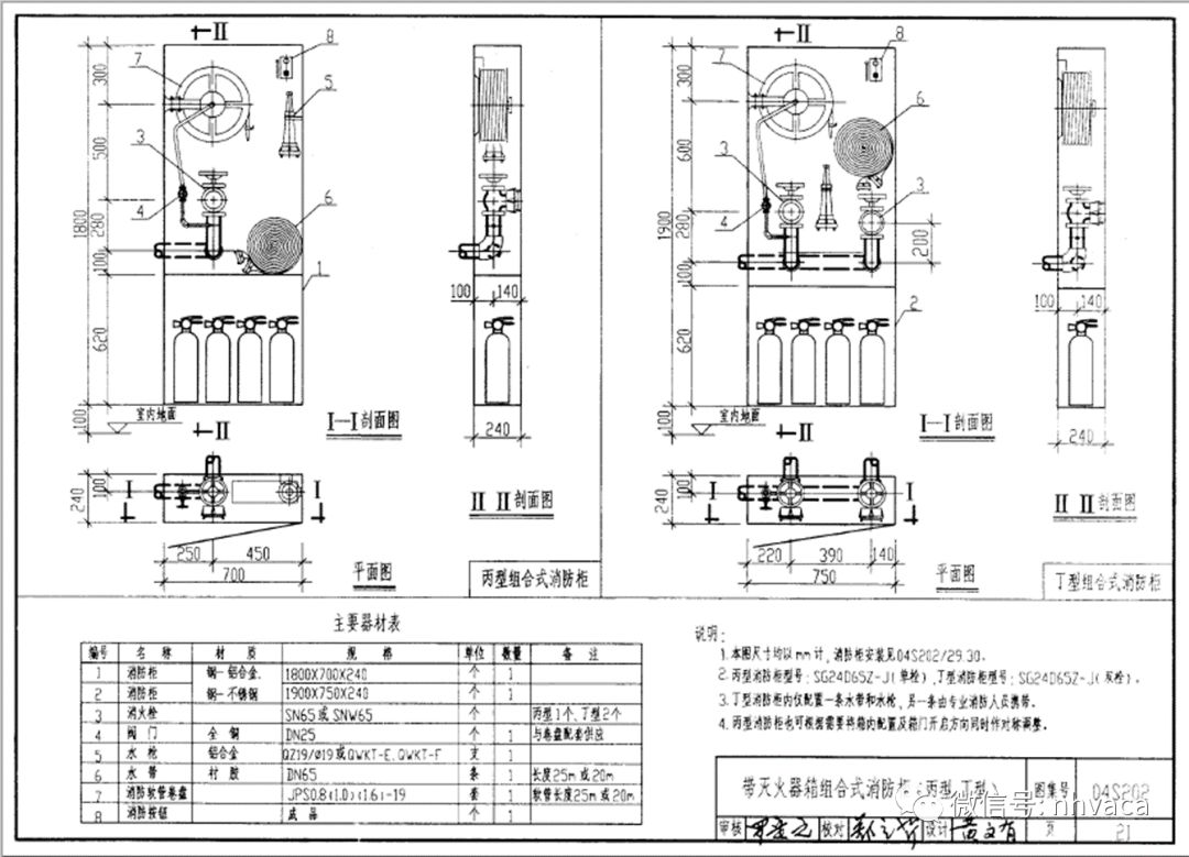
箱式消火栓安装要求:
栓口朝外,并不应安装在门轴侧;
阀门栓口中心距地面为1.1米(以水平线为准),允许偏差±20mm(栓口离挡板≧15cm,在带卷盘的情况下为≧22cm);
阀门距箱侧面140mm,距箱后内表面100mm,允许偏差±5mm;
消火栓箱体安装的垂直度允许偏差为3mm;
消火栓箱安装高度需统一;
消火栓箱的进出尺寸需统一;
消火栓安装平整牢固,各零件齐全可靠;
消防箱内各配件安装影响相互使用;

常用消火栓安装图集示例:


消火栓的施工安装:应按照《建筑给水排水及采暖工程施工质量验收规范》GB50242-2016相关标准执行,可参考国家建筑标准设计图集04S202《室内消火栓安装》。
自动喷水灭火系统:
概述:自动喷水灭火系统由洒水喷头、报警阀组、水流报警装置(水流指示器或压力开关)等组件,以及管道、供水设施组成,并能在发生火灾时喷水的自动灭火系统。
分类:
闭式系统:湿式自动喷水灭火系统,干式自动喷水灭火系统,预作用自动喷水灭火系统,简易自动喷水灭火系统;
开式系统:雨淋系统,水幕系统,水喷雾系统。
自动喷水灭火系统的适用范围:湿式自动喷水灭火系统适用于环境温度大于4℃和小于70℃的场所。
湿式系统的组成与工作原理:
组成:湿式系统由闭式洒水喷头、水流指示器、湿式报警阀组以及管道和供水设施等组成,准工作状态时管道内充满用于启动系统的有压水的闭式系统。
湿式自动灭火系统应在开放一个喷头后自动启动。
工作原理:当保护区发生火灾时,火源周围环境温度持续上升当环境温度达到闭式喷头动作温度时,致使喷头感温元件动作,喷头开启、洒水灭火。水在管路中流动后,使管网一侧(系统侧)水压下降,湿式报警阀阀瓣因上下压差而开启,向系统供水灭火。安装在区域干管的水流指示器因水流作用动作,将水流信号转化为电信号,报警控制盘接收到水流指示器发来的电信号后发出声、光报警信号,显示失火区域。同时由于湿式报警阀的开启,使一部分水流入报警管路,通过延迟器延时5-90s后,水流冲击水力警铃发出声响报警铃声。报警口压力升高使压力开关动作,直接向消防泵控制柜发出电信号启动消防泵加压供水,同时将信号传至消防控制中心,达到持续自动喷水灭火的目的。

自动喷水灭火系统动作流程图:

系统组件:
闭式喷头,定义:闭式喷头是指带有热敏感元件的喷头,其喷水口由热敏感元件组成的释放机构封闭。当设置场所发生火灾,温度达到喷头的公称启动温度范围时,热敏感元件启动,释放机构脱落,喷头开启。在自动喷水系统中,闭式喷头担负着探测火灾、启动系统和喷水灭火的任务,是自动喷水系统的关键组件。

喷头标识:

例:K-ZSTX15-68℃:表示快速响应、下垂型,公称口径为15mm,公称动作温度为68℃的洒水喷头。
类型特征代号,标准响应:性能代号前无代号;特殊响应:T;快速响应:K。
性能代号,通用型喷头:ZSTP ;直立型喷头:ZSTZ ;下垂型喷头:ZSTX ;直立边墙型喷头:ZSTBZ ;下垂边墙型喷头:ZSTBX ;水平边墙型喷头:ZSTBS 。
公称口径:10,15(k=80),20(k=115)。
公称动作温度(常见玻璃球) 57℃ 橙色,68℃ 红色,7 9℃黄色 ,93℃绿色。
喷头流量计算:

例:在一公斤的工作压力下,DN15(k=80)的喷头的流量为:q=80L/min=1.33L/s。
湿式报警阀:报警阀结构原理为单向阀。在伺应状态下,由于旁路管和补偿器在供水压力波动的情况下可使阀瓣上部水压大于其下部水压。当发生火灾使喷头动作,喷水而造成系统侧水压下降,而旁路管的节流作用不能立即使系统侧压力与供水侧压力平衡,这个压力差就将阀瓣打开并向已开启的喷头连续供水,实施灭火。
报警阀上下各设一只信号蝶阀,一个湿式报警阀组控制的喷头数不宜超过800只,每个报警阀组供水的最高和最低位置喷头,其高程差不宜大于50m。报警阀安装距地面高度为1.2m,安装报警阀的部位应设有排水装置。

延迟器:延迟器是一个罐式容器,入口与报警阀的报警水流通道连接,出口与压力开关和水力警铃连接,延迟器入口前安装过滤器。
在准工作状态下可防止因压力波动而误报警。当配水管道发生渗漏时,有可能引起湿式报警阀阀瓣的微小开启,使水进入延迟器。但是,由于流量小,进入延迟器的水量会从延迟器底部的节流孔排出,使延迟器无法充满水,更不能从出口流向压力开关和水力警铃。只有当湿式报警阀开启,经报警通道进入延迟器水流将延迟器注满并由出口溢出,才能驱动水力警铃和压力开关。

水力警铃:水力警铃是一种靠水力驱动的机械警铃,安装在报警阀组的报警管道上。报警阀开启后,报警水流进入水力警铃并形成一股高速射流,冲击水轮带动铃锤快速旋转,敲击铃盖发出“发生火灾、报警阀开启并已喷水灭火”的声响警报。
水力警铃的工作压力不应小于0.05Mpa,其与报警阀连接的管道,管径应为20mm,总长不宜大于20m。

压力开关:压力开关是一种压力传感器,安装在延迟器出口后的报警管道上。报警阀开启后,报警管道充水,压力开关受到水压的作用后接通电触点,输出“发生火灾、报警阀开启并已喷水灭火”及启动供水泵的信号。报警阀关闭时电触点断开。

水流指示器:水流指示器是靠管内压力水流动的推力而动作,从而推动微动开关并发出报警信号,同时起到检测和指示报警区域的作用。
额定工作压力:1.2MPa;水流指示器离弯头或信号阀的距离不小于30cm;
水流指示器出来接3根线:常开触点,常闭触点,公共触点。

末端试水装置:作用:检验系统的可靠性、测试系统能否在开放一只喷头最不利条件下可靠报警并正常启动。测试水流指示器、报警阀、压力开关、水力警铃的动作是否正常,配水管是否畅通,以及最不利点处的喷头压力等。
做法:如图所示。



减压阀(阀后有水,阀前阀后各设有一只压力表):阀门→过滤器→减压阀→阀门。
泄压阀(阀后无水,在阀前设有一只压力表),在泄压/持压阀前必须安装过滤器。消除水锤效应。
供水:
增压泵:流量:系统设计流量;扬程;一用一备(验收时进行模拟故障,分为主泵和备泵);
启泵方式:手动,自动,远程控制。
自动启泵方式
消火检泵

喷淋泵

水泵出水管应设控制阀、止回阀、压力表和直径不小于65mm的试水阀。必要时,应采取控制供水泵出口压力的措施:

稳压泵:
流量:不大于1L/s,以确保不误起湿式报警阀。
扬程;一用一备;启泵方式:手动、自动(电接点压力表)。

稳压泵出水口有一个电接点压力表:
上面的指针是上限,下面的指针是下限,中间的黑色指针指示是实际压力的数值。实际压力在上限之上时,与上限接通,与下限断开。实际压力在上下限之间时,公共端与上限,下限都断开。实际压力在下限之下时,公共端与下限接通,与上限断开,电接点压力表就是控制上下限压力用的。与继电器配合使用,通过接通或断开来控制电机的起停。
水泵接合器:
所有水泵接合器都接阀门;
每个水泵接合器的流量宜按10~15L/S计算。

消防水箱(12T,18T):
确保最不利点喷头的工作压力不小于0.05Mpa;
确保火灾初期10min的用水量;消防用水不作它用;应设止回阀。
消防水池:
例:喷淋系统设计流量为30L/s,火灾延续时间1h,则水池体积为30*1*3600=108T。
关于水泵基础:
水泵与基础之间要设减震垫
水泵的基础标高要考虑找平层跟粉刷层
水泵基础高度计算:h=a-b+偏心大小头偏差
其中,h为水泵基础高度;a为预埋套管中高度;b为水泵底到水泵进水口法兰中的高度。
关于自动喷水灭火系统的设计基本参数:
设置场所火灾危险等级:
轻危险级(基本没有);
中危险级:
Ⅰ级(除了厂房以外,喷水强度为6L/min.㎡);
Ⅱ级(一般厂房,喷水强度为8L/min.㎡ )。
严重危险级(很少):
Ⅰ级(印刷厂、酒精制品等工厂的备料与车间);Ⅱ级。
仓库危险级:Ⅰ级,Ⅱ级,Ⅲ级。
以中危险等级Ⅱ级,普通喷头布置为例展开。
民用建筑和工业厂房的系统设计参数:

中危险等级Ⅱ级的喷头作用面积为160㎡
Ⅰ级的系统流量:6L/min.㎡×160㎡/60=16L/S;
Ⅱ级的系统流量:8L/min.㎡×160㎡/60=21.33L/S;
系统设计流量需理论流量乘以系数,中危险等级Ⅱ级基本取30L/s。
喷淋系统管道内的水流速度宜采用经济流速,必要时可超过5m/s,但不应大于10m/s。
每米管道的水头损失应按下式计算:i= 0.0000107• V 2/dj 1.3
式中,i—每米管道的水头损失(MPa/m);
V—管道内水的平均流速(m/s);
dj—管道的计算内径(m),取值应按管道的内径减lmm 确定。
水力计算分析。
管道:
配水管道的工作压力不应大于1.20Mpa,并不应设置其他用水设施。
配水管两侧每根配水支管控制的标准喷头数,轻危险级、中危险级场所不应超过8只,同时在吊顶上下安装喷头的配水支管,上下侧均不应超过8只。严重危险级及仓库危险级场所均不应超过6只。
轻危险级、中危险级场所中配水支管、配水管控制的标准喷头数,不应超过下表的规定:

轻危险级、中危险级各配水管入口的压力均不宜大于0.4Mpa。
喷头布置:
喷头的间距(同一根配水支管上喷头的间距及相邻配水支管的间距 ):

不吊顶的场所,当配水支管布置在梁下时,应采用直立型喷头,喷头溅水盘离顶板的距离7~15cm。
吊顶的场所,喷头与吊顶齐平。
当在梁或其他障碍物底面下方的平面上布置喷头时,溅水盘与顶板的距离不应大于300mm,同时溅水盘与梁等障碍物底面的垂直距离不应小于25mm、不应大于100mm。
当在梁间布置喷头时,应符合规范的规定。确有困难时,溅水盘与顶板的距离不应大于550mm。
梁间布置的喷头,喷头溅水盘与顶板距离达到550mm仍不能符合7.2.1规定时,应在梁底面的下方增设喷头。
净空高度不超过8m的场所中,间距不超过4×4(m)布置的十字梁,可在梁间布置1只喷头,但喷水强度仍应规范要求。
走道喷头在无影响的情况下必须居中成排布置,间距尽量均匀。
喷头距离灯具或风口的尺寸不小于60cm。
自动喷水灭火系统设计规范50084-2017。直立型、下垂型的喷头与梁、通风管道的距离宜符合表:

当梁、通风管道、成排布置的管道、桥架等障碍物的宽度大于1.2m时,其下方应增设喷头,增设喷头的上方有缝隙时应设集热板。

建议支管直接做到风管的另一头,用内丝堵头堵住,再打支架,上下喷头共用一个支架。
支架:
不能采用侧抱或倒抱;
支架设置的位置:每个喷头设1个支架,所有转弯的地方,所有阀门、伸缩接的两侧必须设支架,不大于4m的立管设1个支架,大于4m设2个支架,大于8m设4个支架,类推。
支架的做法:DN50以下的可以采用L型支架,大于等于DN50的采用门字型支架,门字支架采用型钢斜45°切拼,进行倒角,凹面朝下,水平面朝上。
支架受力:第一个膨胀螺丝高于梁三分之二以上,每个膨胀螺丝必须高于梁二分之一以上。
立管上支架高度:离地1.5~1.8m。
支架的防腐要求:面漆、防腐漆刷两道。
支架角钢选型(一根管子的情况下):DN150:5#;DN100:4#;支管:3#。
自动喷水灭火系统的施工安装,应按照《自动喷水灭火系统施工及验收规范》GB50261-2017相关标准执行。
自动喷水灭火系统故障处理:




消防水源:
不设高位消防水箱的建筑,系统应设气压供水设备。气压供水设备的有效水容积,应按系统最不利处4只喷头在最低工作压力下的10min用水量确定。
在水务部门同意且市政给水管网为环状管网,生产、生活用水量达到最大且仍能满足室内外消防用水量时,消防泵可直接从市政给水管网吸水。
在火灾情况下,高层民用建筑的室内消防用水量不应考虑补水。
用于消防车停靠的屋面上,应设置室外消火栓。
建筑高度超过100m的建筑,消防给水系统可采用串联或并联供水系统,消防干管压力不应大于2.4MPa。
18层以上的高层住宅当分别设置两个消火栓箱确有困难时,可在同一个消火栓箱内设置两个栓口,但应分别由两根消防竖管接出。
当设两根消防竖管有困难时,可设一根竖管,但必须采用双阀双出口型消火栓。
1.十八层及十八层以下的单元式住宅;
2.十八层及十八层以下、每层不超过8户、建筑面积不超过650m2的塔式住宅。
室内消火栓不应设在封闭楼梯间、防烟楼梯间及其非合用前室内,住宅建筑执行确有困难时除外。
多层住宅建筑隔间面积大于200㎡的商业服务网点和高层住宅建筑的商业服务网点每个隔间内应设置一个消防软管卷盘,消火栓箱内可不设置水带和水枪,但必须保留消火栓栓口。
消防水泵:
消防水泵房和消防控制室应采取挡水措施;设置在地下时,还应采取防淹措施。消防水泵若选用恒压切线泵时,当消防泵的扬程小于1.0MPa可不设超压泄压装置。消防水池池底标高不应低于消防水泵房的地坪标高。
自动喷水灭火系统:
1大、中型幼儿园,总建筑面积大于500㎡的老年人建筑应设置自动灭火系统,并宜采用自动喷水灭火系统。
住宅主体下每个防火分区小于500㎡的地下室储藏间或自行车库,当该建筑设有喷淋系统时应设自动喷淋系统,当该建筑未设喷淋系统时可不设自动喷淋系统。
地下复式汽车库自动喷淋系统应按中危险级Ⅱ级设计,流量参照《全国民用建筑工程设计技术措施》(给水排水2009版)的相关规定确定。
局部设有送回风管(道)的集中空气调节系统的多层办公建筑,当设置空调系统部分的建筑面积之和大于3000㎡但空调风管不穿越防火分区、不穿越楼板,或者设置空调系统的部分建筑面积之和不超过3000㎡时,可不设自动喷水灭火系统。
湿式报警阀不得设于消防控制室内。在确有困难时,湿式报警阀可设于管道井内,但应便于操作并应设置排水设施。水力警铃的设置应符合规范要求。
水泵房、消防控制室和无可燃物的技术层可不设自动喷水灭火系统。
旅馆客房和医院病房可采用边墙型喷头。
其他灭火系统:
净高超过12m的中庭(办公楼无可燃物的中庭除外)需要设置自动灭火系统时,应设置固定消防炮等自动灭火系统。
餐厅建筑面积大于1000㎡的餐馆或食堂,其烹饪操作间的排油烟罩及烹饪部位应设置自动灭火装置,并应在燃气或燃油管道上设置与自动灭火装置联动的自动切断装置。食品工业加工场所内有明火作业或高温食用油的食品加工部位宜设置自动灭火装置。
地下汽车库的建筑灭火器配置可按A类火灾中危险级设计。地下汽车库的汽车疏散坡道在直通室外处可不设置防火卷帘和自动喷水灭火系统。
火灾自动报警及联动控制系统:
火灾报警系统示意图:

概述:火灾自动报警系统是由触发器件、火灾报警装置、火灾警报装置、以及具有其他辅助功能的装置组成的火灾报警系统。
火灾自动报警系统的作用:早期发现和通报火灾,防止和减少火灾危害,保护人身和财产安全。
火灾自动报警系统的工作原理:
安装在保护区的探测器不断地向所监视的现场发出巡测信号,监视现场的烟雾、温度等,并不断反馈给报警控制器,控制器将接收的信号与内存的正常值比较。当发生火灾时,探测器发出的信号符合火灾报警信号时,控制器发出声光报警,显示火灾区域的地址编码,并打印报警时间、地址等,同时向火灾现场和相邻区域发出声光报警,可同时输出控制信号,启动有关自动消防设备。
术语:
触发器件:自动或手动产生火灾报警信号的器件。包括火灾探测器和手动火灾报警按钮。
火灾探测器:能对火灾参数响应,自动产生火灾报警信号的器件。
手动火灾报警按钮:用手动方式起动自动火灾报警系统的器件。
火灾报警控制器(火灾报警装置):为火灾探测器传电、接收、显示和传递火灾报警信号,并能对自动消防设备发出控制信号的一种火灾报警装置。
火灾警报装置:火灾报警系统中用以发出区别于环境声光的火灾警报信号的装置。
警报信号:一种在火灾发生时由警报装置发出的提醒有关人员立即采取行动的特定声、光信号。
中继器:控制器离现场较远,在信号远距离传输中,为加强信号起中转作用以及用来转接其他类型探测器等所加的装置。
输入模块:把联动设备状态通过总线送到火灾报警控制器的装置。
输出模块:接收火灾报警控制器的信号,通过总线启动联动设备的装置。
短路隔离器:用在传输总线上,对各分支线作短路时的隔离作用。它能自动使短路部分两端呈高阻态或开路状态,使之不损坏控制器,也不影响总线上其他部件的正常工作,当这部分短路故障消除时,能自动恢复这部分回路的正常工作。也称总线隔离器。
线制:火灾报警装置与火灾探测器及其它器件之间的连接线制式。
总线:火灾报警系统中控制单元与探测单元等相关部件占用同一线路进行信号传输,此公共通道称为总线。
分路:分路是回路的一个分支,分路占用一个部位号,一个分路可以由一个或多个探测部件组成。
回路:将探测器等部件连接到火灾报警控制器的传输通路。
部位号:火灾报警控制器监视部件的编号。
部位:接入火灾报警控制器一个报警单元(分路)中的火灾探测器所监视的场所。
点:反映火灾报警探测器等部件的地理位置。一个点对应一个安装位置。
地址码:表征探测器等部件地址的编码信号。
编码信号:系统中采用调频、调幅、调脉宽等调制手段给出的代表火灾报警系统中各部件地址或状态的信号。
编码开关:能代表回路部件号的可设置的拨码开关。
编码部件:带有地址码的,占有地址部位号的探测器、中继器、短路隔离器等控制器可查巡的部件统称为编码部件。
编码底座:具有编码功能的探测器底座,作用是确定探测器或回路中其他部件的地址,使探测器分时占用总线。
自动报警系报警及控制流程:

日常具体操作:

系统组件简介:
差定温式探测器
差定温火灾探测器是利用热敏元件对温度的敏感性来检测环境温度,特别适用于发生火灾时有剧烈温升的场所,与感烟探测器配合使用更能可靠探测火灾,减少损失。

光电感烟探头
光电感烟探头是一种检测燃烧产生的烟雾微粒的火灾探测器。光电感烟作为前期、早期火灾报警是非常有效的。对于要求火灾损失小的重要地点,火灾初期有阴燃阶段,产生大量的烟和少量的热,很少或没有火焰辐射的火灾,都适合选用。

手动火灾报警按钮
手动火灾报警按钮主要安装在经常有人出入的公共场所中明显和便于操作的部位。当有人发现有火情的情况下,手动按下按钮,向报警控制器送出报警信号。
手动火灾报警按钮比探头报警更紧急,一般不需要确认。因此,手动报警按钮要求更可靠、更确切,处理火灾要求更快。

消火栓按钮
消火栓按钮安装在消火栓箱中。当发现火情必须使用消火栓的情况下,手动按下按钮,向消防中心送出报警信号,在主机设置在自动时,将直接启动消火栓泵。

消防广播
用于疏散指挥

消防电话
用于消防中心和现场之间的通讯,启动多个可多方通话,可报警、核对警情、指挥救援和故障联络。


火灾报警控制器:
火灾报警控制器是火灾自动报警控制系统的核心。
① 能接收探测信号,转换成声、光报警信号,指示着火部位和记录报警信息。
② 可通过火警发送装置启动火灾报警信号,或通过自动灭火控制装置启动自动灭火设备和联动控制设备。
③ 自动监视系统的正确运行和对特定故障给出声光报警。
火灾自动报警系统的形式:
区域报警系统:由区域火灾报警控制器和火灾探测器等组成,或由火灾报警控制器和火灾探测器等组成,功能简单的火灾自动报警系统。能直接接收某保护空间的火灾探测器或中继器发来的报警信号的单路或多路火灾报警控制器。
集中报警系统:由集中火灾报警控制器、区域火灾报警控制器和火灾探测器等组成,或由火灾报警控制器、区域显示器和火灾探测器等组成,功能较复杂的火灾自动报警系统。能接收区域火灾报警控制器(含相当于区域火灾报警控制器的其他装置)或火灾探测器发来的报警信号并能发出某些控制信号使区域火灾报警控制器工作的火灾报警控制器。
控制中心报警系统:由消防控制室的消防控制设备、集中火灾报警控制器、区域火灾报警控制器和火灾探测器等组成,或由消防控制室的消防控制设备、火灾报警控制器、区域显示器和火灾探测器等组成,功能复杂的火灾自动报警系统。显示一个楼层或其中一部分区域的火灾报警装置的状态,当有火警时能发出声光报警信号,与集中控制器连接。
探测器安装间距的极限曲线:


按梁间区域面积确定一只探测器保护的梁间区域的个数:

火灾自动报警系统的设计要求:
一般要求:
火灾自动报警系统应设有自动和手动两种触发装置;
火灾报警控制器容量和每一总线回路所连接的火灾探测器和控制模块或信号模块的地址编码总数,宜留有一定余量;
火灾自动报警系统的设备,应有采用经国家有关产品质量监督检测单位检验合格的产品。
消防联动控制设计要求:
当消防联动控制设备的控制信号和火灾探测器的报警信号在同一总线回路上传输时,其传输总线的敷设应符合消防配电线路敷设要求;
消防水泵、防烟和排烟风机的控制设备当采用总线编码模块控制时,还应在消防控制室设置手动直接控制装置;
设置在消防控制室以外的消防联动控制设备的动作状态信号,均应在消防控制室显示。
火灾警报装置的设计要求:
未设置火灾应急广播的火灾自动报警系统,应设置火灾警报装置;
每个防火分区至少应设一个火灾警报装置,其位置宜设在各楼层走道靠近楼梯出口处。警报装置宜采用手动或自动控制方式;
在环境噪声大于60dB的场所设置火灾警报装置时,其声警报器的声压级应高于背景噪声15dB。
火灾自动报警及联动控制系统的施工安装,应按照《火灾自动报警系统施工及验收规范》 GB50166—2016 相关标准执行。
消防电源:
消防供电负荷等级应按规范确定,当地供电部门提供的供电负荷等级可为参照依据。
在一、二级负荷等级的广播电视中心、医院、电厂等建筑内的特殊场所,若采取自动切断非消防电源方式会造成较大损失的,可采用手动切断非消防电源方式。
配电线路及电器设备防火:
在建筑物内(变配电室除外)敷设的高压供电线路应按消防配电线路要求敷设。
用于防火分隔且按一、二级负荷供电的多个防火卷帘,当涉及2个以上(不含2个)防火分区时,应采用放射式供电。可燃材料仓库的配电箱及开关应设置在仓库外。
火灾自动报警系统:应设置火灾自动报警系统的场所外,下列建筑或场所也应设置火灾自动报警系统:设置机械排烟、防烟系统、雨淋或预作用自动喷水灭火系统、固定消防水炮灭火系统等需与火灾自动报警系统联锁动作的场所或部位;二类高层建筑中旅馆的客房、公共活动用房;大(中)型幼儿园。未设置火灾自动报警系统的建筑当设有防火卷帘时,应在防火卷帘两侧设置火灾探测器,联动防火卷帘下降。
未完待续...
本文共有两个部分。本部分内容包括有:室内外消火栓系统,自动喷水灭火系统,火灾自动报警及联动控制系统。
需要海量BIM知识的同学请大力按压下面的二维码入群,几百款知识及软件(都是一些BIM极品高阶视频材料+案例实训+考证,某宝叫卖价上万元),总有一款适合你:

附招聘事项一则:海南省规划设计研究院BIM中心招募BIM机电工程师,学历资格:工程类专业本科及以上学历;专业要求:基础知识扎实,掌握设计图纸读图识图能力,熟悉相关专业的规范及法规,对专业知识有较强的钻研精神,关注最新技术发展动态;软件要求:精通Revit、Navisworks、Fuzor、Lumion等主流BIM软件及通用办公软件;熟悉鸿业、Civil、Rhino等软件;经验要求:具备3年以上的BIM项目应用与实施经验,有大型项目BIM应用实施经验者优先;协同能力:有团队精神、协同意识、愿意分享、语言表达能力强、思维清晰敏捷;性格特点:敬业踏实、认真严谨、执行力强、抗压能力强、责任感强。有意者可直接联系周工(微信号18976236136),简历可直接发送435809415@qq.com。