设计理念:本案是大富山庄现代简约风格装修设计,现在家庭的简约不只是说装修,还反映在家居配饰上的简约,比如不大的屋子,就没有必要为了显得“阔绰”而购置体积较大的物品,相反应该就生活所必需的东西才买,而且以不占面积、折叠、多功能等为主。

大富山庄-二居室-84.17平米-客厅装修效果图

大富山庄-二居室-84.17平米-客厅装修效果图

大富山庄-二居室-84.17平米-餐厅装修效果图

大富山庄-二居室-84.17平米-餐厅装修效果图

大富山庄-二居室-84.17平米-卧室装修效果图

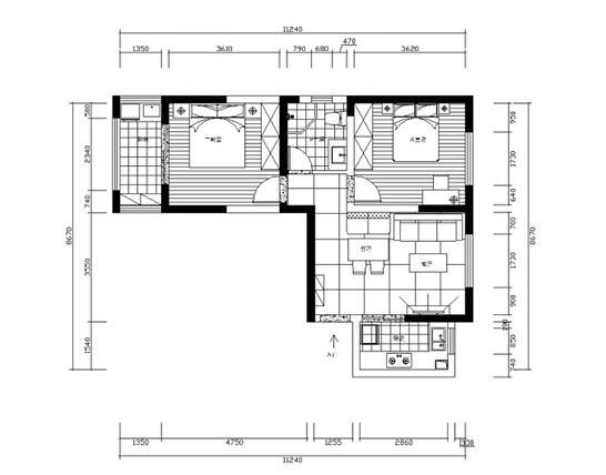
大富山庄-二居室-84.17平米-户型图装修效果图
更多装修案例、家居经验欢迎关注微信公众号:合肥爱士居装饰或是asjzs168(长按可复制)